Перейти к контенту
Подбор и сравнение проектов домов от застройщиков Московской области
Подборщик домов
Калькулятор сметы
Калькулятор площади
Форум
Блог
Главная
›
Каталог проектов
›
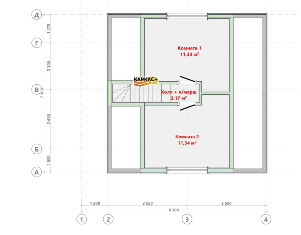
Проект каркасного дома КП-92
Проект каркасного дома КП-92
Застройщик: КАРКАС+
71.1 м²
1 / 3
🏠
71.1 м²
📐
1 этаж
🧱
Каркас
Похожие проекты
Похожие по цене
Похожие по площади
Проект P-076-1P
2 этаж
от 5 334 000 ₽
→
Проект К-112 8 на 10, площадью 160 за 5 340 000 руб
4 спальн. · 2 этаж
от 5 340 000 ₽
→
Проект К-71 10 на 8, площадью 160 за 5 340 000 руб
от 5 340 000 ₽
→
Асгард 1 с патио (6x10)
3 спальн. · 1 санузл. · 2 этаж
от 4 159 000 ₽
→
Каркасный дом «Светогорск
от 6 210 000 ₽
→
Проект одноэтажного дома "Вязьма" из бруса
2 спальн. · 1 этаж
от 5 805 832 ₽
→
На сайт застройщика