Перейти к контенту
Подбор и сравнение проектов домов от застройщиков Московской области
Подборщик домов
Калькулятор сметы
Калькулятор площади
Форум
Блог
Главная
›
Каталог проектов
›
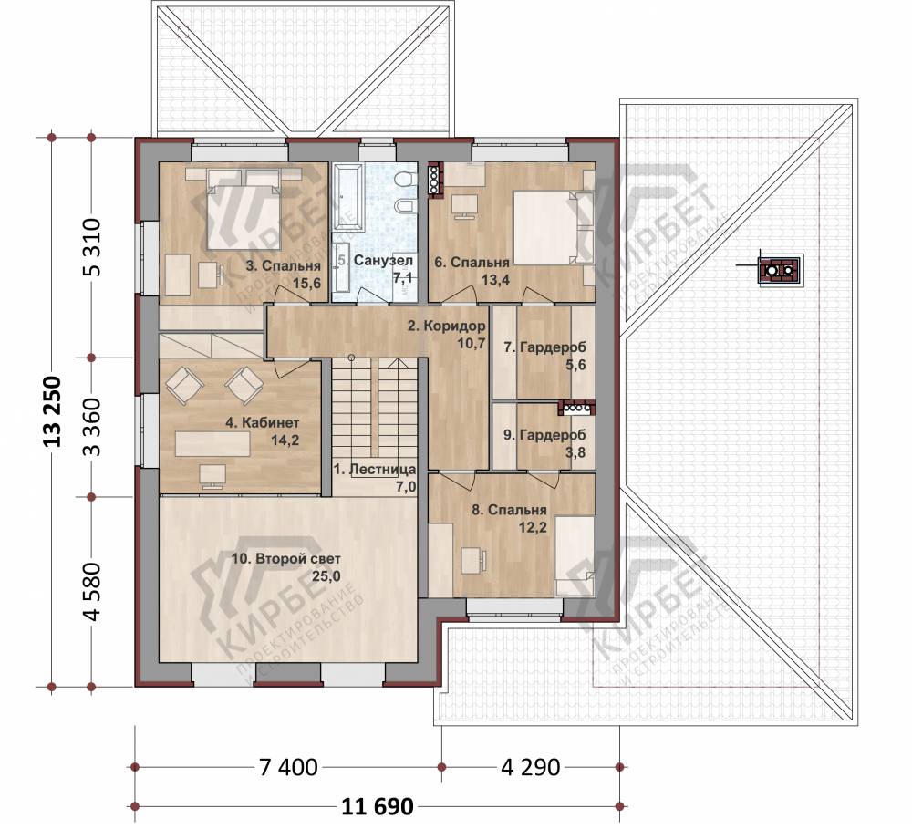
Проект дома из газоблоков 17х16 ГББ-307: цена 11223000 руб.
Проект дома из газоблоков 17х16 ГББ-307: цена 11223000 руб.
Застройщик: Кир-Бет
307.0 м²
1 / 3
🏠
307.0 м²
🛏
5 спален
🚿
2 санузл.
📐
2 этаж
🧱
Газобетон
Похожие проекты
Похожие по цене
Похожие по площади
Проект U-244-1P
3 этаж
от 17 080 000 ₽
→
Проект дома L-244-1P
2 этаж
от 17 084 900 ₽
→
Проект одноэтажного дома "Прибрежный" из бруса
5 спальн. · 2 этаж
от 17 085 572 ₽
→
Проект дома из керамоблоков 17х16 ТКБ-307: цена 10967000 руб.
5 спальн. · 2 санузл. · 2 этаж
от 18 768 000 ₽
→
Дом из газобетонных блоков С-307 ГБ «Астра»
5 спальн. · 3 санузл. · 1 этаж
от 13 630 000 ₽
→
Дом из керамических блоков С-307 КЕ «Астра»
5 спальн. · 3 санузл. · 1 этаж
от 13 630 000 ₽
→
На сайт застройщика