Перейти к контенту
Подбор и сравнение проектов домов от застройщиков Московской области
Подборщик домов
Калькулятор сметы
Калькулятор площади
Форум
Блог
Главная
›
Каталог проектов
›
Проект дома из керамоблоков 14х13 ТКБ-220: цена 9303000 руб.
Проект дома из керамоблоков 14х13 ТКБ-220: цена 9303000 руб.
Застройщик: Кир-Бет
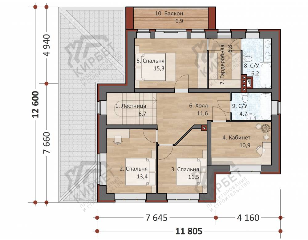
219.8 м²
1 / 3
🏠
219.8 м²
🛏
3 спален
🚿
5 санузл.
📐
2 этаж
🧱
Тёплая керамика / керамоблок
Похожие проекты
Похожие по цене
Похожие по площади
Проект одноэтажного дома "Кедр" из бруса
4 спальн. · 2 этаж
от 14 022 450 ₽
→
Проект одноэтажного дома "Зеленогорский" из бруса
3 спальн. · 2 этаж
от 14 018 330 ₽
→
Проект одноэтажного коттеджа "Кантата" из бруса
2 этаж
от 14 033 074 ₽
→
Проект одноэтажного дома "Весенняя сказка" из бруса
4 спальн. · 2 этаж
от 15 826 315 ₽
→
Проект дома из газоблоков 14х13 ГББ-220: цена 9626000 руб.
5 спальн. · 3 санузл. · 2 этаж
от 12 840 000 ₽
→
Проект одноэтажного дома "Оригами-3" из бруса
5 спальн. · 2 этаж
от 12 692 886 ₽
→
На сайт застройщика