Перейти к контенту
Подбор и сравнение проектов домов от застройщиков Московской области
Подборщик домов
Калькулятор сметы
Калькулятор площади
Форум
Блог
Главная
›
Каталог проектов
›
Проект дома из керамоблоков 16х13 ТКБ-262: цена 8483000 руб.
Проект дома из керамоблоков 16х13 ТКБ-262: цена 8483000 руб.
Застройщик: Кир-Бет
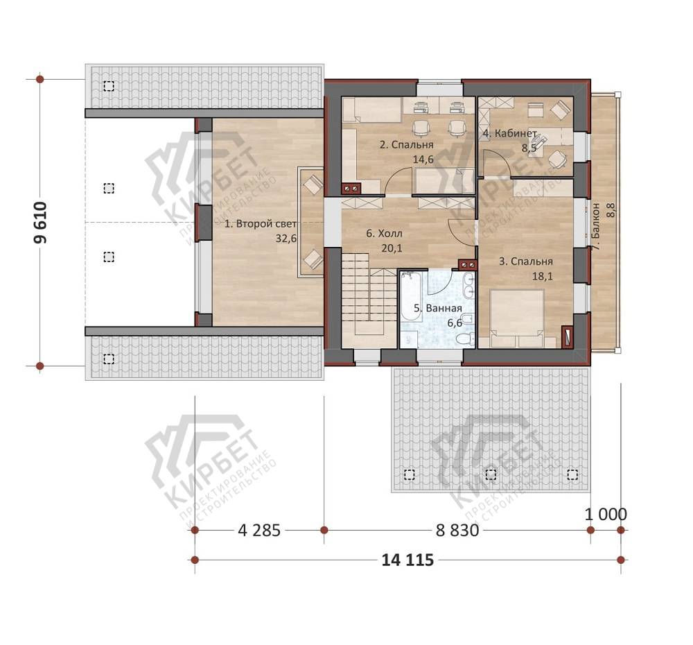
261.6 м²
1 / 3
🏠
261.6 м²
🛏
4 спален
🚿
2 санузл.
📐
2 этаж
🧱
Тёплая керамика / керамоблок
Похожие проекты
Похожие по цене
Похожие по площади
Проект U-196-1P
3 этаж
от 14 466 200 ₽
→
Проект D-096-1D
2 этаж
от 14 460 000 ₽
→
Проект дома из керамоблоков 13х12 ТКБ-197: цена 8258000 руб.
4 спальн. · 3 санузл. · 2 этаж
от 14 457 000 ₽
→
Проект дома из газоблоков 16х13 ГББ-262: цена 8767000 руб.
4 спальн. · 2 санузл. · 2 этаж
от 13 256 000 ₽
→
Проект E-262-1K
2 этаж
от 21 454 480 ₽
→
Проект D-262-1D
2 этаж
от 39 225 000 ₽
→
На сайт застройщика