Перейти к контенту
Подбор и сравнение проектов домов от застройщиков Московской области
Подборщик домов
Калькулятор сметы
Калькулятор площади
Форум
Блог
Главная
›
Каталог проектов
›
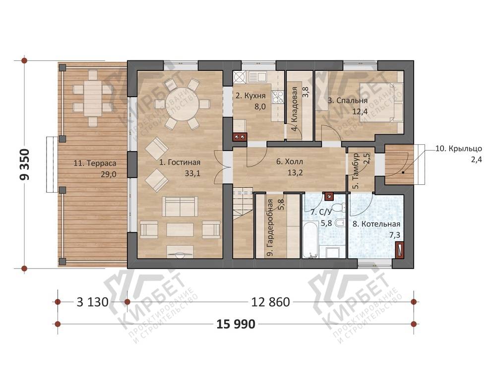
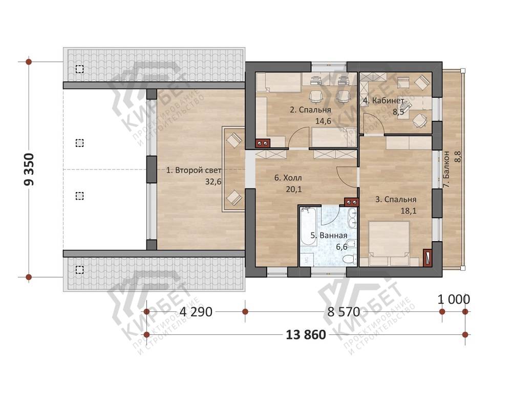
Проект дома из керамоблоков 16х9 ТКБ-233: цена 8197000 руб.
Проект дома из керамоблоков 16х9 ТКБ-233: цена 8197000 руб.
Застройщик: Кир-Бет
232.6 м²
1 / 3
🏠
232.6 м²
🛏
5 спален
🚿
2 санузл.
📐
2 этаж
🧱
Тёплая керамика / керамоблок
Похожие проекты
Похожие по цене
Похожие по площади
Проект дома E-184-1P
2 этаж
от 13 895 000 ₽
→
Проект дома П303
2 этаж
от 13 900 000 ₽
→
Проект двухэтажного коттеджа "Боат" из газобетона
4 спальн. · 2 этаж
от 13 886 000 ₽
→
Проект дома из газоблоков 16х9 ГББ-233: цена 8445000 руб.
5 спальн. · 2 санузл. · 2 этаж
от 12 691 000 ₽
→
Проект G-233-1K
2 этаж
от 19 073 200 ₽
→
Проект I-233-1S
3 этаж
от 4 582 220 ₽
→
На сайт застройщика