Перейти к контенту
Подбор и сравнение проектов домов от застройщиков Московской области
Подборщик домов
Калькулятор сметы
Калькулятор площади
Форум
Блог
Главная
›
Каталог проектов
›
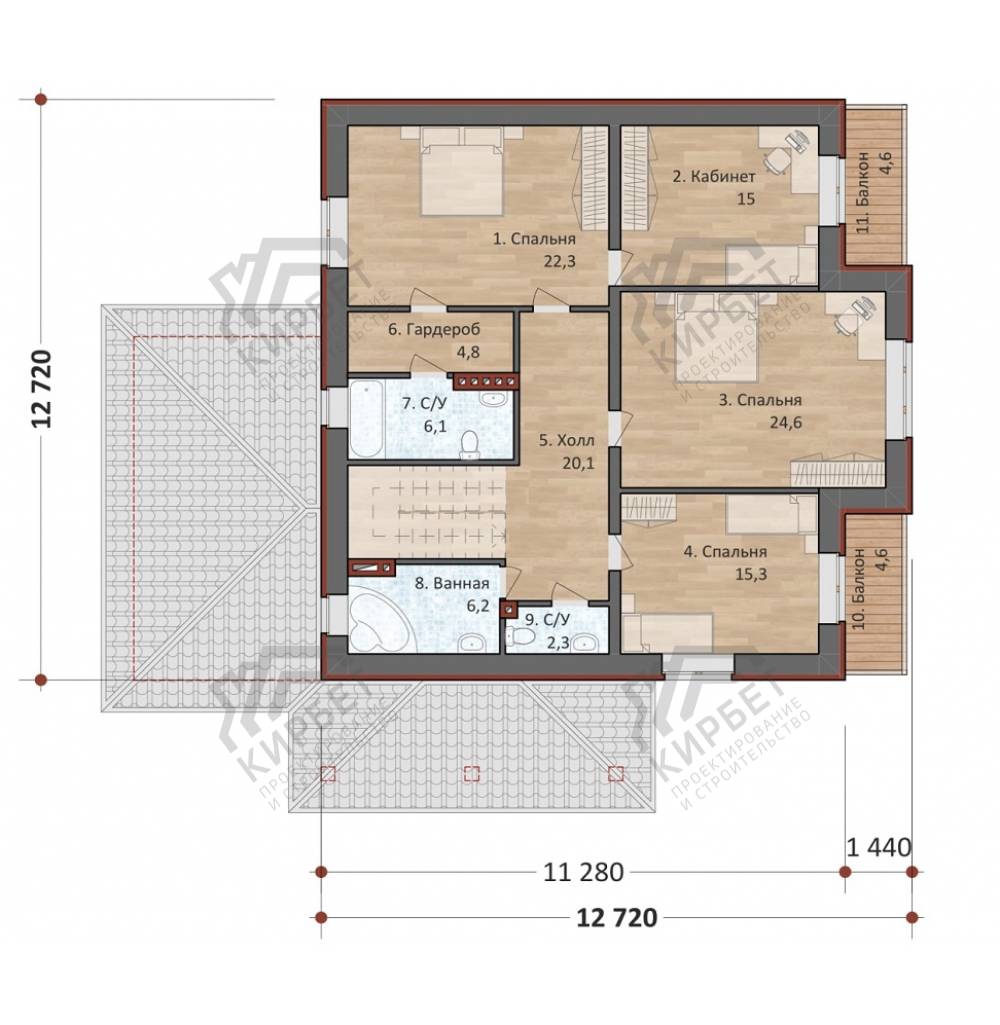
Проект дома из керамоблоков 17х15 ТКБ-295: цена 10664000 руб.
Проект дома из керамоблоков 17х15 ТКБ-295: цена 10664000 руб.
Застройщик: Кир-Бет
294.5 м²
1 / 3
🏠
294.5 м²
🛏
5 спален
🚿
4 санузл.
📐
2 этаж
🧱
Тёплая керамика / керамоблок
Похожие проекты
Похожие по цене
Похожие по площади
Проект U-263-1P
2 этаж
от 18 449 900 ₽
→
Проект W-225-1K
1 этаж
от 18 458 200 ₽
→
Проект V-264-1P
2 этаж
от 18 480 000 ₽
→
Проект дома из газоблоков 17х15 ГББ-295: цена 10794000 руб.
5 спальн. · 4 санузл. · 2 этаж
от 16 828 000 ₽
→
Проект A-294-1P
2 этаж
от 20 615 000 ₽
→
Проект дома V-295-1P
2 этаж
от 20 615 000 ₽
→
На сайт застройщика