Перейти к контенту
Подбор и сравнение проектов домов от застройщиков Московской области
Подборщик домов
Калькулятор сметы
Калькулятор площади
Форум
Блог
Главная
›
Каталог проектов
›
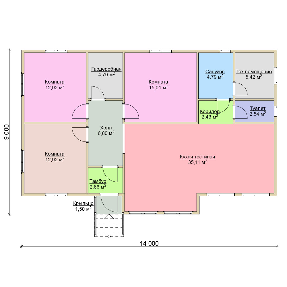
Варяг (9x14)
Варяг (9x14)
Застройщик: НашДомСтрой
112.0 м²
1 / 2
🏠
112.0 м²
🛏
3 спален
🚿
2 санузл.
📐
1 этаж
🧱
Каркас
Похожие проекты
Похожие по цене
Похожие по площади
ПД - 345 - Строительство домов из Каркаса, СИП, Бруса под ключ
6 спальн. · 2 санузл. · 2 этаж
от 7 390 000 ₽
→
Проект одноэтажного коттеджа "Рябушка" из газобетона
2 спальн. · 2 этаж
от 7 392 000 ₽
→
Проект К-193 10 на 14, площадью 264 за 8 913 000 руб
4 спальн. · 2 этаж
от 7 392 000 ₽
→
Проект двухэтажного каркасного дома "Глория-1 "
3 спальн. · 2 этаж
от 8 035 264 ₽
→
Каркасный дом «Отрадное
от 5 885 000 ₽
→
Дом из кирпича Проект КД-3
3 спальн. · 2 санузл. · 2 этаж
от 420 000 ₽
→
На сайт застройщика