Перейти к контенту
Подбор и сравнение проектов домов от застройщиков Московской области
Подборщик домов
Калькулятор сметы
Калькулятор площади
Форум
Блог
Главная
›
Каталог проектов
›
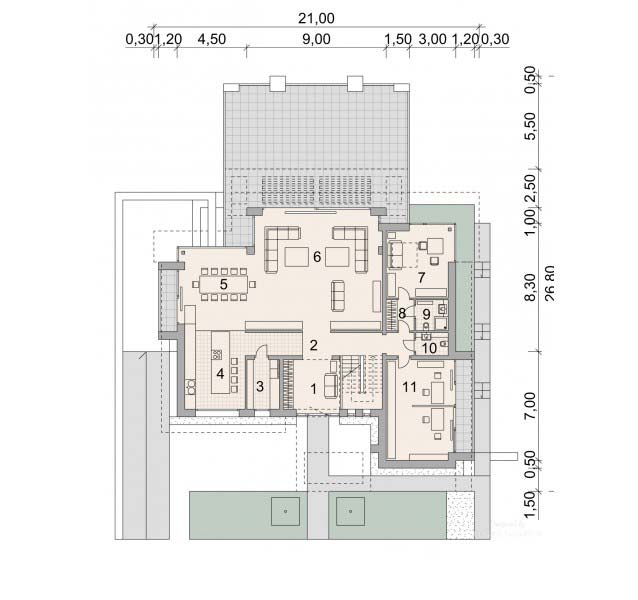
Большой коттедж с бассейном «Пант»
Большой коттедж с бассейном «Пант»
Застройщик: ОлимпСтройСервис
679.39 м²
1 / 7
🏠
679.39 м²
🛏
4 спален
🚿
7 санузл.
📐
2 этаж
🧱
Из керамических блоков
Похожие проекты
Похожие по цене
Похожие по площади
Проект Y-272-1D
3 этаж
от 40 770 000 ₽
→
Проект M-496-1K
3 этаж
от 40 717 920 ₽
→
Проект E-498-1K
3 этаж
от 40 836 000 ₽
→
Проект B-684-1K
3 этаж
от 56 088 000 ₽
→
Проект «Newcastle»
от 33 750 000 ₽
→
Проект коттеджа «Rockville»
6 спальн. · 5 санузл.
от 34 350 000 ₽
→
На сайт застройщика