Перейти к контенту
Подбор и сравнение проектов домов от застройщиков Московской области
Подборщик домов
Калькулятор сметы
Калькулятор площади
Форум
Блог
Главная
›
Каталог проектов
›
Дом с крытой террасой «Норкен»
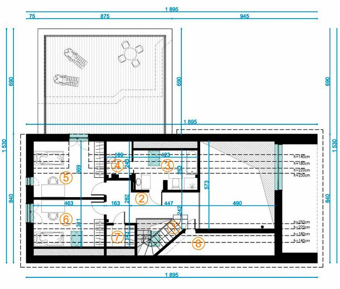
Дом с крытой террасой «Норкен»
Застройщик: ОлимпСтройСервис
212.0 м²
1 / 5
🏠
212.0 м²
🛏
4 спален
🚿
2 санузл.
📐
1 этаж
🧱
Из керамических блоков
Похожие проекты
Похожие по цене
Похожие по площади
Проект двухэтажного коттеджа "Сивилла" из газобетона
4 спальн. · 2 этаж
от 12 720 000 ₽
→
Проект двухэтажного дома "Орхидея" из бруса
4 спальн. · 2 этаж
от 12 716 791 ₽
→
Проект дома T-183-1P
2 этаж
от 12 726 000 ₽
→
Проект одноэтажного дома "Оригами-7" из бруса
2 спальн. · 2 этаж
от 14 945 932 ₽
→
Дом по проекту «ЗС 191-23» - Золотое Сечение
3 спальн. · 2 санузл.
от 26 500 000 ₽
→
Проект К-142 10 на 11, площадью 212 за 7 126 500 руб
3 спальн. · 2 этаж
от 7 126 500 ₽
→
На сайт застройщика