Перейти к контенту
Подбор и сравнение проектов домов от застройщиков Московской области
Подборщик домов
Калькулятор сметы
Калькулятор площади
Форум
Блог
Главная
›
Каталог проектов
›
Современный коттедж «Манхэттен»
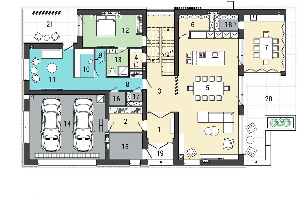
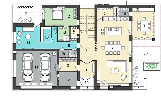
Современный коттедж «Манхэттен»
Застройщик: ОлимпСтройСервис
516.3 м²
1 / 5
🏠
516.3 м²
🛏
4 спален
🚿
5 санузл.
📐
2 этаж
🧱
Из керамических блоков
Похожие проекты
Похожие по цене
Похожие по площади
Проект L-378-1K
3 этаж
от 30 996 000 ₽
→
Дом по проекту «ЗС 16-17» - Золотое Сечение
4 спальн. · 3 санузл.
от 31 000 000 ₽
→
Проект H-377-1K
3 этаж
от 30 938 600 ₽
→
Проект «Manhattan»
4 спальн. · 5 санузл.
от 25 800 000 ₽
→
Проект U-519-1P
3 этаж
от 36 343 300 ₽
→
Проект дома W-513-1P
4 санузл. · 3 этаж
от 35 938 000 ₽
→
На сайт застройщика