Перейти к контенту
Подбор и сравнение проектов домов от застройщиков Московской области
Подборщик домов
Калькулятор сметы
Калькулятор площади
Форум
Блог
Главная
›
Каталог проектов
›
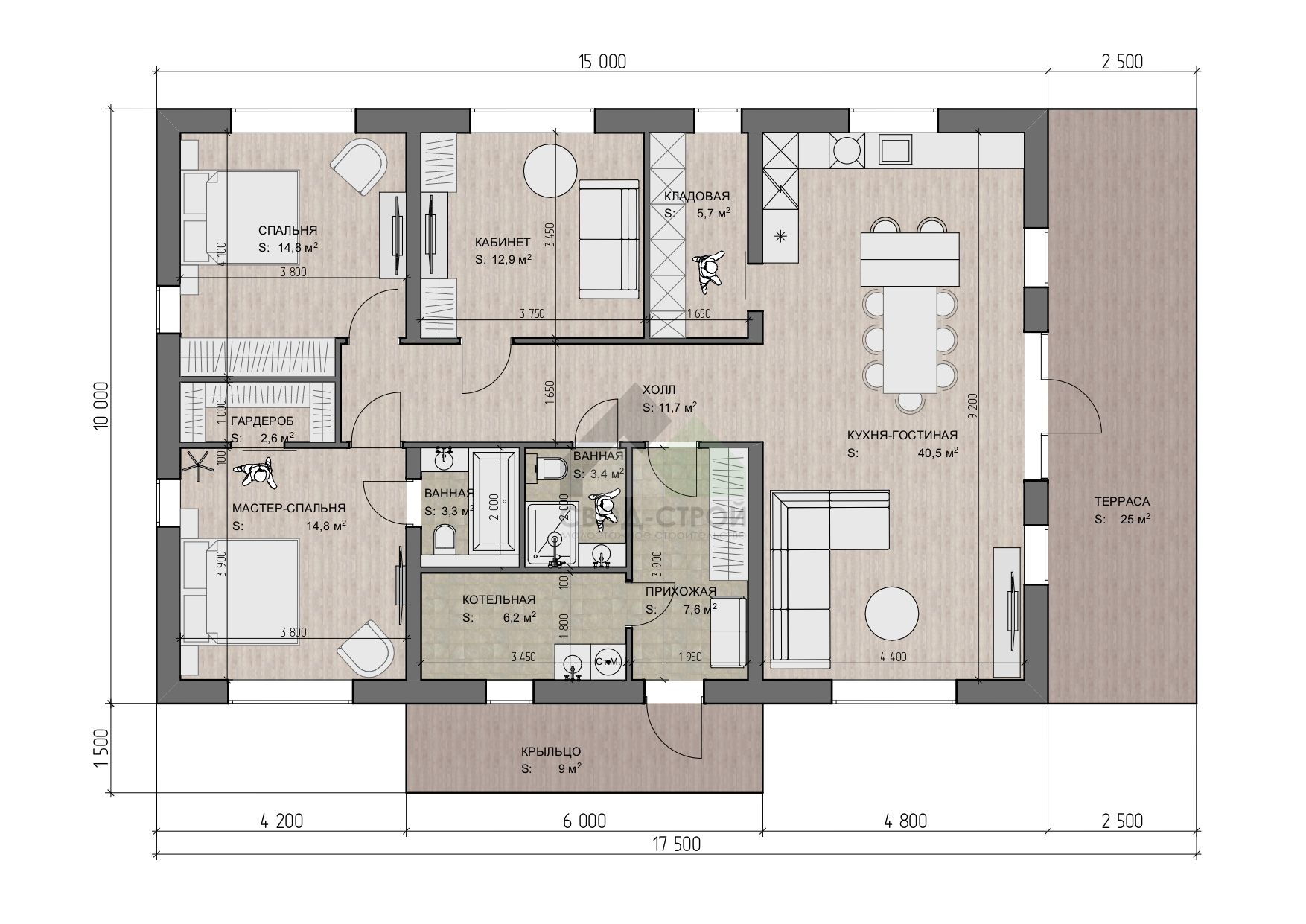
Дом из газобетонных блоков С-184 ГБ «Сталь»
Дом из газобетонных блоков С-184 ГБ «Сталь»
Застройщик: Свод-Строй
184.0 м²
1 / 2
🏠
184.0 м²
🛏
3 спален
🚿
2 санузл.
📐
3 этаж
🧱
Газобетон
Похожие проекты
Похожие по цене
Похожие по площади
Дом из керамических блоков С-184 КЕ «Сталь»
3 спальн. · 2 санузл. · 3 этаж
от 8 602 000 ₽
→
Проект каркасного дома КП-01
1 этаж
от 8 600 000 ₽
→
Проект каркасного дома КП-155
1 этаж
от 8 600 000 ₽
→
Проект одноэтажного каркасного дома "Меркур"
5 спальн. · 2 этаж
от 13 167 317 ₽
→
Дом по проекту «ЗС 104-22» - Золотое Сечение
4 спальн. · 2 санузл.
от 23 000 000 ₽
→
Дом по проекту «ЗС 921-21» - Золотое Сечение
5 спальн. · 2 санузл.
от 23 000 000 ₽
→
На сайт застройщика