Перейти к контенту
Подбор и сравнение проектов домов от застройщиков Московской области
Подборщик домов
Калькулятор сметы
Калькулятор площади
Форум
Блог
Главная
›
Каталог проектов
›
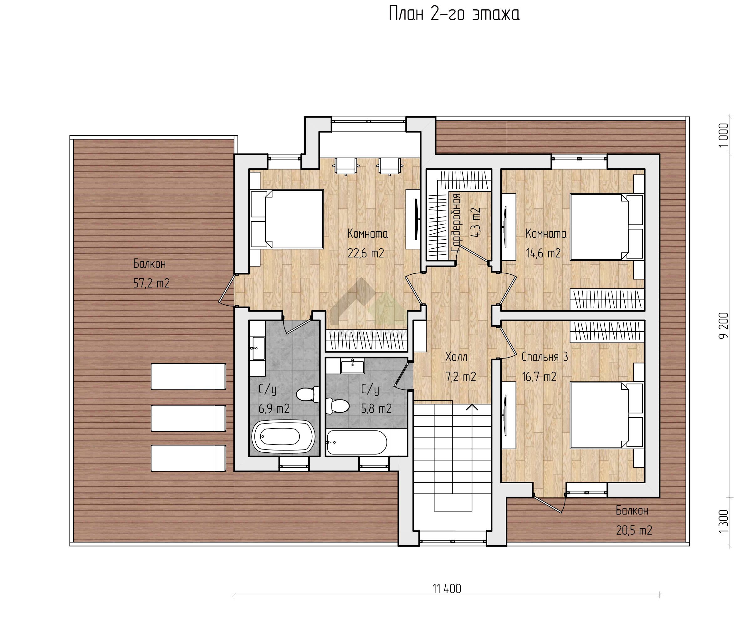
Дом из газобетонных блоков С-358 ГБ «Арфа»
Дом из газобетонных блоков С-358 ГБ «Арфа»
Застройщик: Свод-Строй
357.3 м²
1 / 3
🏠
357.3 м²
🛏
3 спален
🚿
4 санузл.
📐
3 этаж
🧱
Газобетон
Похожие проекты
Похожие по цене
Похожие по площади
Дом из керамических блоков С-358 КЕ «Арфа»
3 спальн. · 4 санузл. · 3 этаж
от 14 474 000 ₽
→
Проект T-177-1K
2 этаж
от 14 473 000 ₽
→
Проект U-176-1K
1 этаж
от 14 473 000 ₽
→
Дом из керамических блоков С-358 КЕ «Арфа»
3 спальн. · 4 санузл. · 3 этаж
от 14 474 000 ₽
→
Кирпичный дом С-358 К «Арфа»
3 спальн. · 4 санузл. · 3 этаж
от 15 295 000 ₽
→
Проект V-357-1K
2 этаж
от 29 305 980 ₽
→
На сайт застройщика