Перейти к контенту
Подбор и сравнение проектов домов от застройщиков Московской области
Подборщик домов
Калькулятор сметы
Калькулятор площади
Форум
Блог
Главная
›
Каталог проектов
›
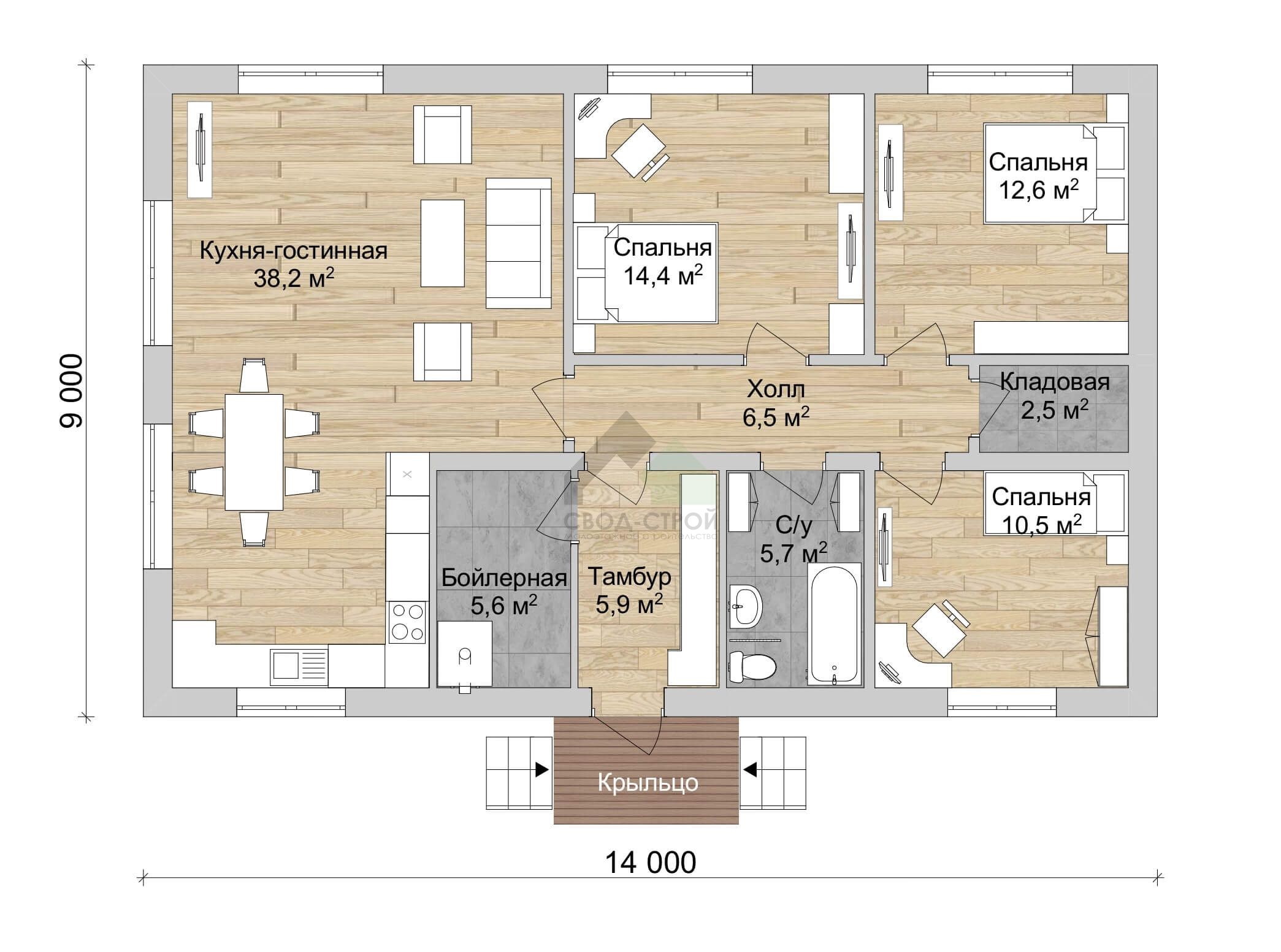
Дом из керамических блоков С-126 КЕ «Октябрь»
Дом из керамических блоков С-126 КЕ «Октябрь»
Застройщик: Свод-Строй
126.0 м²
1 / 2
🏠
126.0 м²
🛏
3 спален
🚿
1 санузл.
📐
3 этаж
🧱
Теплая керамика
Похожие проекты
Похожие по цене
Похожие по площади
Дом из газобетонных блоков С-126 ГБ «Октябрь»
3 спальн. · 1 санузл. · 3 этаж
от 6 357 000 ₽
→
Проект К-87 14 на 8, площадью 227 за 7 557 000 руб
4 спальн. · 2 этаж
от 6 356 000 ₽
→
Традиция
3 спальн. · 2 санузл. · 2 этаж
от 6 359 000 ₽
→
Дом Миронцево
3 спальн. · 2 санузл. · 2 этаж
от 10 380 000 ₽
→
Дом Миронцево
3 спальн. · 2 санузл. · 2 этаж
от 10 760 000 ₽
→
Проект одноэтажного дома "Теодер" из бруса
3 спальн. · 2 этаж
от 9 397 122 ₽
→
На сайт застройщика