Перейти к контенту
Подбор и сравнение проектов домов от застройщиков Московской области
Подборщик домов
Калькулятор сметы
Калькулятор площади
Форум
Блог
Главная
›
Каталог проектов
›
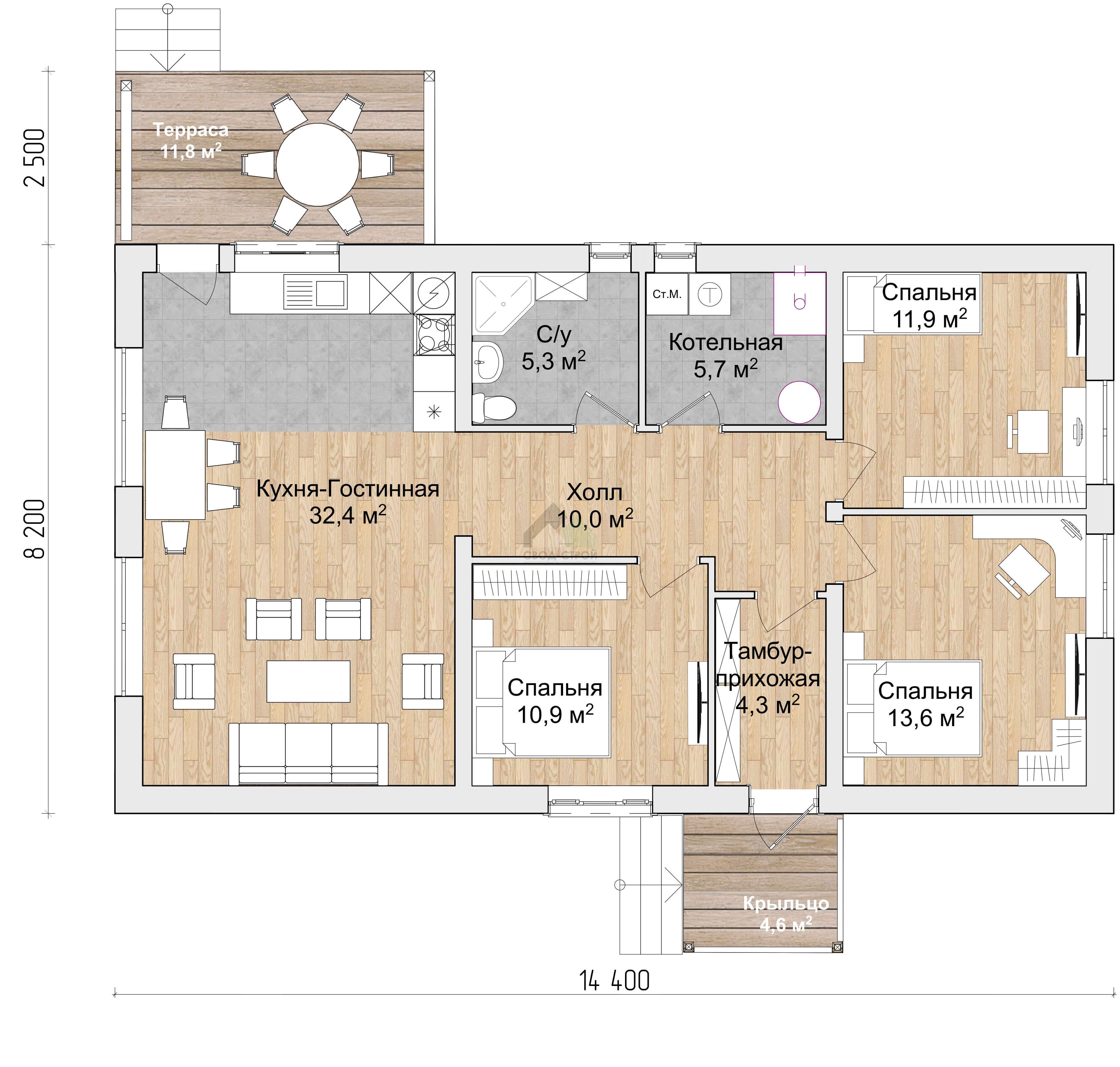
Дом из керамических блоков С-135 КЕ «Афродита»
Дом из керамических блоков С-135 КЕ «Афродита»
Застройщик: Свод-Строй
134.2 м²
1 / 2
🏠
134.2 м²
🛏
3 спален
🚿
1 санузл.
📐
3 этаж
🧱
Теплая керамика
Похожие проекты
Похожие по цене
Похожие по площади
Дом из газобетонных блоков С-135 ГБ «Афродита»
3 спальн. · 1 санузл. · 3 этаж
от 7 606 000 ₽
→
Проект одноэтажного коттеджа "Финский" из газобетона
2 спальн. · 2 этаж
от 7 604 000 ₽
→
Маршал 2
6 спальн. · 3 санузл. · 2 этаж
от 7 604 000 ₽
→
Аврора 11
4 спальн. · 2 санузл. · 2 этаж
от 3 879 800 ₽
→
Дом из газобетонных блоков С-135 ГБ «Афродита»
3 спальн. · 1 санузл. · 3 этаж
от 7 606 000 ₽
→
Каркасный дом С-135 КР «Афродита»
3 спальн. · 1 санузл. · 3 этаж
от 6 991 000 ₽
→
На сайт застройщика