Перейти к контенту
Подбор и сравнение проектов домов от застройщиков Московской области
Подборщик домов
Калькулятор сметы
Калькулятор площади
Форум
Блог
Главная
›
Каталог проектов
›
Дом из керамических блоков С-196 КЕ «Фрэйм»
Дом из керамических блоков С-196 КЕ «Фрэйм»
Застройщик: Свод-Строй
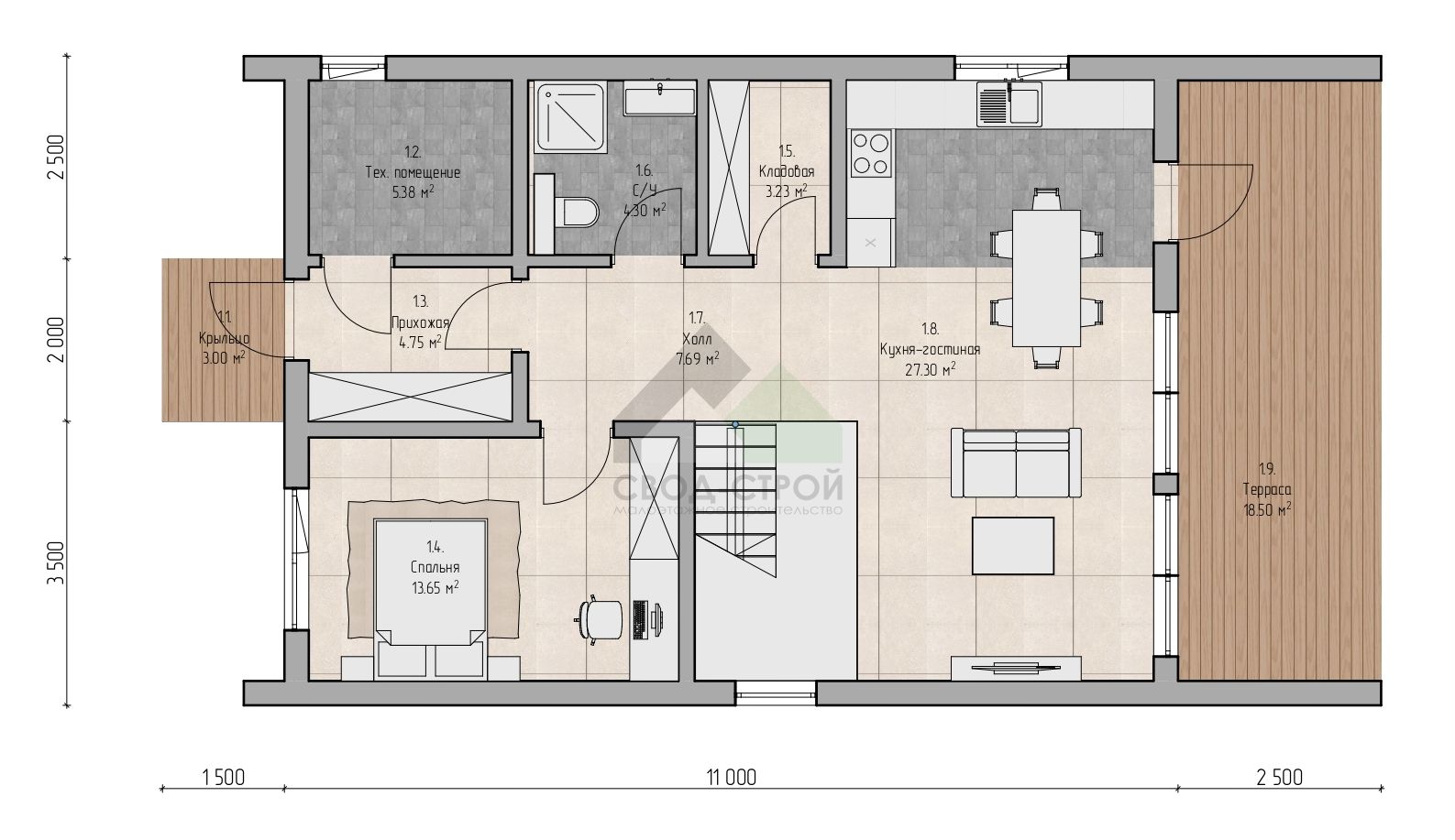
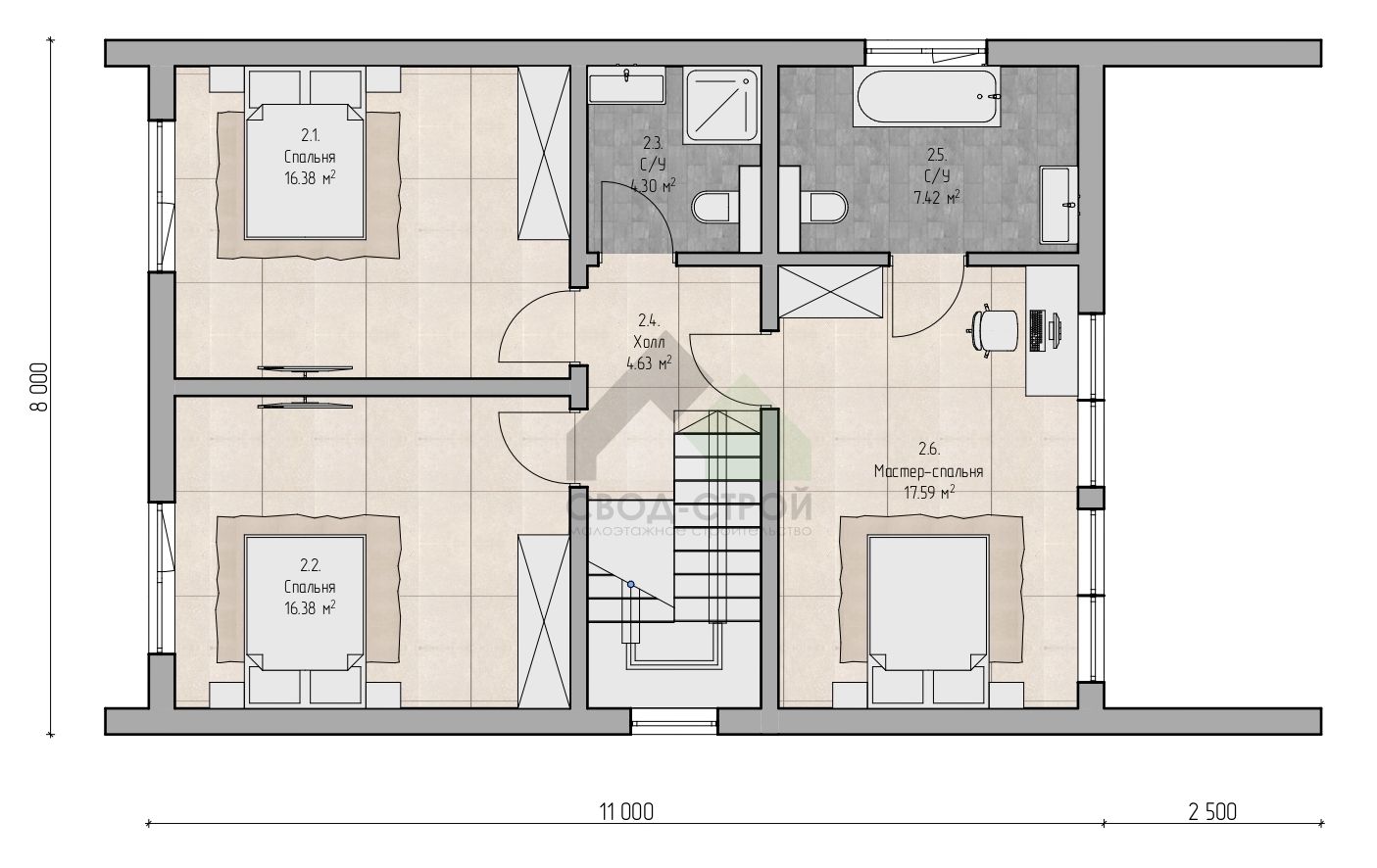
196.0 м²
1 / 3
🏠
196.0 м²
🛏
4 спален
🚿
3 санузл.
📐
2 этаж
🧱
Теплая керамика
Похожие проекты
Похожие по цене
Похожие по площади
Дом из газобетонных блоков С-196 ГБ «Фрэйм»
4 спальн. · 3 санузл. · 2 этаж
от 8 282 000 ₽
→
Сварог
2 санузл. · 2 этаж
от 8 279 800 ₽
→
Дом из газобетонных блоков С-175 ГБ «Сильва»
4 спальн. · 2 санузл. · 4 этаж
от 8 276 000 ₽
→
Проект одноэтажного каркасного дома "Петерсен"
2 этаж
от 13 944 554 ₽
→
Дом по проекту «ЗС 28-15» - Золотое Сечение
4 спальн. · 2 санузл.
от 24 500 000 ₽
→
Проект К-150 14 на 7, площадью 196 за 6 541 500 руб
4 спальн. · 2 этаж
от 6 541 500 ₽
→
На сайт застройщика