Перейти к контенту
Подбор и сравнение проектов домов от застройщиков Московской области
Подборщик домов
Калькулятор сметы
Калькулятор площади
Форум
Блог
Главная
›
Каталог проектов
›
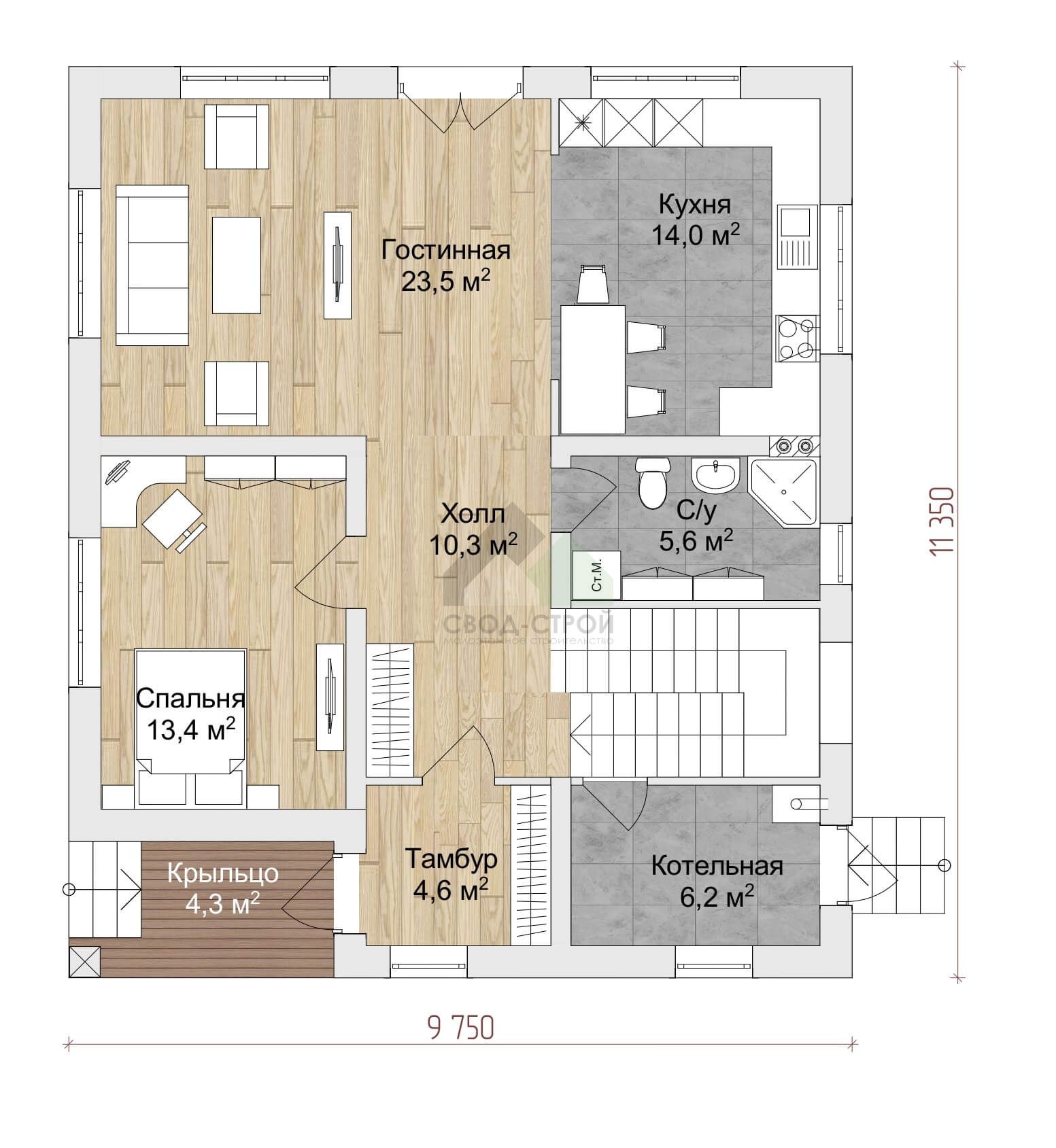
Дом из керамических блоков С-218 КЕ «Австрия»
Дом из керамических блоков С-218 КЕ «Австрия»
Застройщик: Свод-Строй
217.8 м²
1 / 3
🏠
217.8 м²
🛏
4 спален
🚿
2 санузл.
📐
2 этаж
🧱
Теплая керамика
Похожие проекты
Похожие по цене
Похожие по площади
Дом из газобетонных блоков С-218 ГБ «Австрия»
4 спальн. · 2 санузл. · 2 этаж
от 9 087 000 ₽
→
Проект X-060-1D
1 этаж
от 9 087 000 ₽
→
Проект одноэтажного дома "Кривцево" из бруса
4 спальн. · 2 этаж
от 9 084 738 ₽
→
Дом из газобетонных блоков С-218 ГБ «Австрия»
4 спальн. · 2 санузл. · 2 этаж
от 9 087 000 ₽
→
Кирпичный дом С-218 К «Австрия»
4 спальн. · 2 санузл. · 2 этаж
от 9 795 000 ₽
→
Проект A-328-1K
2 этаж
от 17 853 040 ₽
→
На сайт застройщика