Перейти к контенту
Подбор и сравнение проектов домов от застройщиков Московской области
Подборщик домов
Калькулятор сметы
Калькулятор площади
Форум
Блог
Главная
›
Каталог проектов
›
Дом из керамических блоков С-278 КЕ «Легенда»
Дом из керамических блоков С-278 КЕ «Легенда»
Застройщик: Свод-Строй
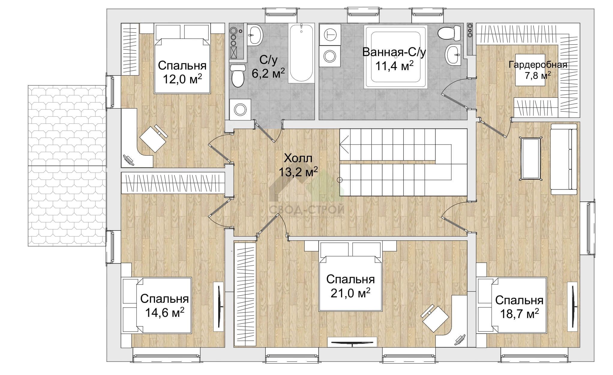
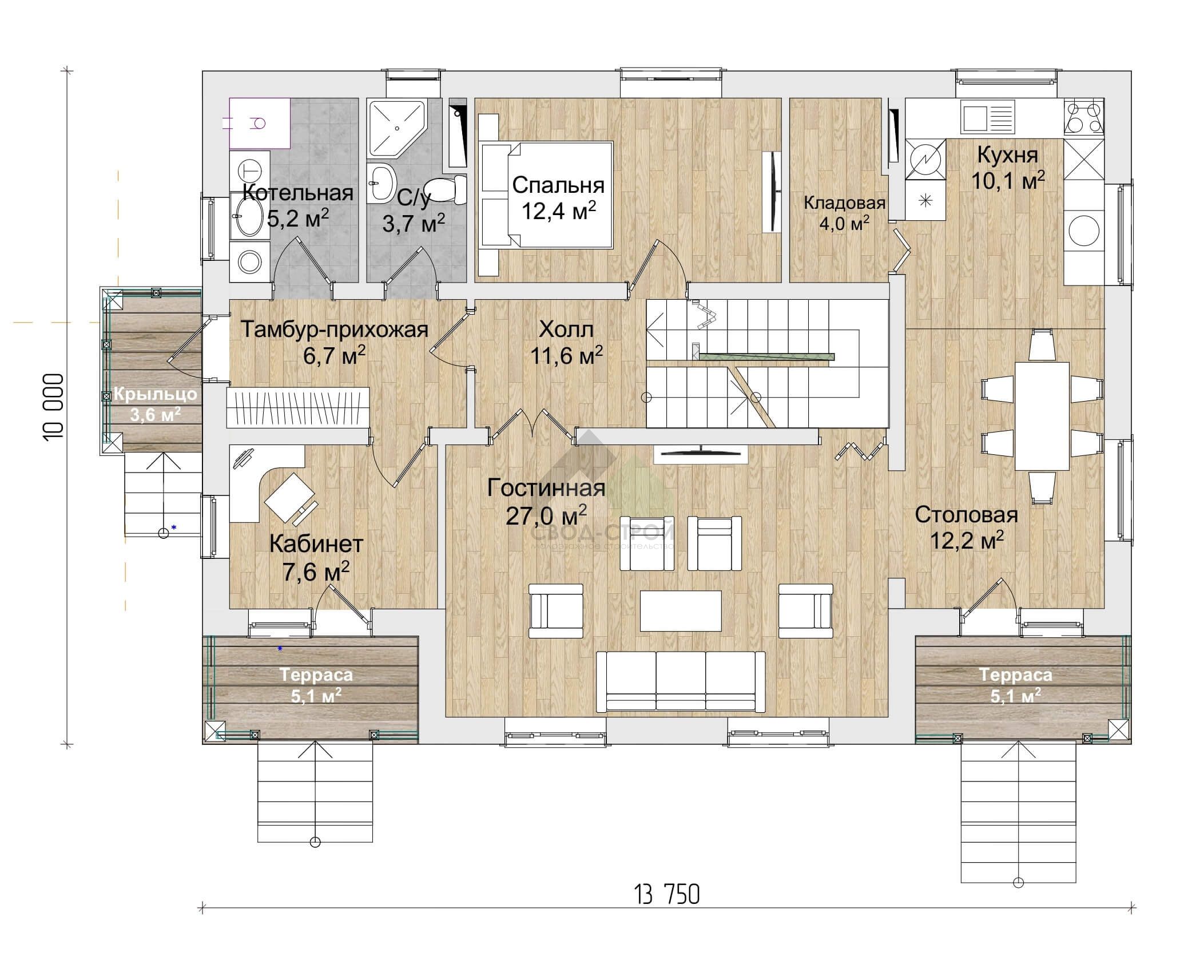
277.6 м²
1 / 3
🏠
277.6 м²
🛏
5 спален
🚿
2 санузл.
📐
2 этаж
🧱
Теплая керамика
Похожие проекты
Похожие по цене
Похожие по площади
Дом из газобетонных блоков С-278 ГБ «Легенда»
5 спальн. · 2 санузл. · 2 этаж
от 11 752 000 ₽
→
Кирпичный дом С-265 К «High-Tech»
2 спальн. · 2 санузл. · 2 этаж
от 11 753 000 ₽
→
Проект G-167-1P
2 этаж
от 11 753 000 ₽
→
Дом из газобетонных блоков С-278 ГБ «Легенда»
5 спальн. · 2 санузл. · 2 этаж
от 11 752 000 ₽
→
Кирпичный дом С-278 К «Легенда»
5 спальн. · 2 санузл. · 2 этаж
от 12 641 000 ₽
→
Проект дома H-270-1P
3 этаж
от 19 434 800 ₽
→
На сайт застройщика