Перейти к контенту
Подбор и сравнение проектов домов от застройщиков Московской области
Подборщик домов
Калькулятор сметы
Калькулятор площади
Форум
Блог
Главная
›
Каталог проектов
›
Каркасный дом С-158 КР «Уют»
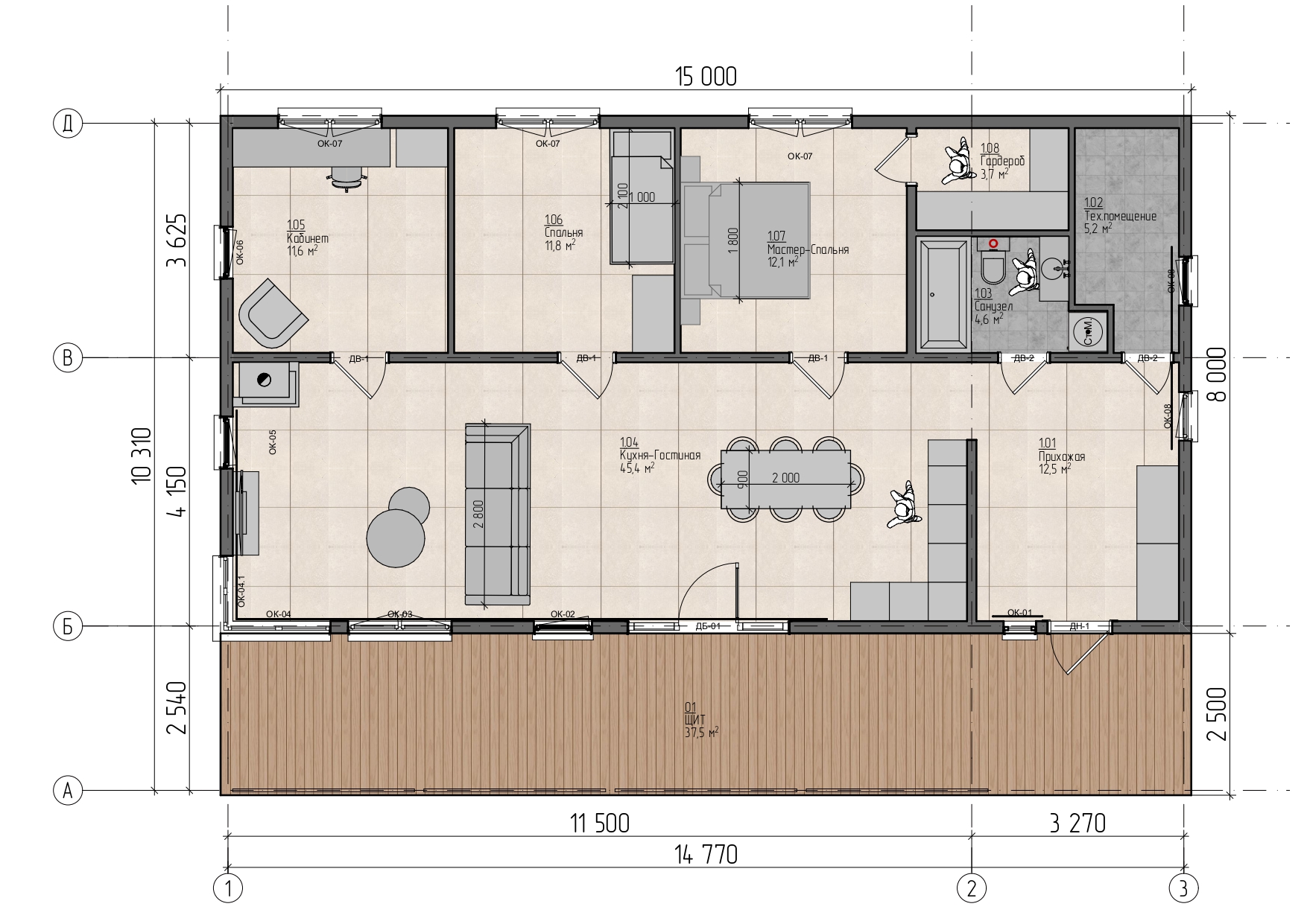
Каркасный дом С-158 КР «Уют»
Застройщик: Свод-Строй
157.5 м²
1 / 2
🏠
157.5 м²
🛏
3 спален
🚿
1 санузл.
📐
3 этаж
🧱
Каркас
Похожие проекты
Похожие по цене
Похожие по площади
Проект одноэтажного дома "Елоха" из бруса
4 спальн. · 2 этаж
от 6 758 992 ₽
→
Проект каркасного дома с мансардой Звенигород XXL под ключ от компании БАКО
3 спальн. · 2 санузл. · 2 этаж
от 6 759 500 ₽
→
Проект W-082-1K
2 этаж
от 6 765 000 ₽
→
Проект одноэтажного коттеджа "Рона" из газобетона
4 спальн. · 2 этаж
от 8 546 000 ₽
→
Проект L-144-3P
2 этаж
от 11 025 000 ₽
→
Проект T-158-1P
2 этаж
от 11 027 800 ₽
→
На сайт застройщика