Перейти к контенту
Подбор и сравнение проектов домов от застройщиков Московской области
Подборщик домов
Калькулятор сметы
Калькулятор площади
Форум
Блог
Главная
›
Каталог проектов
›
Каркасный дом С-189 КР «Жанна»
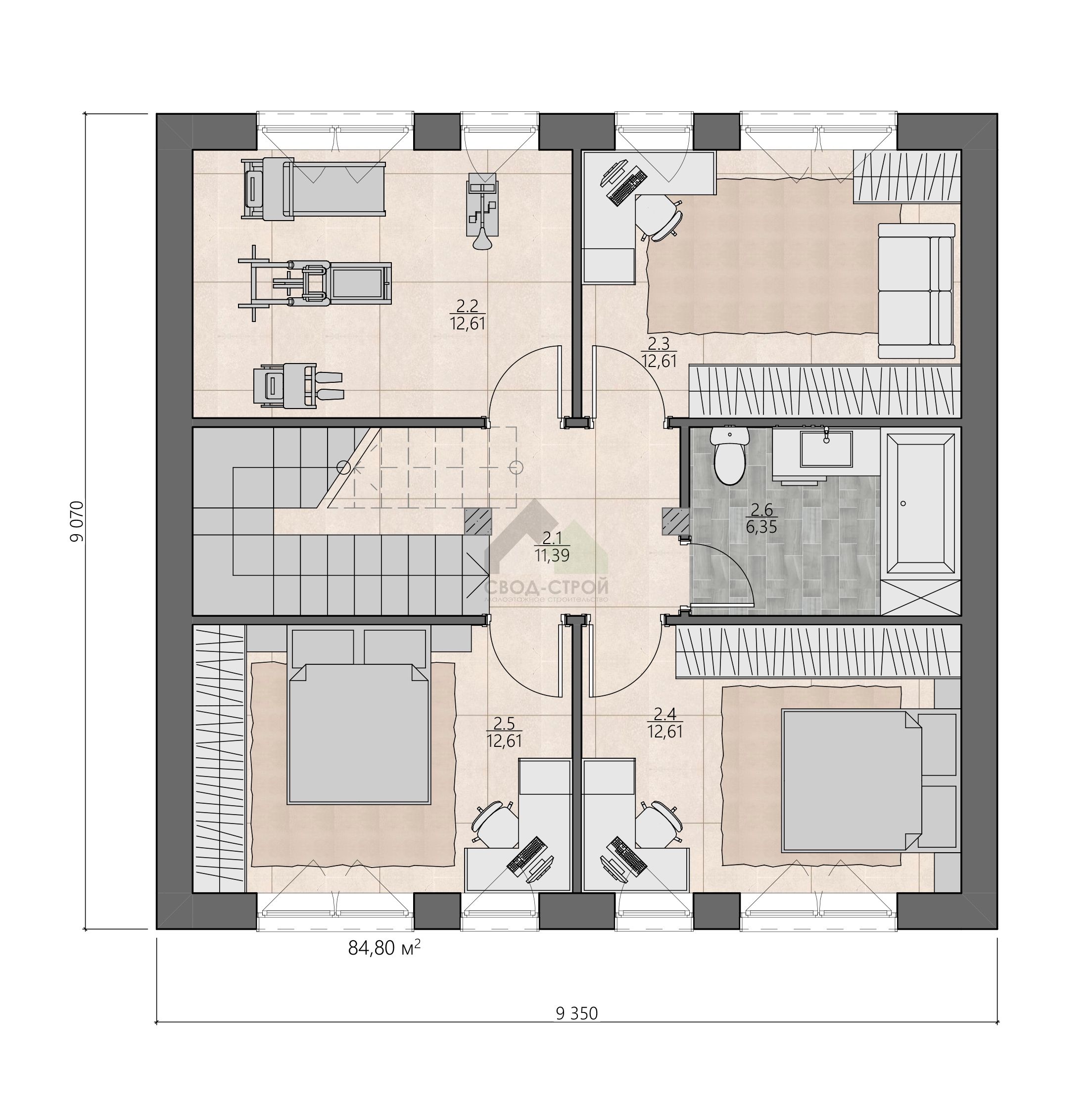
Каркасный дом С-189 КР «Жанна»
Застройщик: Свод-Строй
188.9 м²
1 / 3
🏠
188.9 м²
🛏
5 спален
🚿
2 санузл.
📐
2 этаж
🧱
Каркас
Похожие проекты
Похожие по цене
Похожие по площади
Проект дома D-103-1P
2 этаж
от 7 210 000 ₽
→
Проект двухэтажного коттеджа "Алые паруса" из газобетона
3 спальн. · 2 этаж
от 7 209 000 ₽
→
Проект К-205 9 на 12, площадью 216 за 7 209 000 руб
4 спальн. · 2 этаж
от 7 209 000 ₽
→
Дом из газобетонных блоков С-189 ГБ «Жанна»
5 спальн. · 2 санузл. · 2 этаж
от 8 043 000 ₽
→
Дом из керамических блоков С-189 КЕ «Жанна»
5 спальн. · 2 санузл. · 2 этаж
от 8 043 000 ₽
→
Кирпичный дом С-189 К «Жанна»
5 спальн. · 2 санузл. · 2 этаж
от 8 621 000 ₽
→
На сайт застройщика