Перейти к контенту
Подбор и сравнение проектов домов от застройщиков Московской области
Подборщик домов
Калькулятор сметы
Калькулятор площади
Форум
Блог
Главная
›
Каталог проектов
›
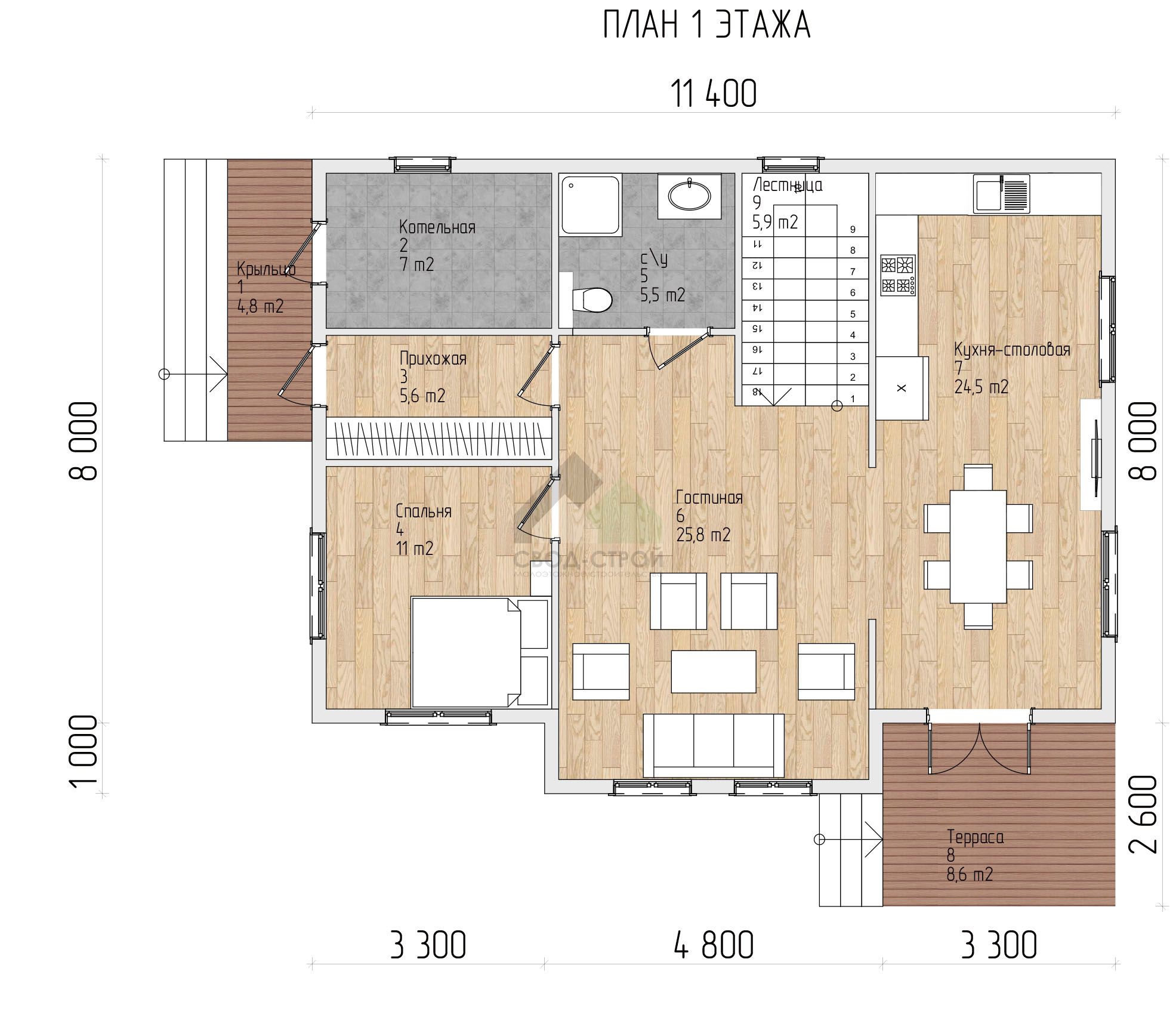
Каркасный дом С-206 КР «Киприда»
Каркасный дом С-206 КР «Киприда»
Застройщик: Свод-Строй
205.4 м²
1 / 3
🏠
205.4 м²
🛏
5 спален
🚿
2 санузл.
📐
2 этаж
🧱
Каркас
Похожие проекты
Похожие по цене
Похожие по площади
Проект К-92 8 на 18, площадью 293 за 9 747 000 руб
4 спальн. · 2 этаж
от 8 204 000 ₽
→
Проект T-117-1P
2 этаж
от 8 204 000 ₽
→
Проект каркасного дома с мансардой Бавария 2 M под ключ от компании БАКО
3 спальн. · 2 санузл. · 2 этаж
от 8 200 500 ₽
→
Дом из керамических блоков С-206 КЕ «Киприда»
5 спальн. · 2 санузл. · 2 этаж
от 8 921 000 ₽
→
Кирпичный дом С-206 К «Киприда»
5 спальн. · 2 санузл. · 2 этаж
от 9 591 000 ₽
→
Проект E-205-1K
2 этаж
от 16 842 800 ₽
→
На сайт застройщика