Перейти к контенту
Подбор и сравнение проектов домов от застройщиков Московской области
Подборщик домов
Калькулятор сметы
Калькулятор площади
Форум
Блог
Главная
›
Каталог проектов
›
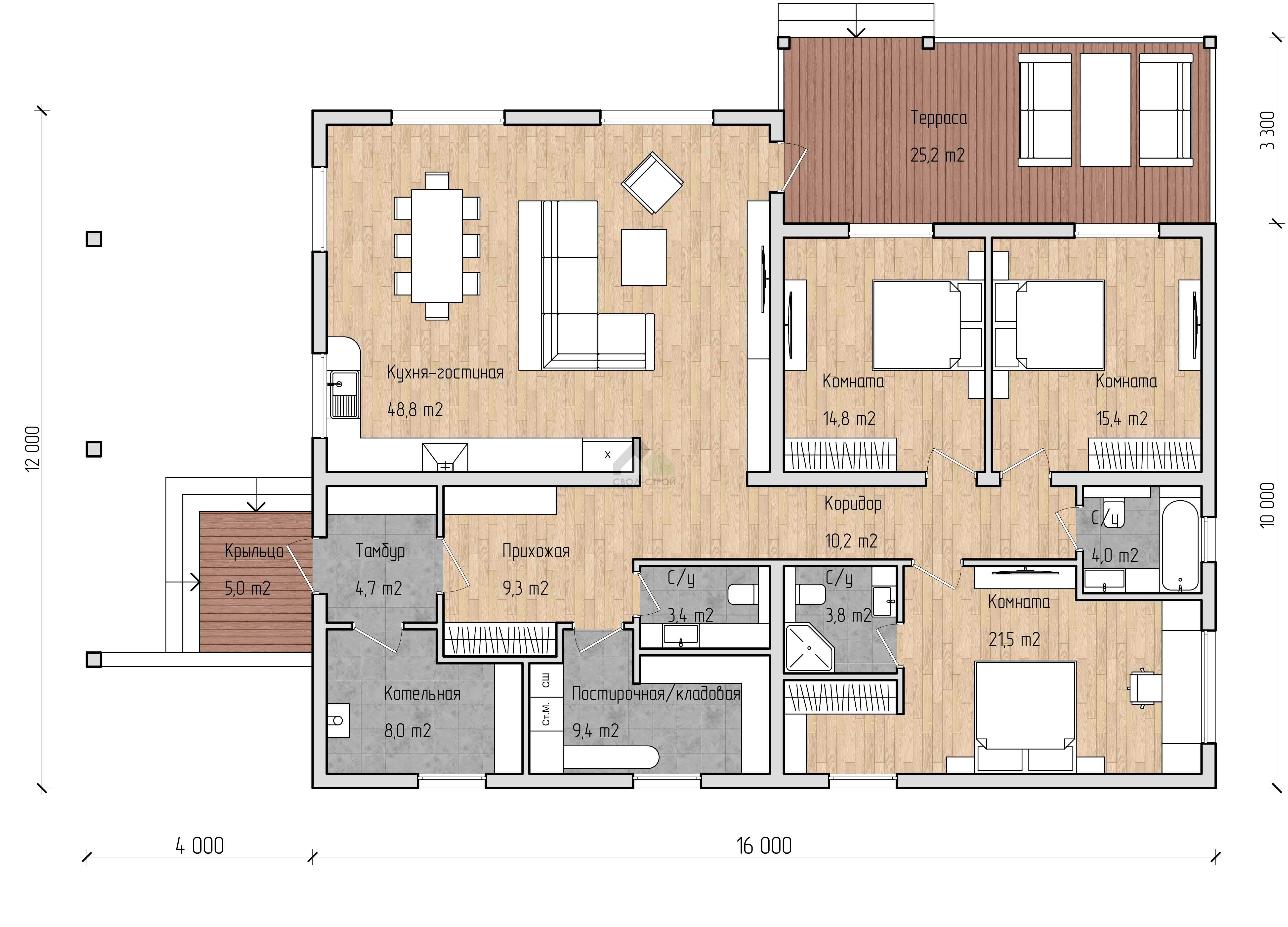
Каркасный дом С-207 КР «Бремен»
Каркасный дом С-207 КР «Бремен»
Застройщик: Свод-Строй
207.0 м²
1 / 2
🏠
207.0 м²
🛏
3 спален
🚿
2 санузл.
📐
3 этаж
🧱
Каркас
Похожие проекты
Похожие по цене
Похожие по площади
Проект одноэтажного дома "Золотой ключик-2" из бруса
2 спальн. · 2 этаж
от 8 380 936 ₽
→
Уэльс 23
2 санузл. · 2 этаж
от 8 379 800 ₽
→
Проект T-120-1P
1 этаж
от 8 379 000 ₽
→
Дом по проекту «ЗС 1-16» - Золотое Сечение
3 спальн. · 3 санузл.
от 25 875 000 ₽
→
Дом из газобетонных блоков С-207 ГБ «Бремен»
3 спальн. · 2 санузл. · 3 этаж
от 9 792 000 ₽
→
Дом из керамических блоков С-207 КЕ «Бремен»
3 спальн. · 2 санузл. · 3 этаж
от 9 792 000 ₽
→
На сайт застройщика