Перейти к контенту
Подбор и сравнение проектов домов от застройщиков Московской области
Подборщик домов
Калькулятор сметы
Калькулятор площади
Форум
Блог
Главная
›
Каталог проектов
›
Каркасный дом С-232 КР «Леон»
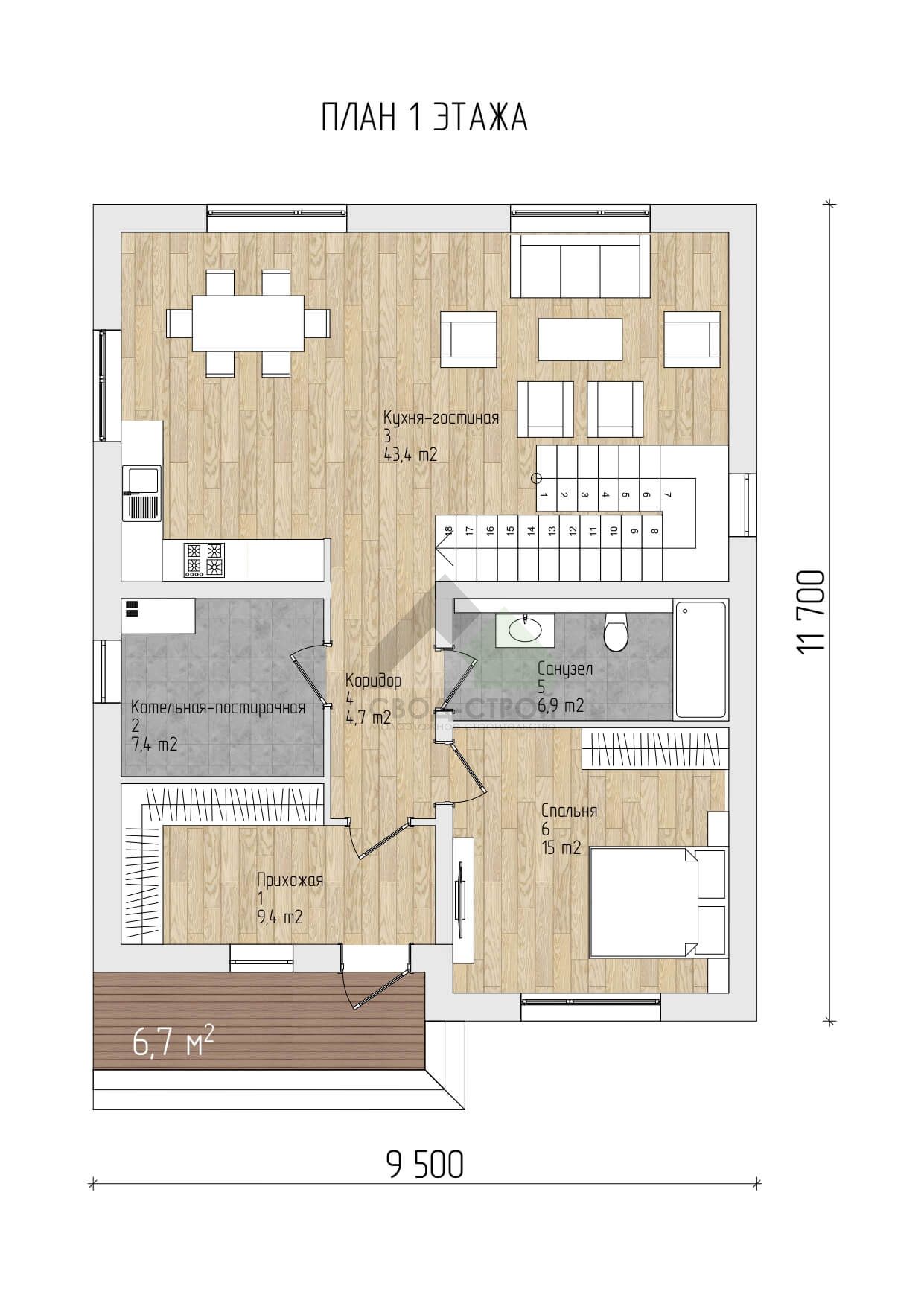
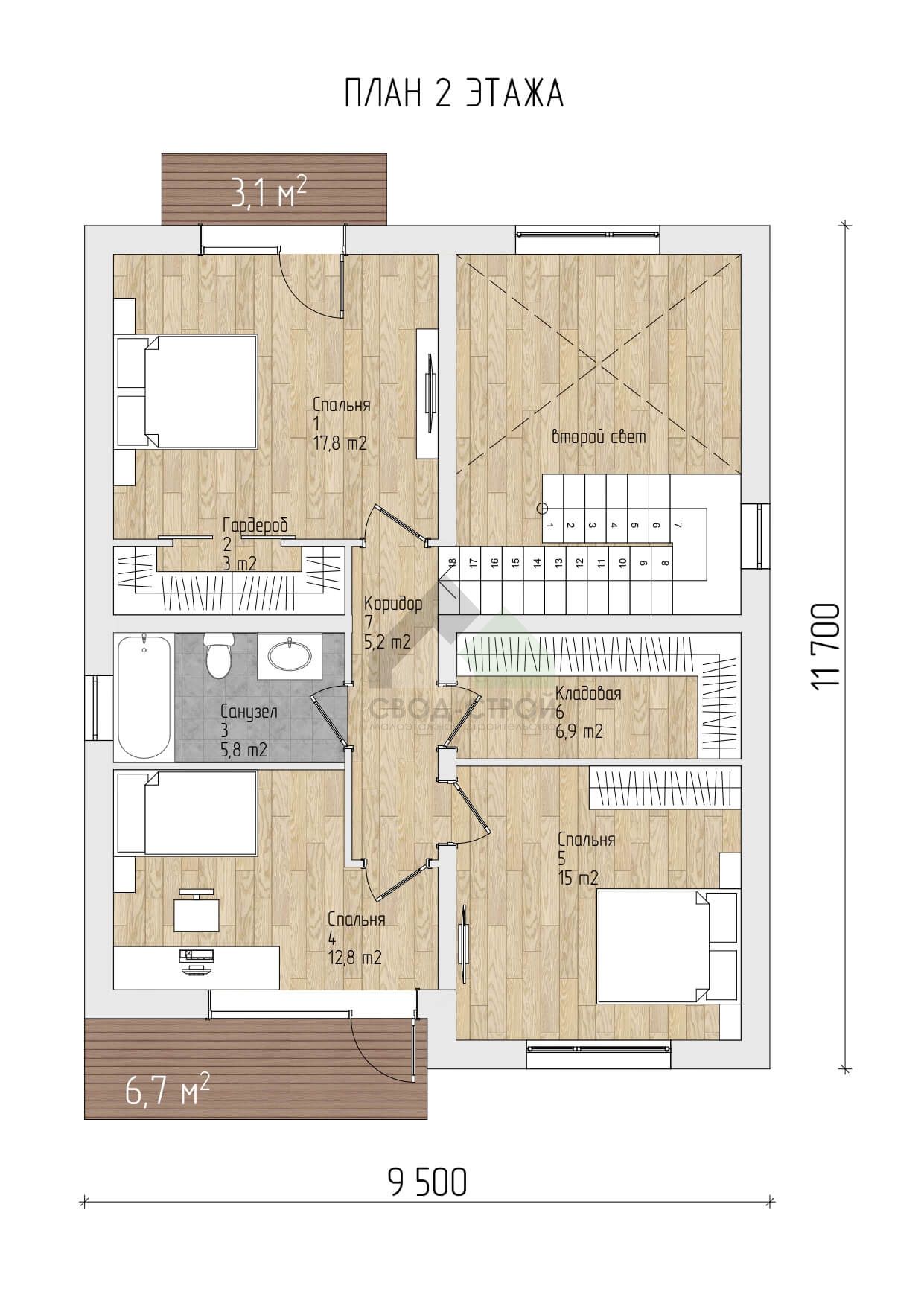
Каркасный дом С-232 КР «Леон»
Застройщик: Свод-Строй
232.0 м²
1 / 3
🏠
232.0 м²
🛏
4 спален
🚿
2 санузл.
📐
2 этаж
🧱
Каркас
Похожие проекты
Похожие по цене
Похожие по площади
Дом из газобетона Проект ГБ-2
3 спальн. · 2 санузл. · 2 этаж
от 8 319 000 ₽
→
Проект одноэтажного дома "Ависсо" из бревна
1 спальн. · 1 этаж
от 8 314 682 ₽
→
Проекты домов из газобетона Тетрис L под ключ
4 спальн. · 2 санузл. · 2 этаж
от 8 323 800 ₽
→
Дом из кирпича Проект КД-11
3 спальн. · 2 санузл. · 2 этаж
от 420 000 ₽
→
Проект двухэтажный 11,5х12м № 346
2 этаж
от 9 902 950 ₽
→
Проект дома 11,5х12м № 346
2 этаж
от 9 902 950 ₽
→
На сайт застройщика