Перейти к контенту
Подбор и сравнение проектов домов от застройщиков Московской области
Подборщик домов
Калькулятор сметы
Калькулятор площади
Форум
Блог
Главная
›
Каталог проектов
›
Кирпичный дом С-150 К «Альта»
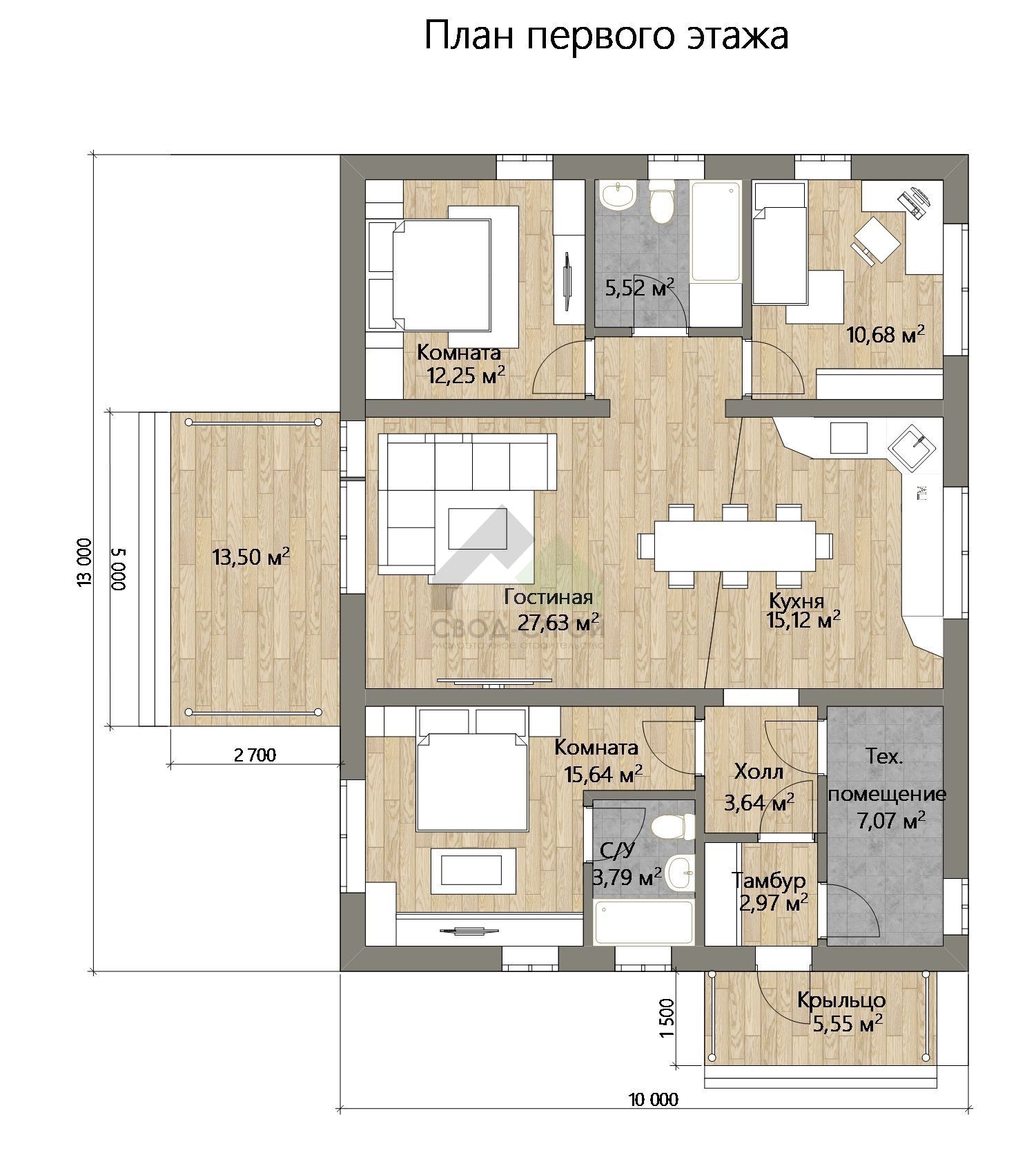
Кирпичный дом С-150 К «Альта»
Застройщик: Свод-Строй
149.1 м²
1 / 2
🏠
149.1 м²
🛏
3 спален
🚿
2 санузл.
📐
3 этаж
🧱
Кирпич
Похожие проекты
Похожие по цене
Похожие по площади
Аллебро 135
3 спальн. · 1 этаж
от 7 743 202 ₽
→
Проект одноэтажного дома "Княжич" из бруса
4 спальн. · 2 этаж
от 7 741 109 ₽
→
Проект одноэтажного дома "Страдивари (одноэтажный)" из бруса
4 спальн. · 1 этаж
от 7 741 109 ₽
→
Дом из газобетонных блоков С-150 ГБ «Альта»
3 спальн. · 2 санузл. · 3 этаж
от 7 240 000 ₽
→
Дом из керамических блоков С-150 КЕ «Альта»
3 спальн. · 2 санузл. · 3 этаж
от 7 240 000 ₽
→
Каркасный дом С-150 КР «Альта»
3 спальн. · 2 санузл. · 3 этаж
от 6 493 000 ₽
→
На сайт застройщика