Перейти к контенту
Подбор и сравнение проектов домов от застройщиков Московской области
Подборщик домов
Калькулятор сметы
Калькулятор площади
Форум
Блог
Главная
›
Каталог проектов
›
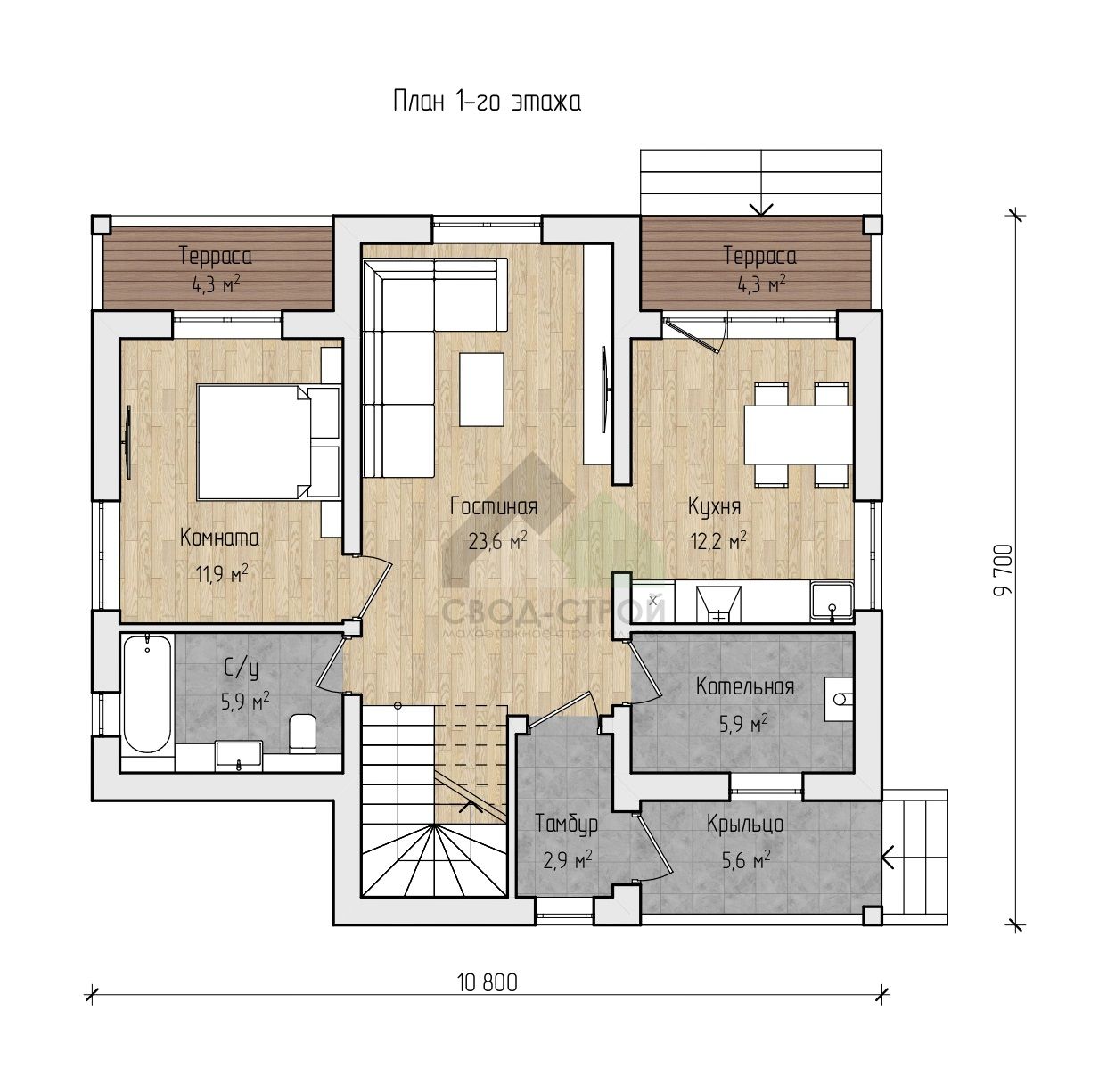
Кирпичный дом С-185 К «Сиеста»
Кирпичный дом С-185 К «Сиеста»
Застройщик: Свод-Строй
185.0 м²
1 / 3
🏠
185.0 м²
🛏
4 спален
🚿
2 санузл.
📐
2 этаж
🧱
Кирпич
Похожие проекты
Похожие по цене
Похожие по площади
Двухэтажный дом «Руза» | ЭкоТех
5 спальн. · 2 санузл. · 2 этаж
от 8 761 000 ₽
→
Песня 5
4 спальн. · 2 санузл. · 1 этаж
от 8 764 000 ₽
→
Песня 5
4 спальн. · 2 санузл. · 1 этаж
от 8 764 000 ₽
→
Проект одноэтажного каркасного дома "Фигаро"
3 спальн. · 2 этаж
от 13 566 326 ₽
→
Проект К-68 11 на 8, площадью 185 за 6 117 000 руб
3 спальн. · 2 этаж
от 6 117 000 ₽
→
Проект К-68 11 на 8, площадью 185 за 6 117 000 руб
3 спальн. · 2 этаж
от 5 180 000 ₽
→
На сайт застройщика