Перейти к контенту
Подбор и сравнение проектов домов от застройщиков Московской области
Подборщик домов
Калькулятор сметы
Калькулятор площади
Форум
Блог
Главная
›
Каталог проектов
›
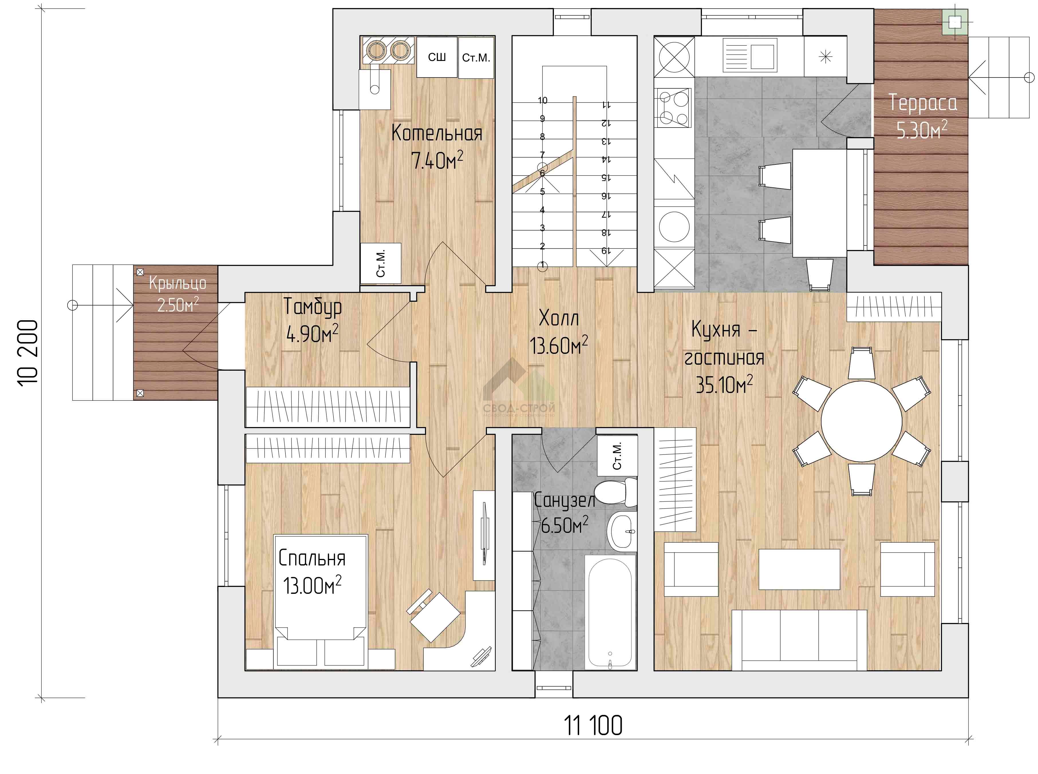
Кирпичный дом С-211 К «Лето»
Кирпичный дом С-211 К «Лето»
Застройщик: Свод-Строй
210.7 м²
1 / 3
🏠
210.7 м²
🛏
4 спален
🚿
3 санузл.
📐
2 этаж
🧱
Кирпич
Похожие проекты
Похожие по цене
Похожие по площади
Проект одноэтажного каркасного дома "Княжич ТН1"
2 этаж
от 9 839 214 ₽
→
Проект одноэтажного каркасного дома "Княжич ТН2"
2 этаж
от 9 839 214 ₽
→
Проект дома G-141-1P
2 этаж
от 9 842 000 ₽
→
Дом из газобетонных блоков С-211 ГБ «Лето»
4 спальн. · 3 санузл. · 2 этаж
от 9 138 000 ₽
→
Дом из керамических блоков С-211 КЕ «Лето»
4 спальн. · 3 санузл. · 2 этаж
от 9 138 000 ₽
→
Проект дома M-211-1P
2 этаж
от 14 756 000 ₽
→
На сайт застройщика