Перейти к контенту
Подбор и сравнение проектов домов от застройщиков Московской области
Подборщик домов
Калькулятор сметы
Калькулятор площади
Форум
Блог
Главная
›
Каталог проектов
›
Кирпичный дом С-232 К «Леон»
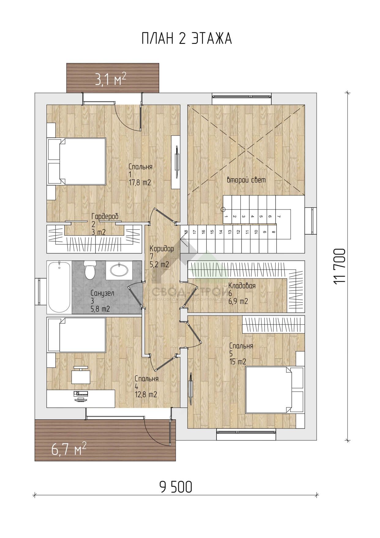
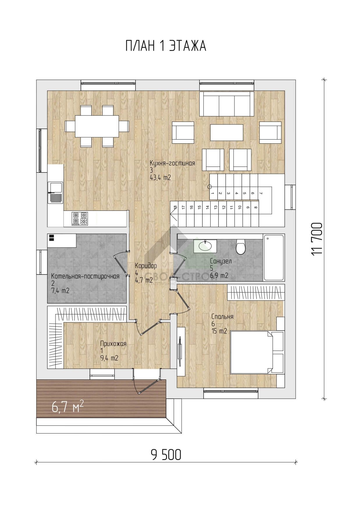
Кирпичный дом С-232 К «Леон»
Застройщик: Свод-Строй
232.0 м²
1 / 3
🏠
232.0 м²
🛏
4 спален
🚿
2 санузл.
📐
2 этаж
🧱
Кирпич
Похожие проекты
Похожие по цене
Похожие по площади
Проект одноэтажного коттеджа "Робинзон Крузо" из газобетона
4 спальн. · 2 этаж
от 10 249 000 ₽
→
Проект дома из газоблоков 8х14 ГББ-175: цена 6837000 руб.
4 спальн. · 3 санузл. · 2 этаж
от 10 249 000 ₽
→
Проект D-125-1K
2 этаж
от 10 250 000 ₽
→
Дом из кирпича Проект КД-11
3 спальн. · 2 санузл. · 2 этаж
от 420 000 ₽
→
Проект двухэтажный 11,5х12м № 346
2 этаж
от 9 902 950 ₽
→
Проект дома 11,5х12м № 346
2 этаж
от 9 902 950 ₽
→
На сайт застройщика