Перейти к контенту
Подбор и сравнение проектов домов от застройщиков Московской области
Подборщик домов
Калькулятор сметы
Калькулятор площади
Форум
Блог
Главная
›
Каталог проектов
›
Кирпичный дом С-250 К «Династия»
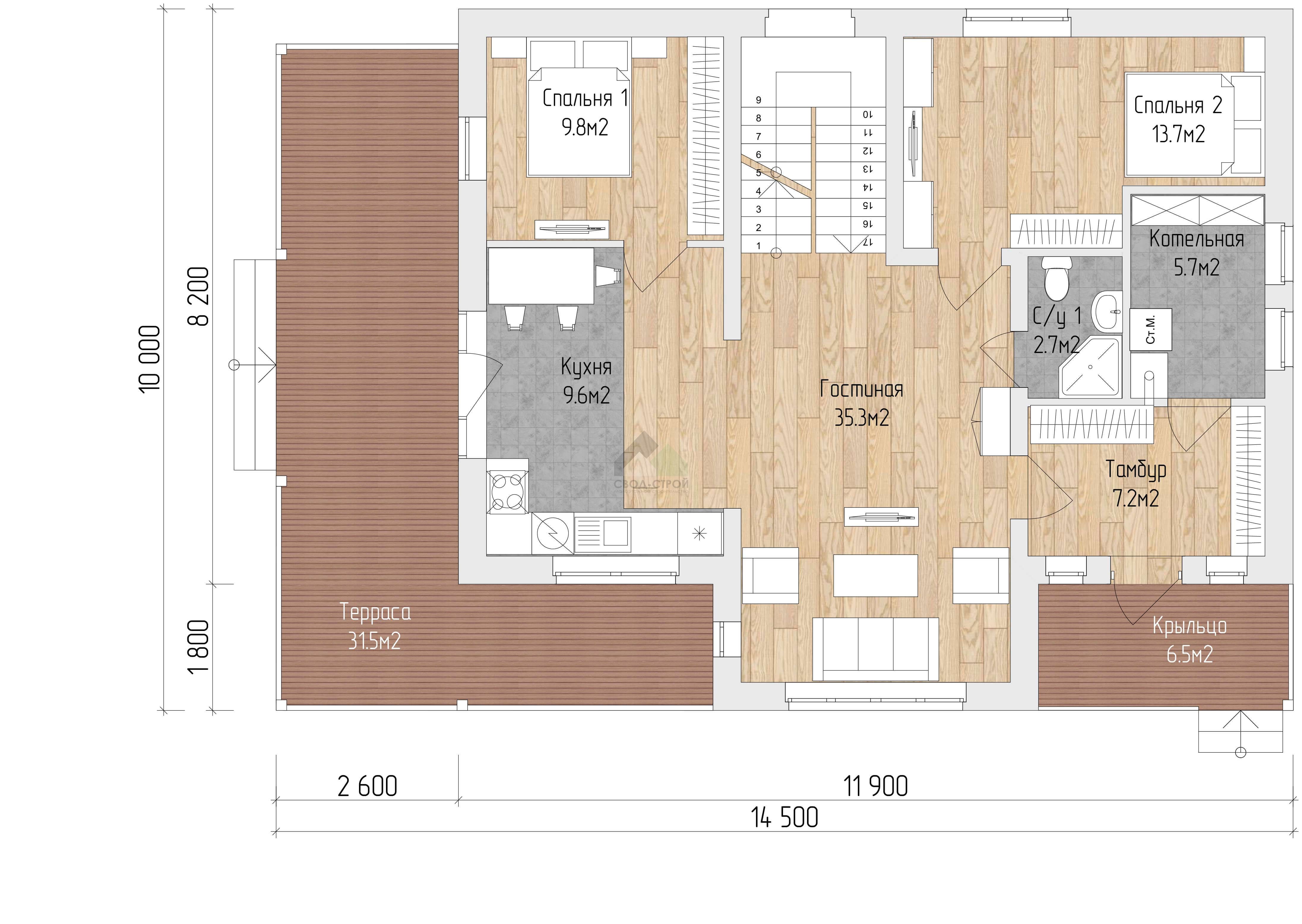
Кирпичный дом С-250 К «Династия»
Застройщик: Свод-Строй
249.6 м²
1 / 3
🏠
249.6 м²
🛏
5 спален
🚿
3 санузл.
📐
2 этаж
🧱
Кирпич
Похожие проекты
Похожие по цене
Похожие по площади
Проект одноэтажного дома "Рамиата" из бруса
2 спальн. · 2 этаж
от 11 129 543 ₽
→
Проект одноэтажного коттеджа "Пик-а-Бу" из газобетона
4 спальн. · 2 этаж
от 11 130 000 ₽
→
Дом из клееного бруса «Раменский» | ЭкоТех
3 спальн. · 2 санузл. · 1 этаж
от 11 128 000 ₽
→
Проект просторного двухэтажного особняка КУБ
4 спальн. · 3 санузл. · 2 этаж
от 26 723 500 ₽
→
Дом из газобетонных блоков С-250 ГБ «Династия»
5 спальн. · 3 санузл. · 2 этаж
от 10 423 000 ₽
→
Дом из керамических блоков С-250 КЕ «Династия»
5 спальн. · 3 санузл. · 2 этаж
от 10 423 000 ₽
→
На сайт застройщика