Перейти к контенту
Подбор и сравнение проектов домов от застройщиков Московской области
Подборщик домов
Калькулятор сметы
Калькулятор площади
Форум
Блог
Главная
›
Каталог проектов
›
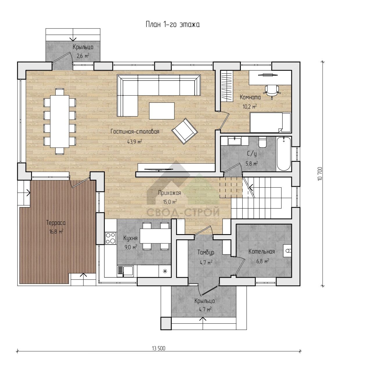
Кирпичный дом С-288 К «Холмы»
Кирпичный дом С-288 К «Холмы»
Застройщик: Свод-Строй
288.0 м²
1 / 3
🏠
288.0 м²
🛏
4 спален
🚿
2 санузл.
📐
4 этаж
🧱
Кирпич
Похожие проекты
Похожие по цене
Похожие по площади
Двухэтажный дом с гаражом на две машины «Рейтон»
3 спальн. · 4 санузл. · 2 этаж
от 12 990 000 ₽
→
Дом Боярин
4 спальн. · 3 санузл. · 2 этаж
от 12 979 000 ₽
→
Проект V-185-1P
2 этаж
от 12 998 300 ₽
→
Проект К-225 8 на 17, площадью 288 за 9 510 000 руб
4 спальн. · 2 этаж
от 9 510 000 ₽
→
Проект К-225 8 на 17, площадью 288 за 9 510 000 руб
4 спальн. · 2 этаж
от 8 064 000 ₽
→
Дом из газобетонных блоков С-288 ГБ «Холмы»
4 спальн. · 2 санузл. · 4 этаж
от 12 192 000 ₽
→
На сайт застройщика