Перейти к контенту
Подбор и сравнение проектов домов от застройщиков Московской области
Подборщик домов
Калькулятор сметы
Калькулятор площади
Форум
Блог
Главная
›
Каталог проектов
›
Кирпичный дом С-298 К «Созвездие»
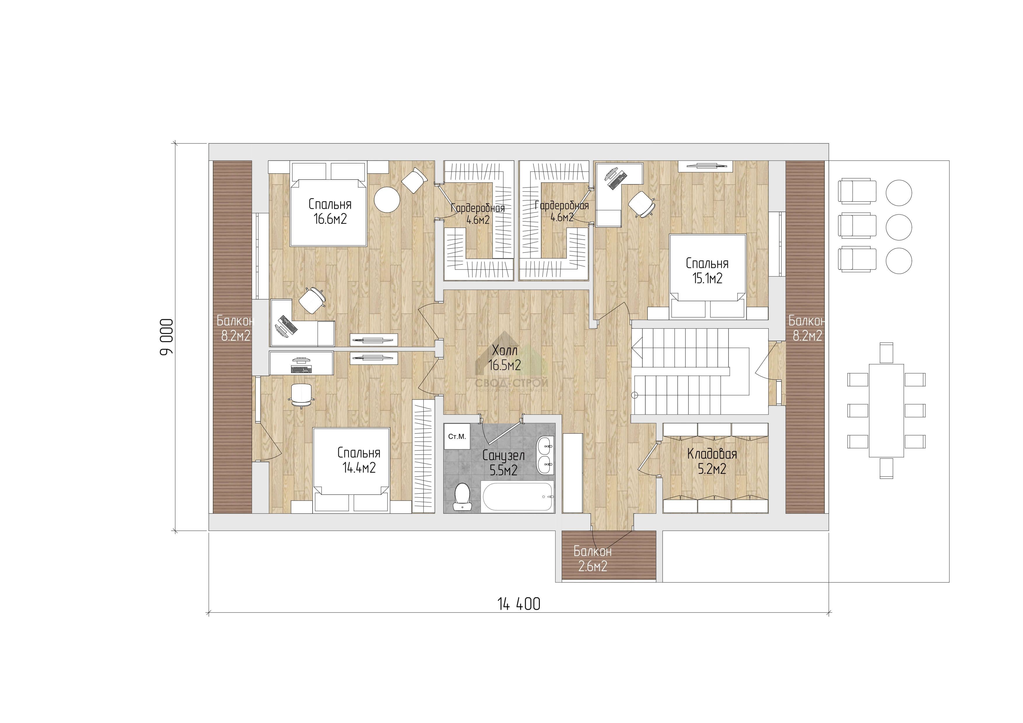
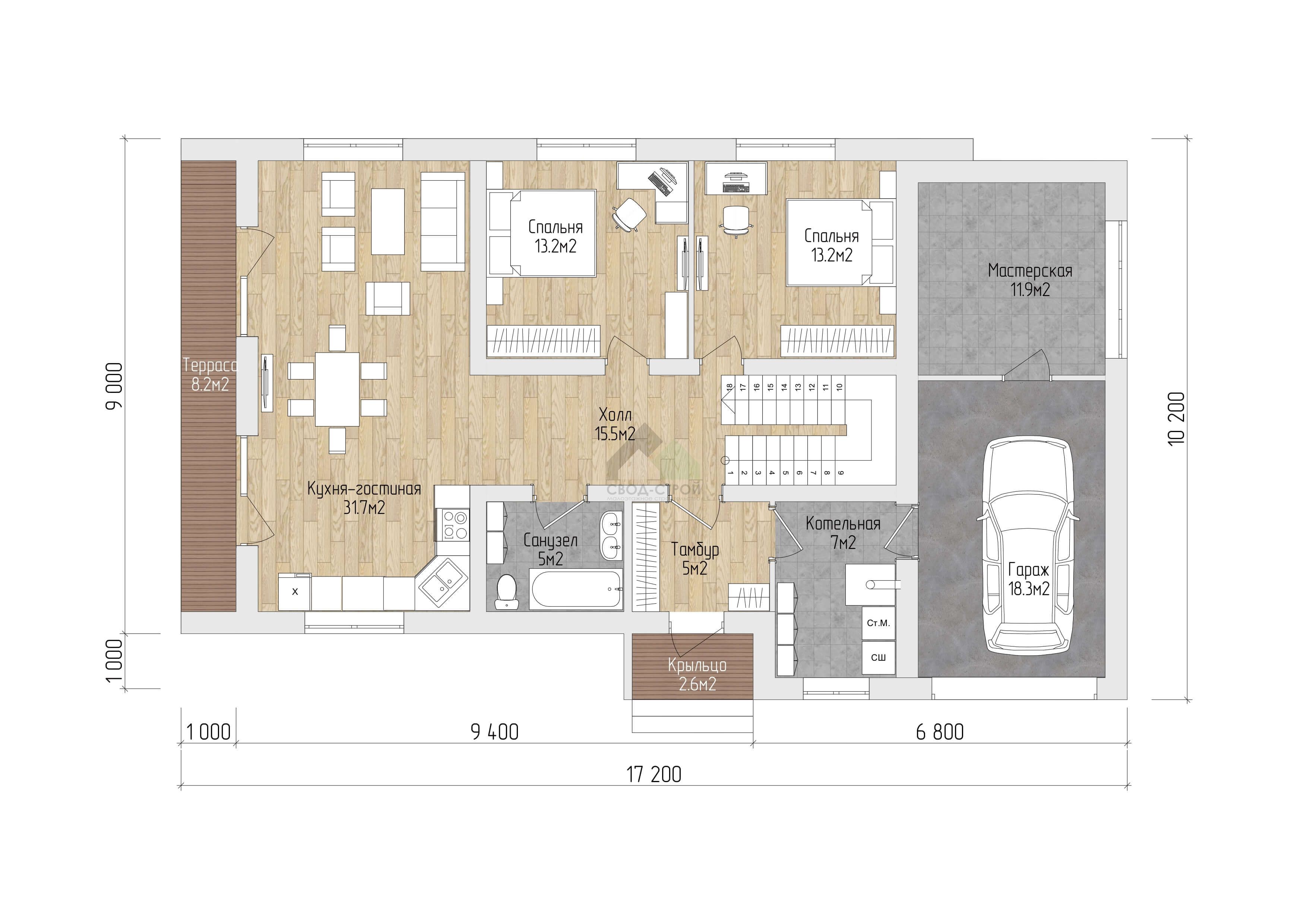
Кирпичный дом С-298 К «Созвездие»
Застройщик: Свод-Строй
297.3 м²
1 / 3
🏠
297.3 м²
🛏
5 спален
🚿
2 санузл.
📐
2 этаж
🧱
Кирпич
Похожие проекты
Похожие по цене
Похожие по площади
Проект R-196-1P
2 этаж
от 13 734 000 ₽
→
Проект U-198-2P
2 этаж
от 13 748 000 ₽
→
Проект дома V-196-1P
2 этаж
от 13 748 000 ₽
→
Дом из газобетонных блоков С-298 ГБ «Созвездие»
5 спальн. · 2 санузл. · 2 этаж
от 12 817 000 ₽
→
Дом из керамических блоков С-298 КЕ «Созвездие»
5 спальн. · 2 санузл. · 2 этаж
от 12 817 000 ₽
→
Проект N-241-2P
3 этаж
от 20 806 100 ₽
→
На сайт застройщика