Перейти к контенту
Подбор и сравнение проектов домов от застройщиков Московской области
Подборщик домов
Калькулятор сметы
Калькулятор площади
Форум
Блог
Главная
›
Каталог проектов
›
Кирпичный дом С-350 К «Шираз»
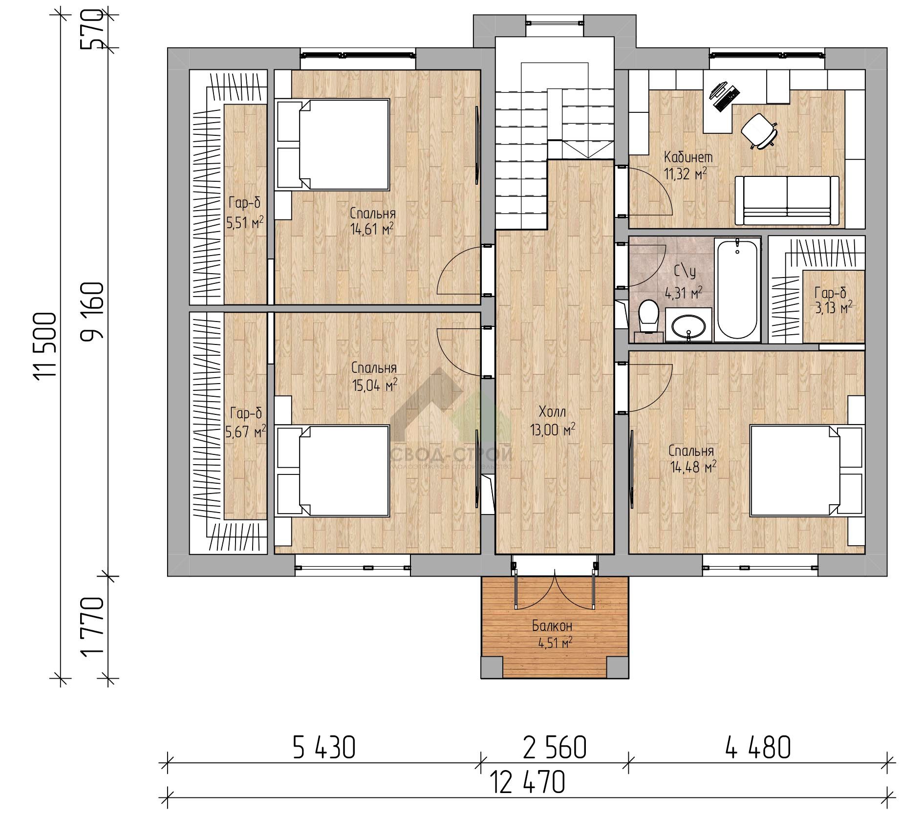
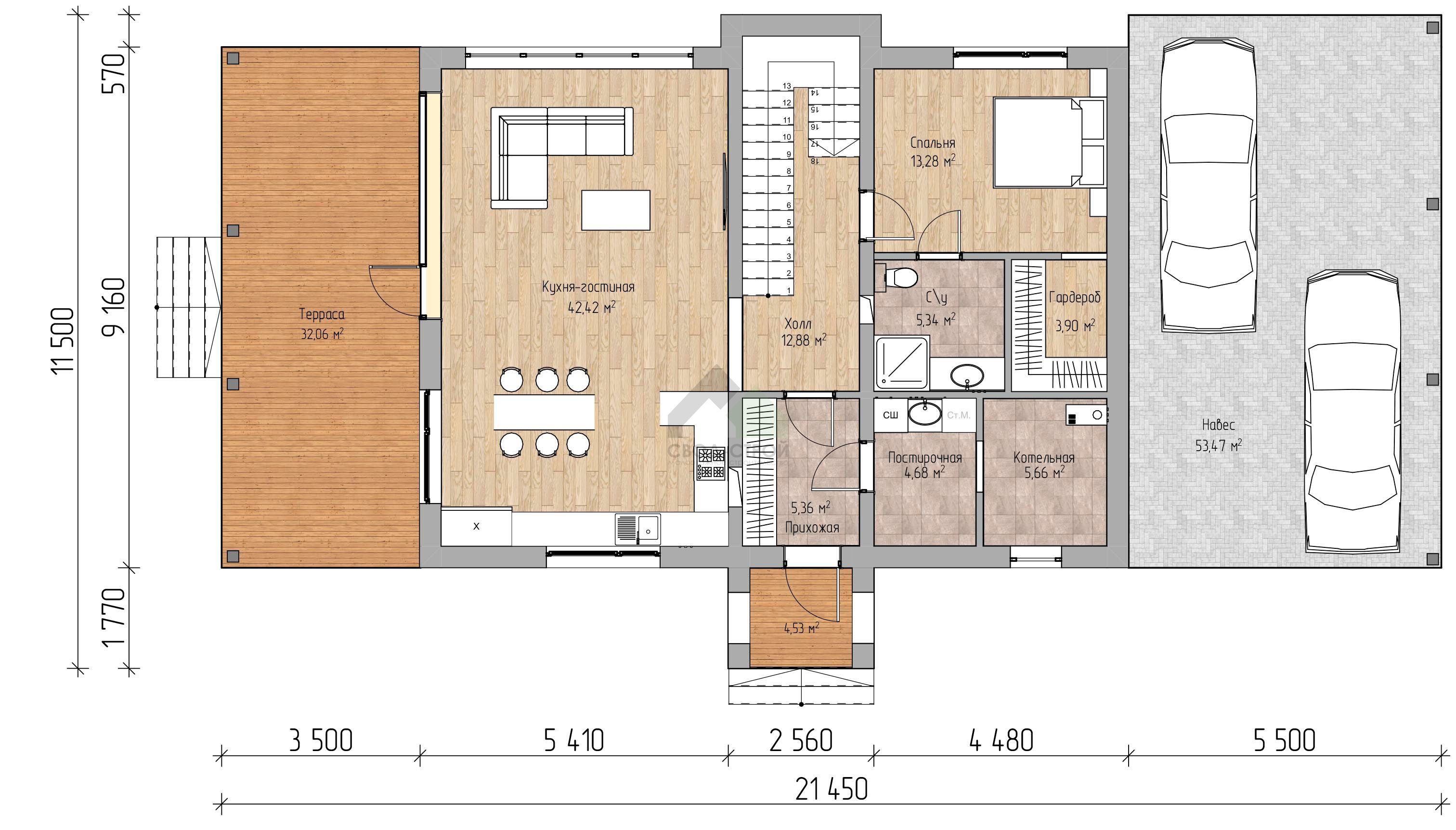
Кирпичный дом С-350 К «Шираз»
Застройщик: Свод-Строй
350.0 м²
1 / 3
🏠
350.0 м²
🛏
4 спален
🚿
2 санузл.
📐
4 этаж
🧱
Кирпич
Похожие проекты
Похожие по цене
Похожие по площади
Проект дома «Диксон»
2 спальн. · 1 этаж
от 15 604 000 ₽
→
Проект S-191-1K
2 этаж
от 15 604 600 ₽
→
Проект двухэтажного дома "Уголок-М7" из бруса
3 спальн. · 2 этаж
от 15 600 705 ₽
→
Дом по проекту «ЗС 557-20» - Золотое Сечение
5 спальн. · 5 санузл.
от 43 750 000 ₽
→
Дом из газобетонных блоков С-350 ГБ «Шираз»
4 спальн. · 2 санузл. · 4 этаж
от 14 747 000 ₽
→
Дом из керамических блоков С-350 КЕ «Шираз»
4 спальн. · 2 санузл. · 4 этаж
от 14 747 000 ₽
→
На сайт застройщика