Перейти к контенту
Подбор и сравнение проектов домов от застройщиков Московской области
Подборщик домов
Калькулятор сметы
Калькулятор площади
Форум
Блог
Главная
›
Каталог проектов
›
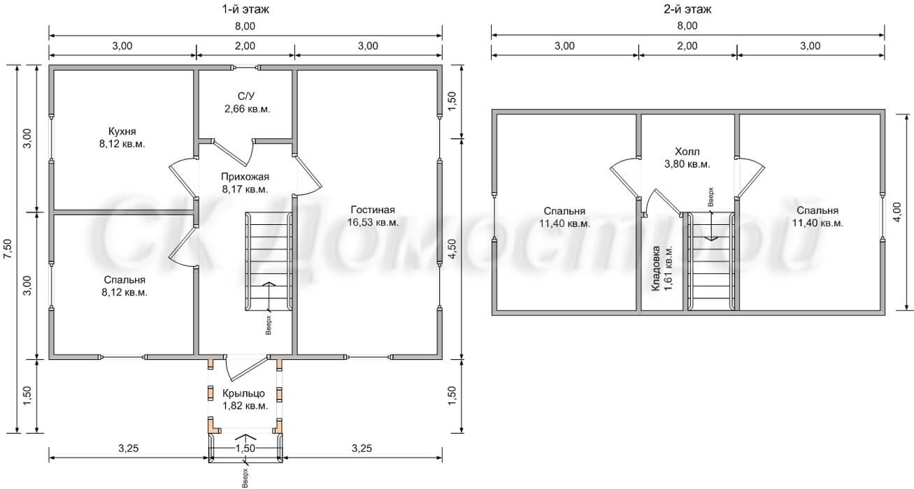
Дом «Сергеев» 6х8 м
Дом «Сергеев» 6х8 м
Застройщик: СК Домострой
76.0 м²
1 / 2
🏠
76.0 м²
🛏
3 спален
📐
2 этаж
🧱
Каркас
Похожие проекты
Похожие по цене
Похожие по площади
ПД - 112 - Строительство домов из Каркаса, СИП, Бруса под ключ
4 спальн. · 2 санузл. · 2 этаж
от 2 890 000 ₽
→
Проект дома «Переделкино» | ЭкоТех
3 спальн. · 2 санузл. · 2 этаж
от 2 881 000 ₽
→
Стрелец 1
3 спальн. · 1 санузл. · 2 этаж
от 2 899 800 ₽
→
Каркасная баня «КБ-58
от 3 990 000 ₽
→
Проект каркасного дома КП-60Т
1 этаж
от 6 700 000 ₽
→
Дом «Климов» 6х8 м
3 спальн. · 2 этаж
от 3 200 000 ₽
→
На сайт застройщика