Перейти к контенту
Подбор и сравнение проектов домов от застройщиков Московской области
Подборщик домов
Калькулятор сметы
Калькулятор площади
Форум
Блог
Главная
›
Каталог проектов
›
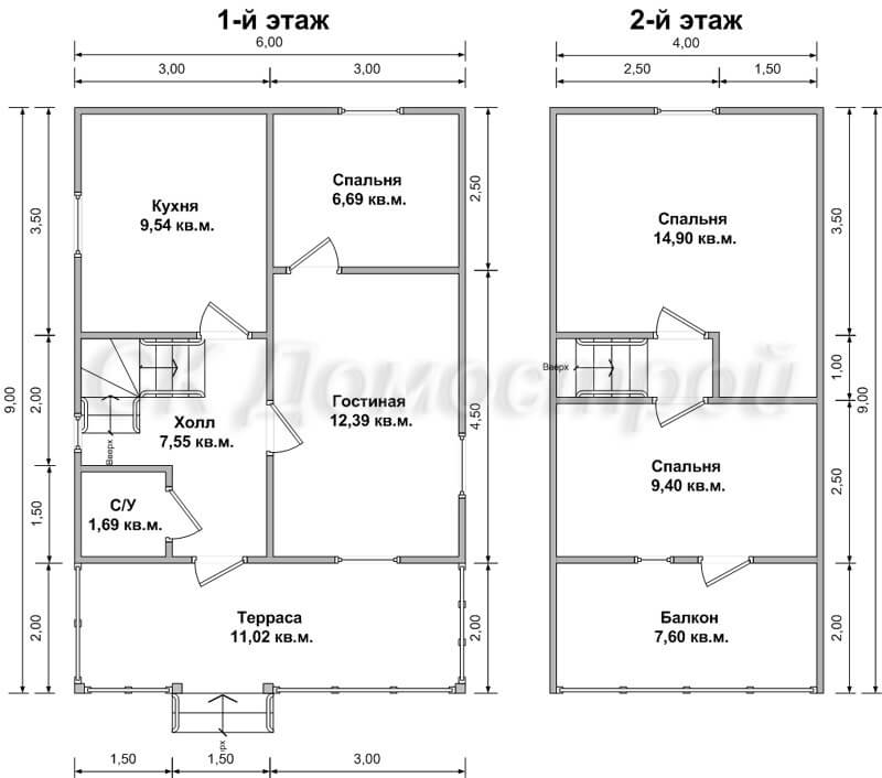
Дом «Соколов» 6х9 м
Дом «Соколов» 6х9 м
Застройщик: СК Домострой
90.0 м²
1 / 2
🏠
90.0 м²
🛏
3 спален
📐
2 этаж
🧱
Каркас
Похожие проекты
Похожие по цене
Похожие по площади
Дом «Гусев» 6х6 м
2 спальн. · 2 этаж
от 2 780 000 ₽
→
Проект К-8 10 на 4, площадью 84 за 2 778 000 руб
3 спальн. · 2 этаж
от 2 778 000 ₽
→
Строительство каркасной бани 8х6 "Алтай" под ключ
2 спальн. · 1 санузл. · 2 этаж
от 2 777 000 ₽
→
Проект DOMFIX 1 - одноэтажный каменный дом
2 спальн. · 1 этаж
от 4 950 000 ₽
→
Проект одноэтажного каркасного дома "Сириус"
3 спальн. · 2 этаж
от 6 446 499 ₽
→
Каркасная баня «КБ-61
от 4 935 000 ₽
→
На сайт застройщика