Перейти к контенту
Подбор и сравнение проектов домов от застройщиков Московской области
Подборщик домов
Калькулятор сметы
Калькулятор площади
Форум
Блог
Главная
›
Каталог проектов
›
ПД - 151 - Строительство домов из Каркаса, СИП, Бруса под ключ
ПД - 151 - Строительство домов из Каркаса, СИП, Бруса под ключ
Застройщик: Стройград
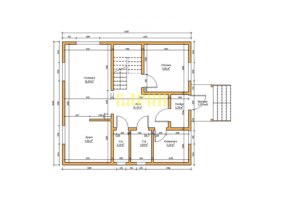
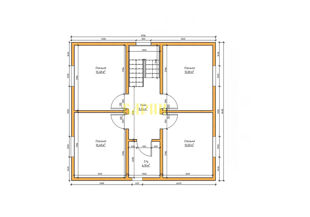
150.0 м²
1 / 3
🏠
150.0 м²
🛏
5 спален
🚿
2 санузл.
📐
2 этаж
Похожие проекты
Похожие по цене
Похожие по площади
Дом «Баженов» 7х9 м
3 спальн.
от 3 390 000 ₽
→
Проект К-24 8 на 12, площадью 93 за 3 735 000 руб
2 спальн. · 1 этаж
от 3 385 200 ₽
→
Проект К-38 13 на 8, , площадью 93 за 3 945 000 руб
1 спальн. · 2 этаж
от 3 385 200 ₽
→
Проект одноэтажного дома "Опалево-М3" из бруса
5 спальн. · 2 этаж
от 10 522 580 ₽
→
Проект одноэтажного дома "Радуга" из бруса
3 спальн. · 2 этаж
от 10 726 805 ₽
→
Проект одноэтажного дома "Шале" из бруса
2 этаж
от 9 639 261 ₽
→
На сайт застройщика