Перейти к контенту
Подбор и сравнение проектов домов от застройщиков Московской области
Подборщик домов
Калькулятор сметы
Калькулятор площади
Форум
Блог
Главная
›
Каталог проектов
›
ПД - 156 - Строительство домов из Каркаса, СИП, Бруса под ключ
ПД - 156 - Строительство домов из Каркаса, СИП, Бруса под ключ
Застройщик: Стройград
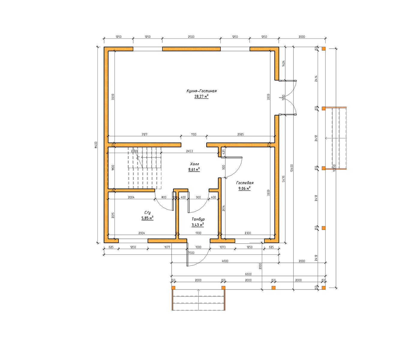
156.0 м²
1 / 2
🏠
156.0 м²
🛏
3 спален
🚿
2 санузл.
📐
2 этаж
Похожие проекты
Похожие по цене
Похожие по площади
Мечта 6
4 этаж
от 3 439 801 ₽
→
Терем ЛК 1
4 спальн. · 1 санузл. · 2 этаж
от 3 443 000 ₽
→
Терем ЛК 1
4 спальн. · 1 санузл. · 2 этаж
от 3 443 000 ₽
→
Проект одноэтажного каркасного дома "Корсика"
4 спальн. · 2 этаж
от 11 429 963 ₽
→
Проект одноэтажного каркасного дома "Щипок"
4 спальн. · 2 этаж
от 11 338 523 ₽
→
Дом по проекту «ЗС 200-24» - Золотое Сечение
2 спальн. · 2 санузл.
от 19 500 000 ₽
→
На сайт застройщика