Перейти к контенту
Подбор и сравнение проектов домов от застройщиков Московской области
Подборщик домов
Калькулятор сметы
Калькулятор площади
Форум
Блог
Главная
›
Каталог проектов
›
ПД - 226 - Строительство домов из Каркаса, СИП, Бруса под ключ
ПД - 226 - Строительство домов из Каркаса, СИП, Бруса под ключ
Застройщик: Стройград
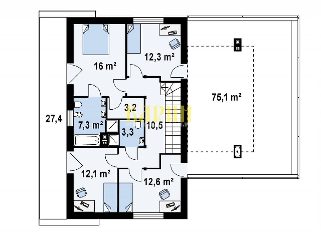
226.0 м²
1 / 3
🏠
226.0 м²
🛏
4 спален
🚿
2 санузл.
📐
2 этаж
Похожие проекты
Похожие по цене
Похожие по площади
Альпиец 2
4 спальн. · 2 санузл. · 2 этаж
от 4 839 800 ₽
→
Балчуг 1
2 спальн. · 1 санузл. · 2 этаж
от 4 839 800 ₽
→
Проект К-114 10 на 17, площадью 173 за 6 838 500 руб
3 спальн. · 1 этаж
от 4 844 000 ₽
→
Проект К-165 12 на 9, площадью 226 за 7 479 000 руб
4 спальн. · 2 этаж
от 7 479 000 ₽
→
Проект К-165 12 на 9, площадью 226 за 7 479 000 руб
4 спальн. · 2 этаж
от 6 328 000 ₽
→
Проект Q-226-1D
2 этаж
от 33 900 000 ₽
→
На сайт застройщика