Перейти к контенту
Подбор и сравнение проектов домов от застройщиков Московской области
Подборщик домов
Калькулятор сметы
Калькулятор площади
Форум
Блог
Главная
›
Каталог проектов
›
ПД - 264 - Строительство домов из Каркаса, СИП, Бруса под ключ
ПД - 264 - Строительство домов из Каркаса, СИП, Бруса под ключ
Застройщик: Стройград
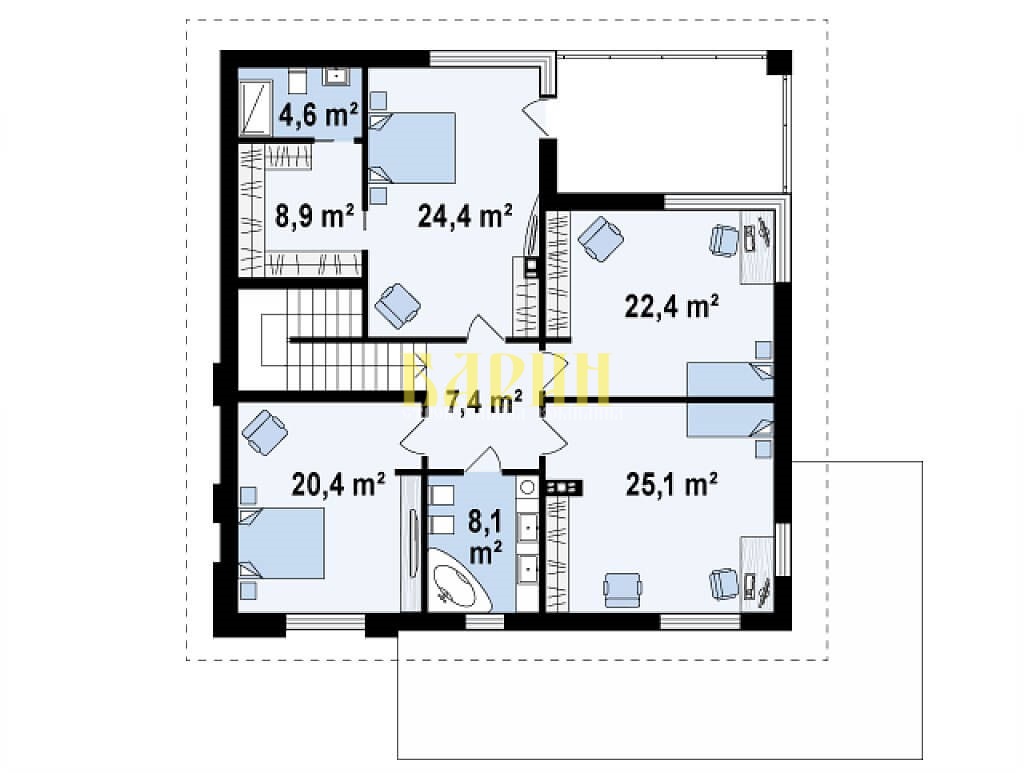
264.0 м²
1 / 3
🏠
264.0 м²
🛏
5 спален
🚿
2 санузл.
📐
2 этаж
Похожие проекты
Похожие по цене
Похожие по площади
Песня 1
3 спальн. · 1 санузл. · 1 этаж
от 5 649 000 ₽
→
Песня 1
3 спальн. · 1 санузл. · 1 этаж
от 5 649 000 ₽
→
Дом из клееного бруса «Таруса» | ЭкоТех
2 спальн. · 1 санузл. · 1 этаж
от 5 653 000 ₽
→
Проект одноэтажного коттеджа "Ясна" из газобетона
4 спальн. · 2 этаж
от 10 349 000 ₽
→
Проект К-193 10 на 14, площадью 264 за 8 913 000 руб
4 спальн. · 2 этаж
от 8 913 000 ₽
→
Проект К-193 10 на 14, площадью 264 за 8 913 000 руб
4 спальн. · 2 этаж
от 7 392 000 ₽
→
На сайт застройщика