Перейти к контенту
Подбор и сравнение проектов домов от застройщиков Московской области
Подборщик домов
Калькулятор сметы
Калькулятор площади
Форум
Блог
Главная
›
Каталог проектов
›
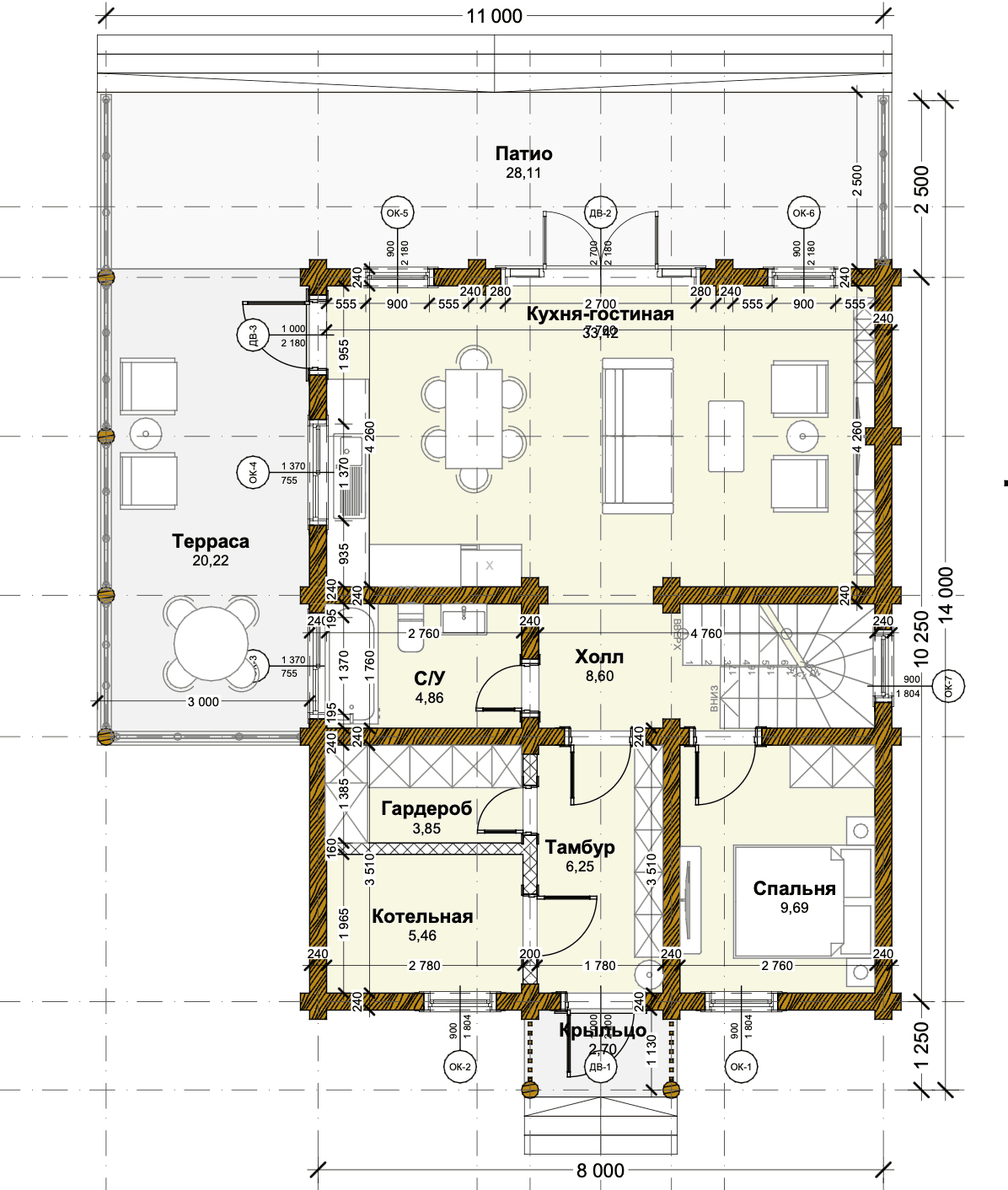
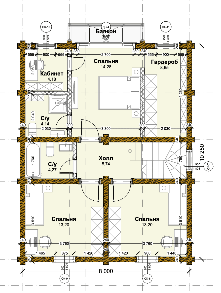
Двухэтажный дом из оцилиндрованного бревна «Нахабино» | ЭкоТех
Двухэтажный дом из оцилиндрованного бревна «Нахабино» | ЭкоТех
Застройщик: Эко-Тех
194.5 м²
1 / 3
🏠
194.5 м²
🛏
4 спален
🚿
3 санузл.
📐
2 этаж
🧱
Оцилиндрованное бревно
Похожие проекты
Похожие по цене
Похожие по площади
Проект К-134 10 на 10, площадью 184 за 6 243 000 руб
4 спальн. · 2 этаж
от 5 152 000 ₽
→
Проект К-18 12 на 8, площадью 184 за 6 192 000 руб
3 спальн. · 2 этаж
от 5 152 000 ₽
→
Проект К-199 10 на 10, площадью 184 за 6 243 000 руб
4 спальн. · 2 этаж
от 5 152 000 ₽
→
Проект одноэтажного каркасного дома "Тефия"
4 спальн. · 2 этаж
от 14 065 088 ₽
→
Проект дома из газоблоков 13х9 ГББ-195: цена 7972000 руб.
5 спальн. · 2 санузл. · 2 этаж
от 12 165 000 ₽
→
Проект дома из керамоблоков 13х9 ТКБ-195: цена 7775000 руб.
5 спальн. · 2 санузл. · 2 этаж
от 13 335 000 ₽
→
На сайт застройщика