Перейти к контенту
Подбор и сравнение проектов домов от застройщиков Московской области
Подборщик домов
Калькулятор сметы
Калькулятор площади
Форум
Блог
Главная
›
Каталог проектов
›
Дом из клееного бруса «Можайск» | ЭкоТех
Дом из клееного бруса «Можайск» | ЭкоТех
Застройщик: Эко-Тех
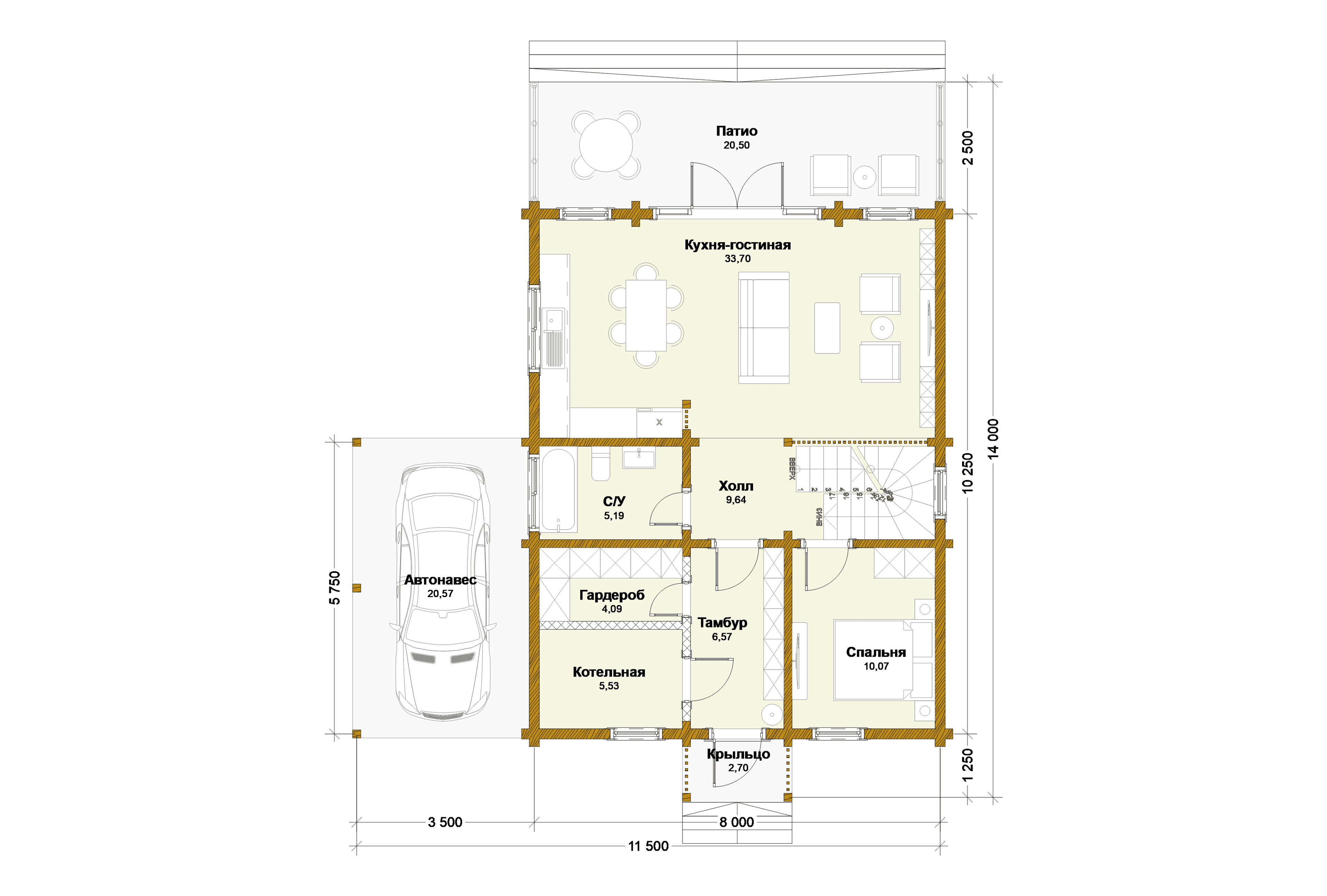
206.0 м²
1 / 3
🏠
206.0 м²
🛏
4 спален
🚿
3 санузл.
📐
2 этаж
🧱
Клееный брус
Похожие проекты
Похожие по цене
Похожие по площади
Проекты домов из газобетона Вилла 2 M под ключ
4 спальн. · 2 санузл. · 2 этаж
от 9 830 800 ₽
→
Проект К-172 14 на 11, площадью 291 за 9 820 500 руб
4 спальн. · 2 этаж
от 9 820 500 ₽
→
Проект одноэтажного дома "Маргарита 2" из бруса
4 спальн. · 2 этаж
от 9 815 232 ₽
→
Проект двухэтажного дома "Уголок-М7" из бруса
3 спальн. · 2 этаж
от 15 600 705 ₽
→
Проект двухэтажного каркасного дома "Дуглас"
6 спальн. · 3 этаж
от 15 669 440 ₽
→
Проект одноэтажного дома "Клевер" из бруса
4 спальн. · 2 этаж
от 12 442 282 ₽
→
На сайт застройщика