Перейти к контенту
Подбор и сравнение проектов домов от застройщиков Московской области
Подборщик домов
Калькулятор сметы
Калькулятор площади
Форум
Блог
Главная
›
Каталог проектов
›
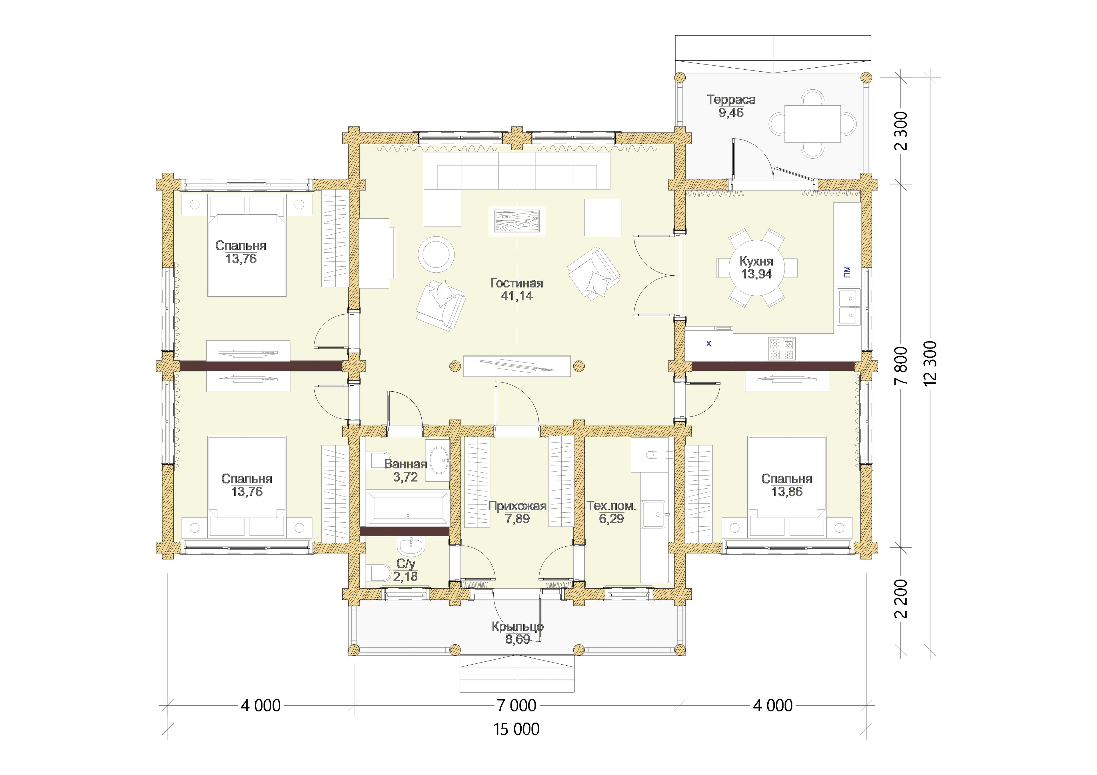
Дом из оцилиндрованного бревна «Ярославль» | ЭкоТех
Дом из оцилиндрованного бревна «Ярославль» | ЭкоТех
Застройщик: Эко-Тех
134.7 м²
1 / 2
🏠
134.7 м²
🛏
3 спален
🚿
1 санузл.
📐
1 этаж
🧱
Оцилиндрованное бревно
Похожие проекты
Похожие по цене
Похожие по площади
Проект каркасного дома КП-770
1 этаж
от 4 715 000 ₽
→
Проект дома Каринтия 112
2 этаж
от 4 717 900 ₽
→
Дом из газобетона Проект ГБ-206
3 спальн. · 2 санузл. · 2 этаж
от 4 719 000 ₽
→
Проект R-193-1K
1 этаж
от 11 045 400 ₽
→
Проект каркасного дома КП-Б455
1 этаж
от 5 055 000 ₽
→
Проект одноэтажного коттеджа "Южный" из газобетона
3 спальн. · 2 этаж
от 8 428 000 ₽
→
На сайт застройщика