Перейти к контенту
Подбор и сравнение проектов домов от застройщиков Московской области
Подборщик домов
Калькулятор сметы
Калькулятор площади
Форум
Блог
Главная
›
Каталог проектов
›
Дом из рубленного бревна «Зевс» | ЭкоТех
Дом из рубленного бревна «Зевс» | ЭкоТех
Застройщик: Эко-Тех
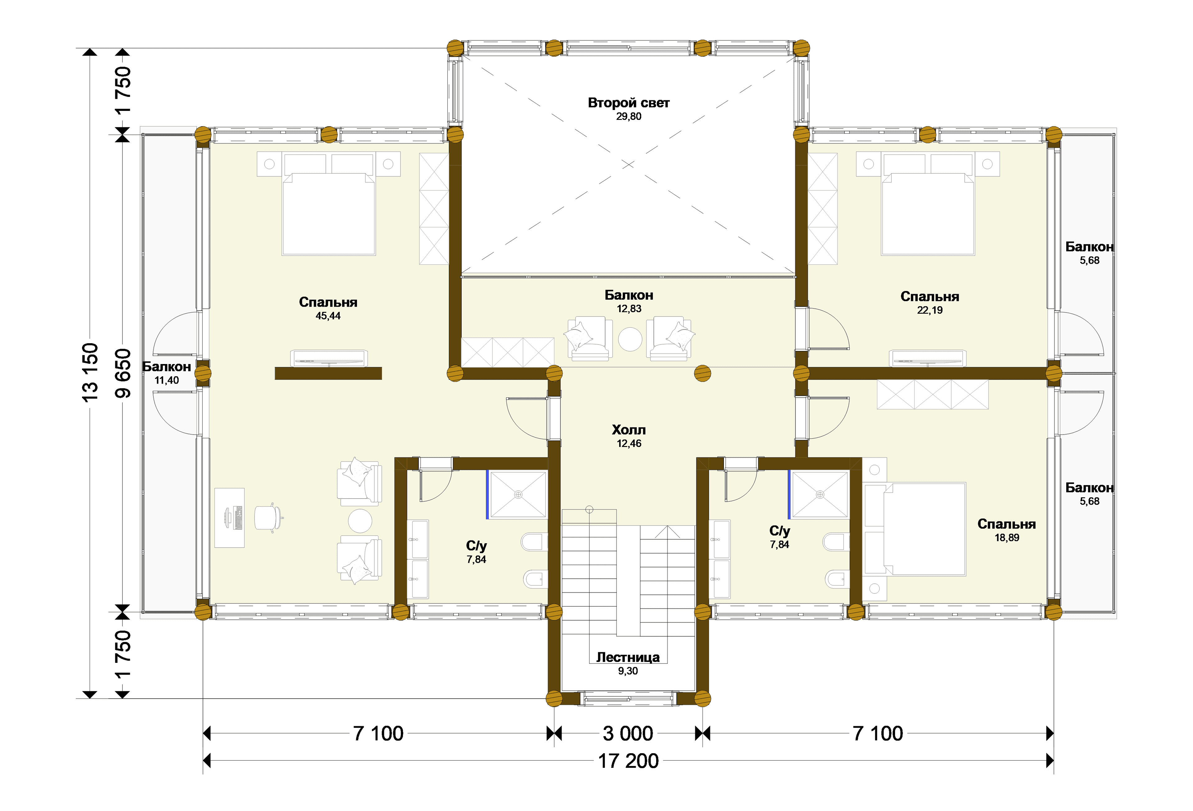
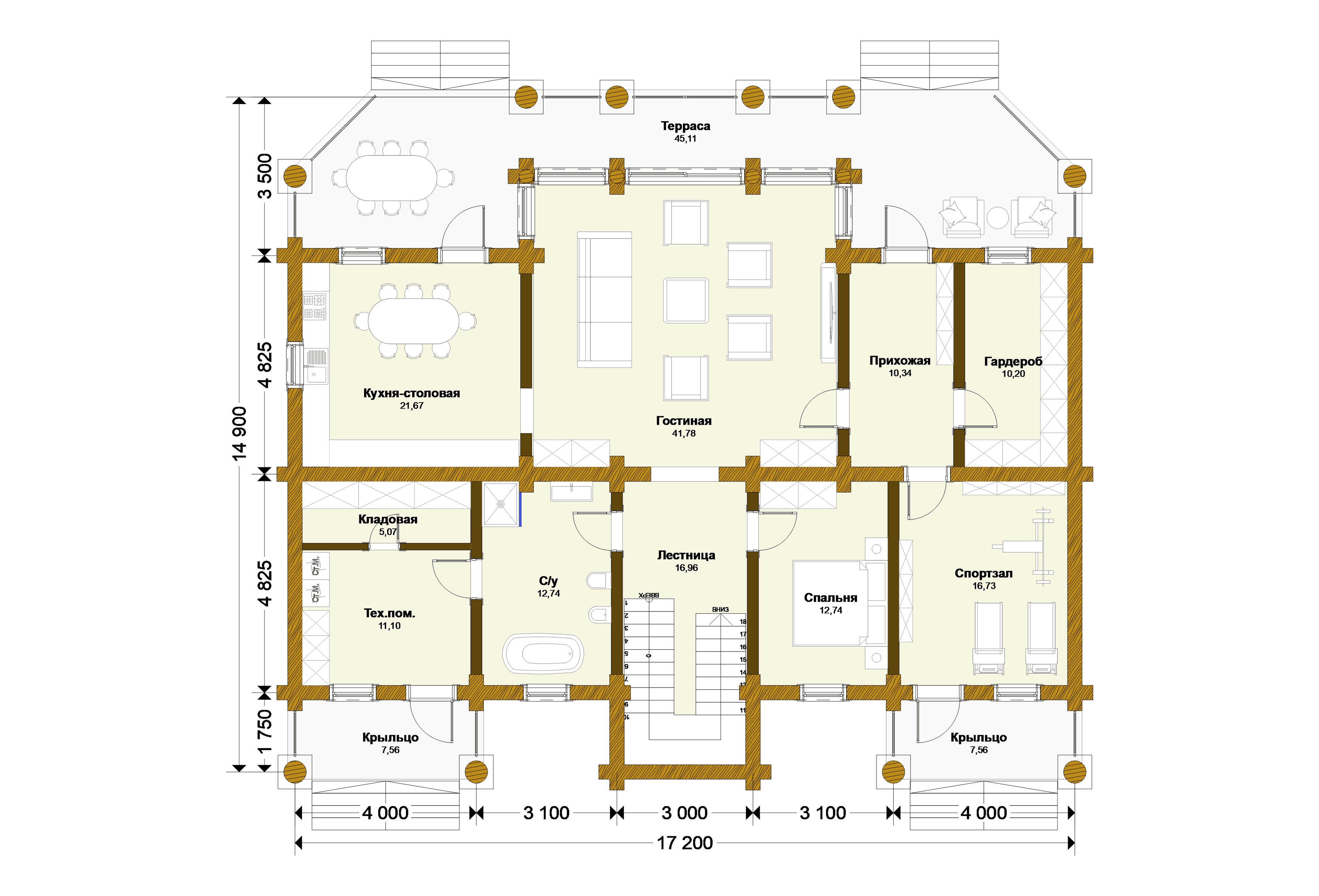
370.0 м²
1 / 3
🏠
370.0 м²
🛏
4 спален
🚿
3 санузл.
📐
2 этаж
🧱
Ручная рубка
Похожие проекты
Похожие по цене
Похожие по площади
Проект каркасного дома КП-140
3 спальн. · 1 этаж
от 11 500 000 ₽
→
Vestendorf
от 11 500 000 ₽
→
Проект дома «Вольтер» | ЭкоТех
4 спальн. · 2 санузл. · 2 этаж
от 11 498 000 ₽
→
Проект «Montpellier»
от 18 500 000 ₽
→
ПД - 370 - Строительство домов из Каркаса, СИП, Бруса под ключ
6 спальн. · 3 санузл. · 2 этаж
от 7 930 000 ₽
→
Проект R-370-1K
3 этаж
от 30 340 000 ₽
→
На сайт застройщика