Перейти к контенту
Подбор и сравнение проектов домов от застройщиков Московской области
Подборщик домов
Калькулятор сметы
Калькулятор площади
Форум
Блог
Главная
›
Каталог проектов
›
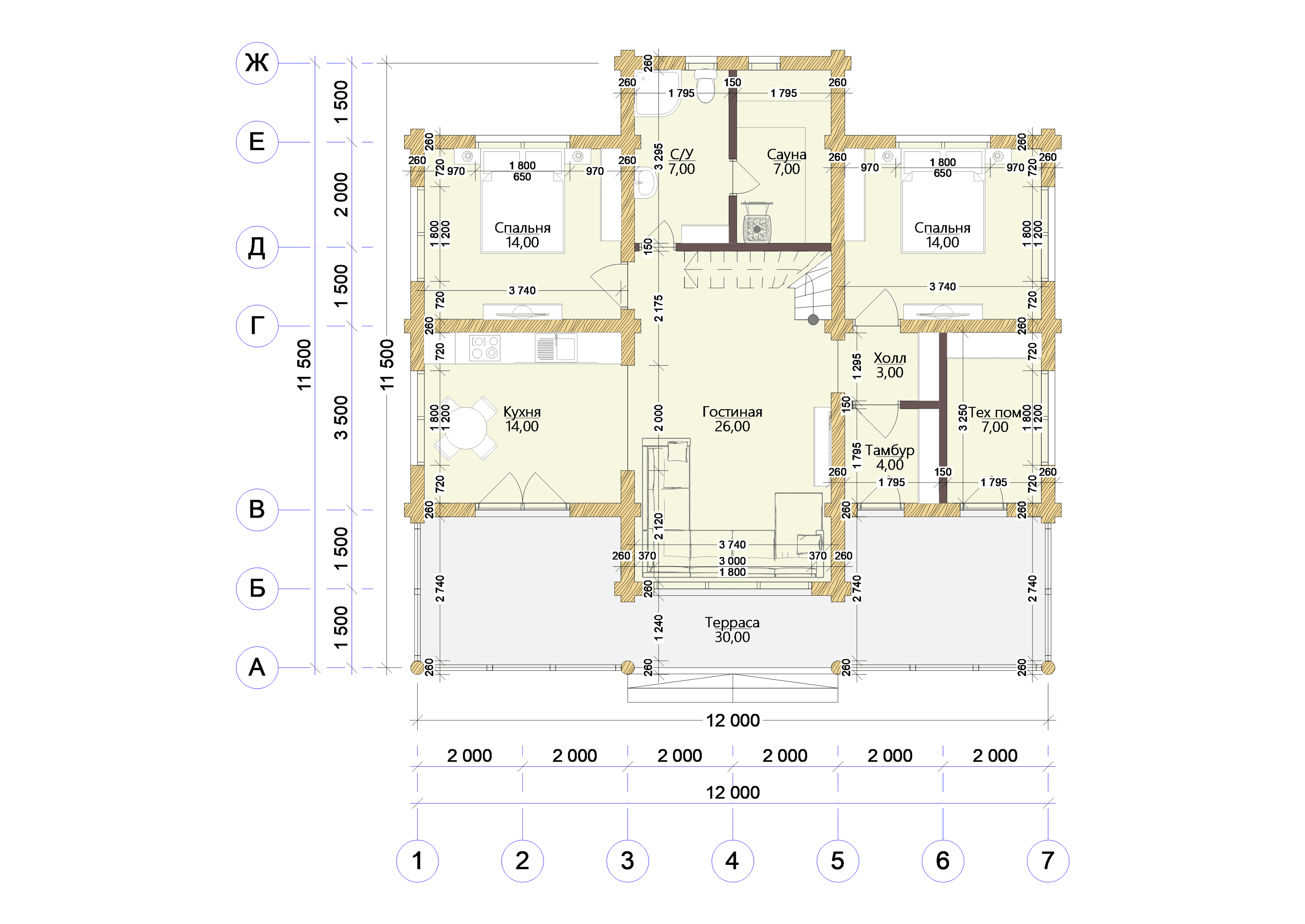
Дом из рубленного бревна «Котка» | ЭкоТех
Дом из рубленного бревна «Котка» | ЭкоТех
Застройщик: Эко-Тех
133.51 м²
1 / 3
🏠
133.51 м²
🛏
3 спален
🚿
1 санузл.
📐
2 этаж
🧱
Ручная рубка
Похожие проекты
Похожие по цене
Похожие по площади
Проект U-049-1D
1 этаж
от 7 432 500 ₽
→
Каркасный дом «Ежевика» | ЭкоТех
4 спальн. · 2 санузл. · 2 этаж
от 7 430 000 ₽
→
Комфорт (11x12)
2 спальн. · 1 санузл. · 1 этаж
от 7 434 000 ₽
→
Проект одноэтажного каркасного дома "Гордон"
4 спальн. · 2 этаж
от 10 224 621 ₽
→
Дом из бревна «Жуковский» | ЭкоТех
3 спальн. · 1 санузл. · 1 этаж
от 3 900 000 ₽
→
Проект дома E-133-1P
2 этаж
от 9 345 000 ₽
→
На сайт застройщика