Перейти к контенту
Подбор и сравнение проектов домов от застройщиков Московской области
Подборщик домов
Калькулятор сметы
Калькулятор площади
Форум
Блог
Главная
›
Каталог проектов
›
Каркасный дом «Лаванда» | ЭкоТех
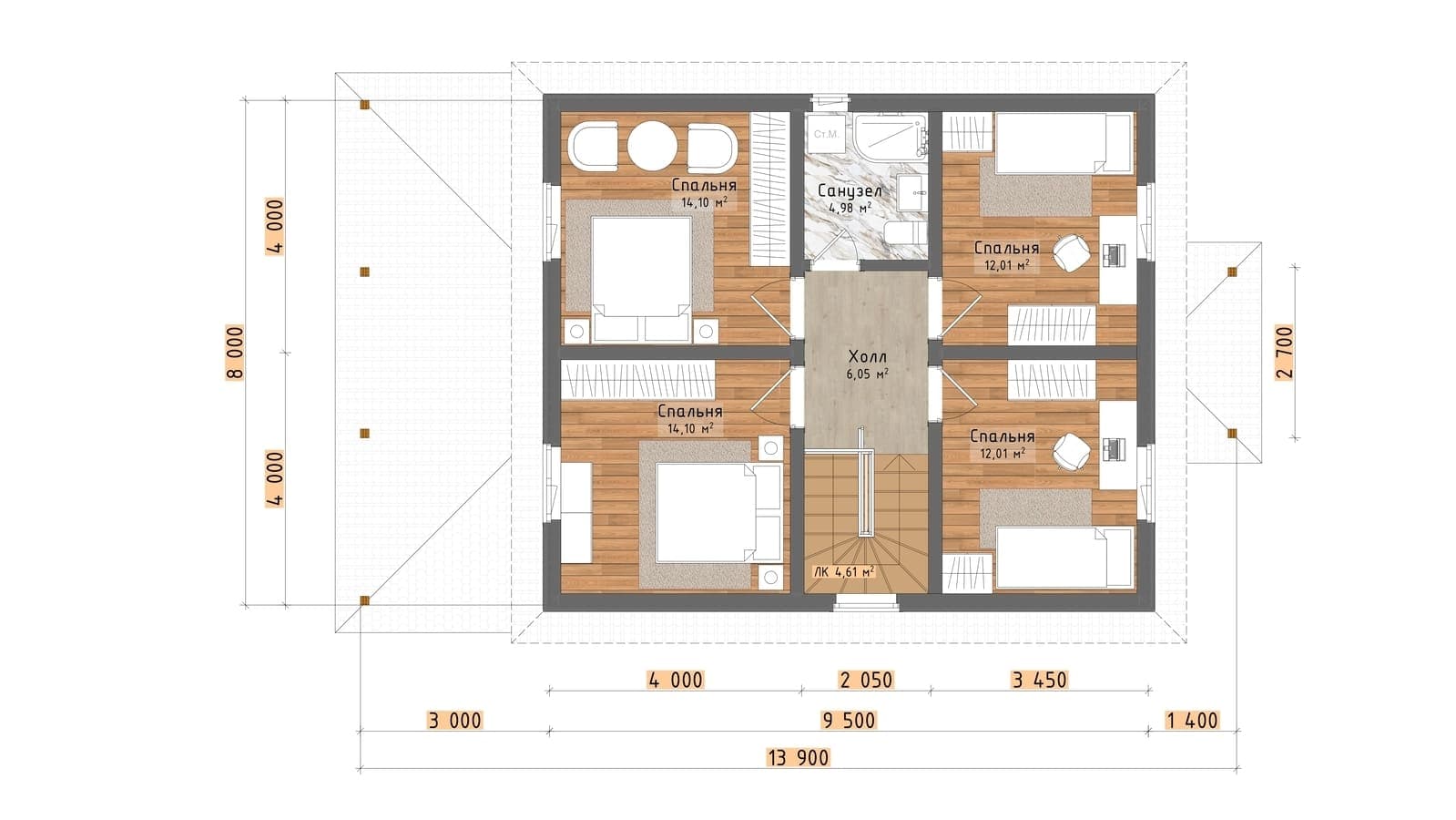
Каркасный дом «Лаванда» | ЭкоТех
Застройщик: Эко-Тех
179.8 м²
1 / 3
🏠
179.8 м²
🛏
5 спален
🚿
2 санузл.
📐
2 этаж
🧱
Каркас
Похожие проекты
Похожие по цене
Похожие по площади
Соната 2
4 спальн. · 2 санузл. · 1 этаж
от 7 041 000 ₽
→
Соната 2
4 спальн. · 2 санузл. · 1 этаж
от 7 041 000 ₽
→
Аврора 11
4 спальн. · 2 санузл. · 2 этаж
от 7 039 800 ₽
→
Проект дома из газоблоков 13х14 ГББ-180: цена 9079000 руб.
5 спальн. · 3 санузл. · 2 этаж
от 13 782 000 ₽
→
Проект дома из керамоблоков 13х14 ТКБ-180: цена 8723000 руб.
5 спальн. · 3 санузл. · 2 этаж
от 15 046 000 ₽
→
Проект одноэтажного коттеджа "Форэст" из бруса
4 спальн. · 2 этаж
от 13 840 626 ₽
→
На сайт застройщика