Перейти к контенту
Подбор и сравнение проектов домов от застройщиков Московской области
Подборщик домов
Калькулятор сметы
Калькулятор площади
Форум
Блог
Главная
›
Каталог проектов
›
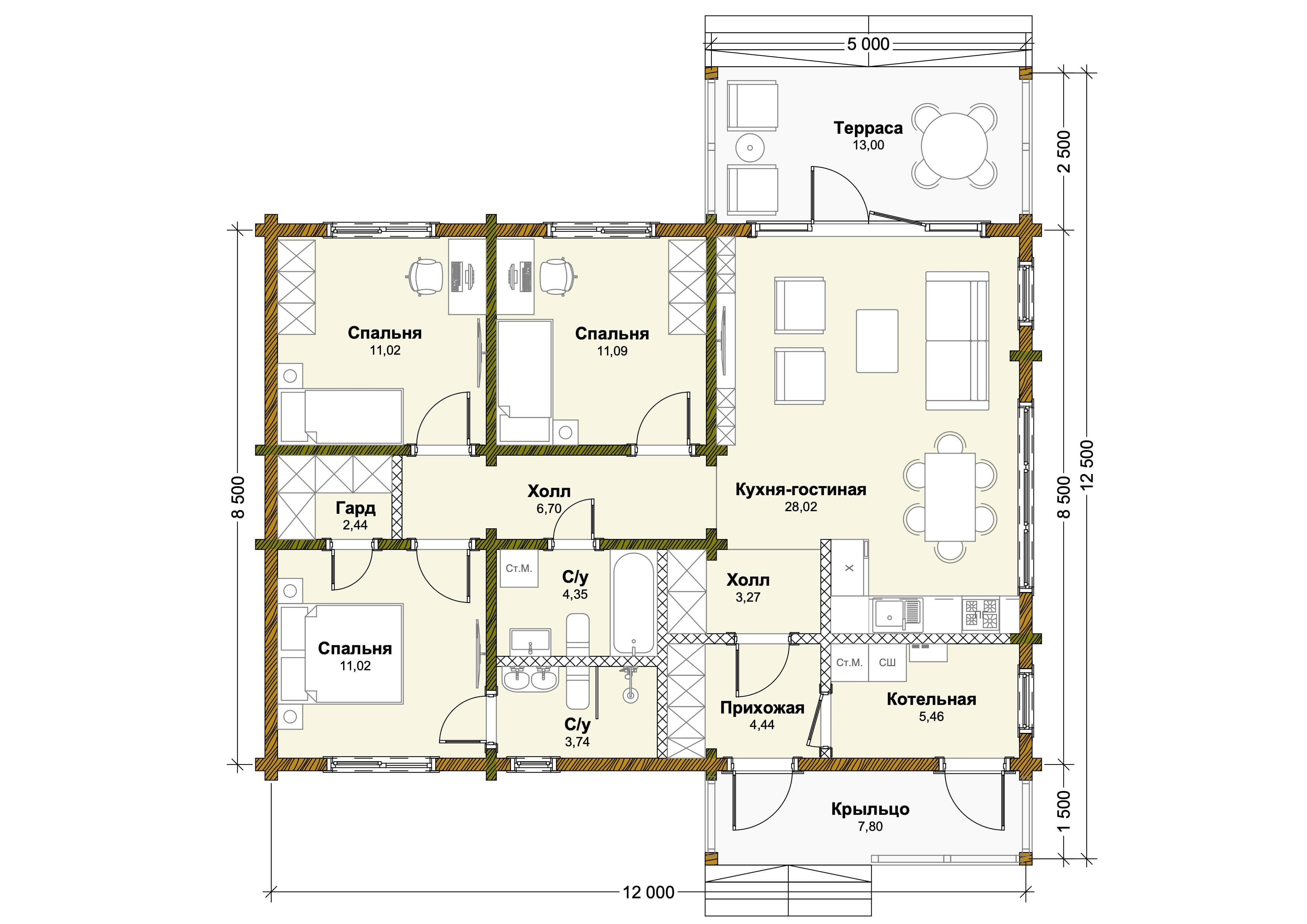
Одноэтажный дом «Казань» | ЭкоТех
Одноэтажный дом «Казань» | ЭкоТех
Застройщик: Эко-Тех
122.0 м²
1 / 2
🏠
122.0 м²
🛏
3 спален
🚿
2 санузл.
📐
1 этаж
🧱
Клееный брус
Похожие проекты
Похожие по цене
Похожие по площади
Проект двухэтажного коттеджа "Флуэри" из газобетона
3 спальн. · 2 этаж
от 8 329 000 ₽
→
Проект V-119-1P
1 этаж
от 8 330 000 ₽
→
Арарат (9.8x8.8)
4 спальн. · 2 санузл. · 2 этаж
от 8 327 000 ₽
→
СК-1
2 санузл. · 1 этаж
от 7 990 000 ₽
→
Дом из газобетона Проект ГБ-214
3 спальн. · 2 санузл. · 1 этаж
от 4 279 000 ₽
→
Проект К-129 15 на 8, площадью 122 за 4 824 000 руб
3 спальн. · 1 этаж
от 4 824 000 ₽
→
На сайт застройщика