Перейти к контенту
Подбор и сравнение проектов домов от застройщиков Московской области
Подборщик домов
Калькулятор сметы
Калькулятор площади
Форум
Блог
Главная
›
Каталог проектов
›
Проект дома «Арктика» | ЭкоТех
Проект дома «Арктика» | ЭкоТех
Застройщик: Эко-Тех
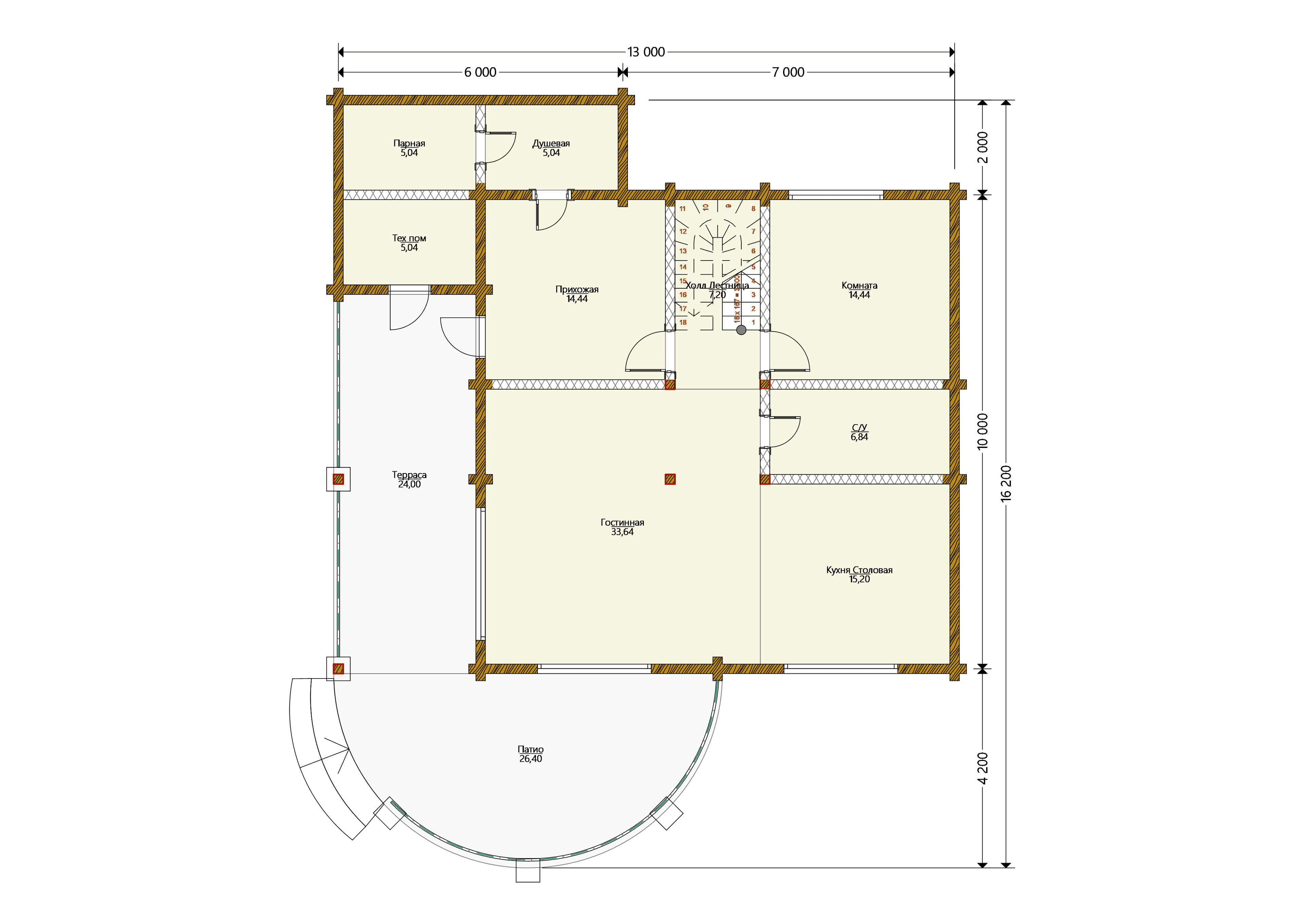
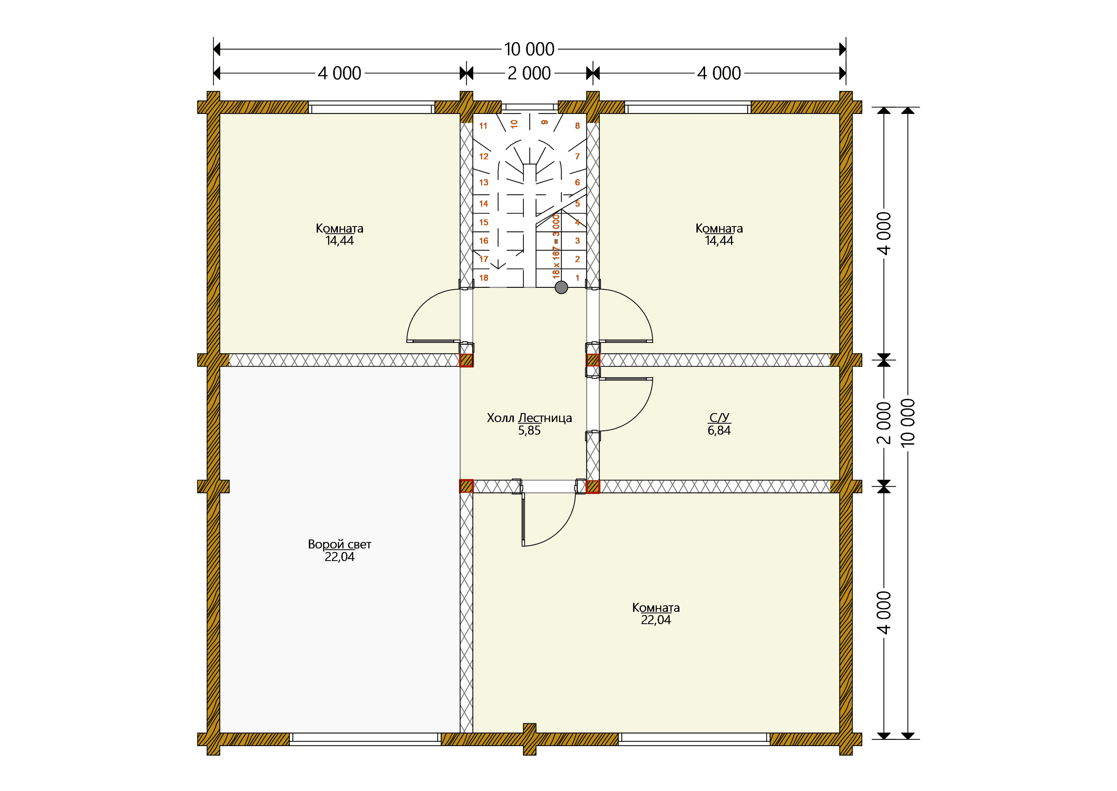
264.0 м²
1 / 3
🏠
264.0 м²
🛏
4 спален
🚿
2 санузл.
📐
2 этаж
🧱
Клееный брус
Похожие проекты
Похожие по цене
Похожие по площади
Проект двухэтажного коттеджа "Рубис" из газобетона
4 спальн. · 2 этаж
от 10 869 000 ₽
→
Проект дома из керамоблоков 8х14 ТКБ-156: цена 6361000 руб.
4 спальн. · 3 санузл. · 2 этаж
от 10 870 000 ₽
→
Кирпичный дом С-233 К «Сибирь»
4 спальн. · 3 санузл. · 4 этаж
от 10 866 000 ₽
→
Проект одноэтажного коттеджа "Ясна" из газобетона
4 спальн. · 2 этаж
от 10 349 000 ₽
→
Проект К-193 10 на 14, площадью 264 за 8 913 000 руб
4 спальн. · 2 этаж
от 8 913 000 ₽
→
Проект К-193 10 на 14, площадью 264 за 8 913 000 руб
4 спальн. · 2 этаж
от 7 392 000 ₽
→
На сайт застройщика