Перейти к контенту
Подбор и сравнение проектов домов от застройщиков Московской области
Подборщик домов
Калькулятор сметы
Калькулятор площади
Форум
Блог
Главная
›
Каталог проектов
›
Проект дома «Белая дача» | ЭкоТех
Проект дома «Белая дача» | ЭкоТех
Застройщик: Эко-Тех
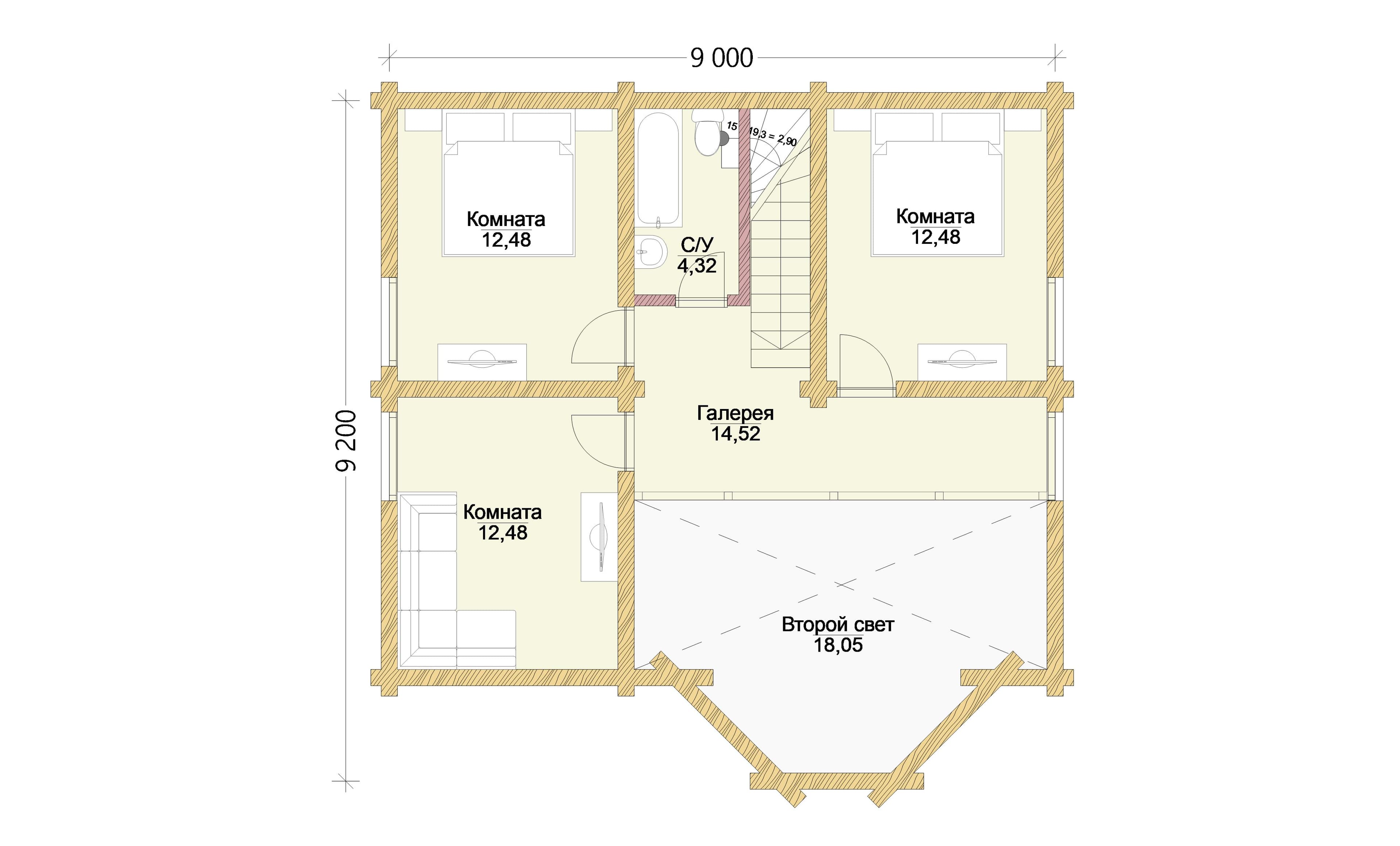
178.0 м²
1 / 3
🏠
178.0 м²
🛏
4 спален
🚿
2 санузл.
📐
2 этаж
🧱
Оцилиндрованное бревно
Похожие проекты
Похожие по цене
Похожие по площади
Дом «Архипов» 10х12 м
3 спальн. · 1 этаж
от 4 350 000 ₽
→
Проект К-130 8 на 8, площадью 131 за 4 353 000 руб
4 спальн. · 2 этаж
от 4 353 000 ₽
→
Проект К-11 8 на 8, площадью 141 за 4 623 000 руб
2 спальн. · 2 этаж
от 4 342 800 ₽
→
Дом по проекту «ЗС 249-25» - Золотое Сечение
4 спальн. · 3 санузл.
от 22 250 000 ₽
→
Дом по проекту «ЗС 557-22» - Золотое Сечение
3 спальн. · 2 санузл.
от 22 250 000 ₽
→
Проект К-127 9 на 10, площадью 178 за 5 953 500 руб
4 спальн. · 2 этаж
от 5 953 500 ₽
→
На сайт застройщика