Перейти к контенту
Подбор и сравнение проектов домов от застройщиков Московской области
Подборщик домов
Калькулятор сметы
Калькулятор площади
Форум
Блог
Главная
›
Каталог проектов
›
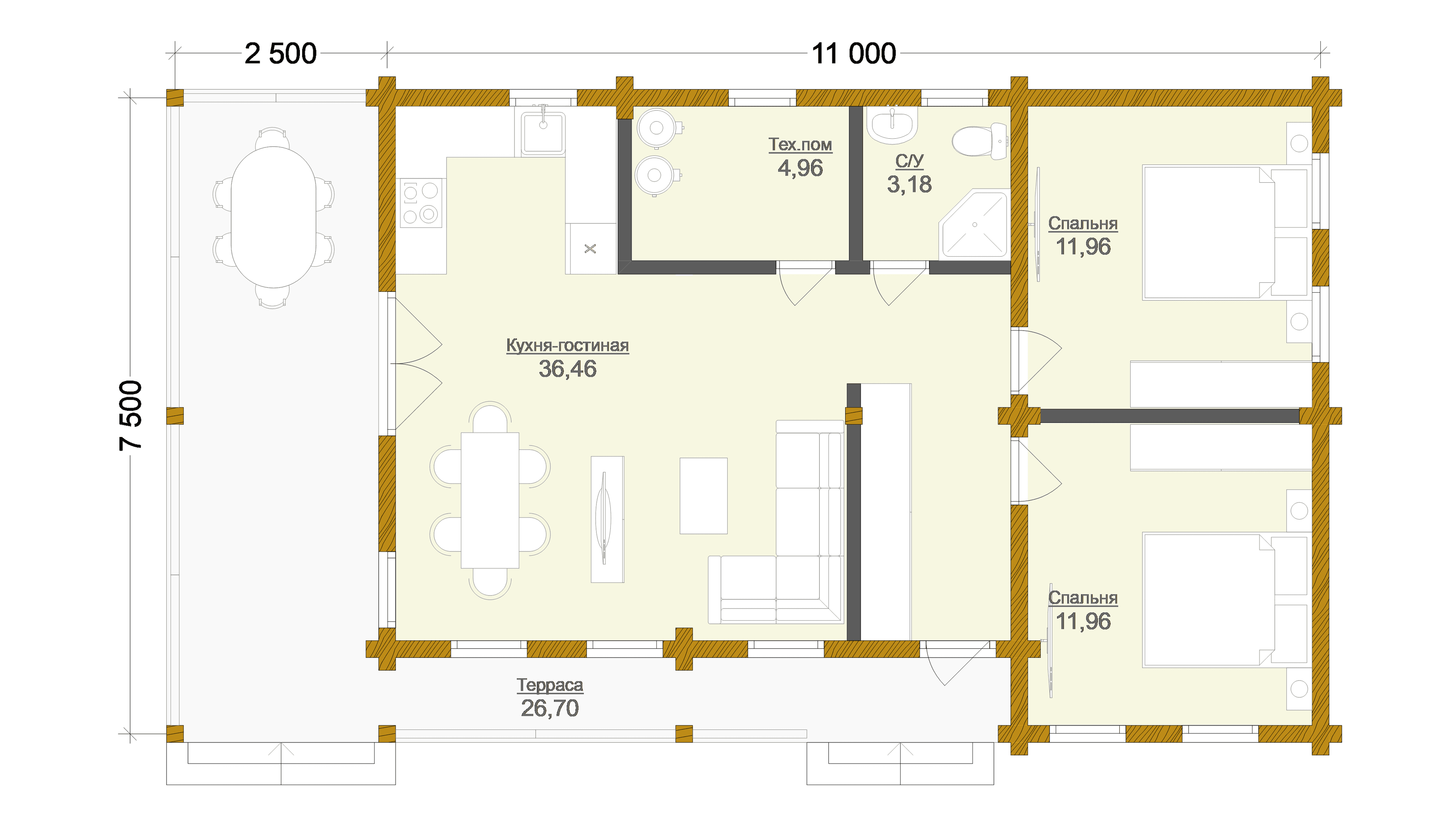
Проект дома «Вельс» | ЭкоТех
Проект дома «Вельс» | ЭкоТех
Застройщик: Эко-Тех
101.0 м²
1 / 2
🏠
101.0 м²
🛏
3 спален
🚿
1 санузл.
📐
1 этаж
🧱
Клееный брус
Похожие проекты
Похожие по цене
Похожие по площади
Каркасный дом «Гранат» выставочный | ЭкоТех
3 спальн. · 2 санузл. · 1 этаж
от 5 864 000 ₽
→
Проект К-59 17 на 9, площадью 145 за 5 865 750 руб
3 спальн. · 1 этаж
от 5 865 750 ₽
→
Проект дома «Модерн» | ЭкоТех
2 спальн. · 1 санузл. · 1 этаж
от 5 866 600 ₽
→
Проект одноэтажного дома "Скандик-2" из бруса
4 спальн. · 2 этаж
от 7 048 207 ₽
→
Строительство каркасного дома 8,6х8,1 "Гермес" под ключ
5 спальн. · 2 санузл. · 2 этаж
от 4 815 000 ₽
→
Дом по проекту «Барнхаус» - Золотое Сечение
2 спальн. · 1 санузл.
от 12 625 000 ₽
→
На сайт застройщика