Перейти к контенту
Подбор и сравнение проектов домов от застройщиков Московской области
Подборщик домов
Калькулятор сметы
Калькулятор площади
Форум
Блог
Главная
›
Каталог проектов
›
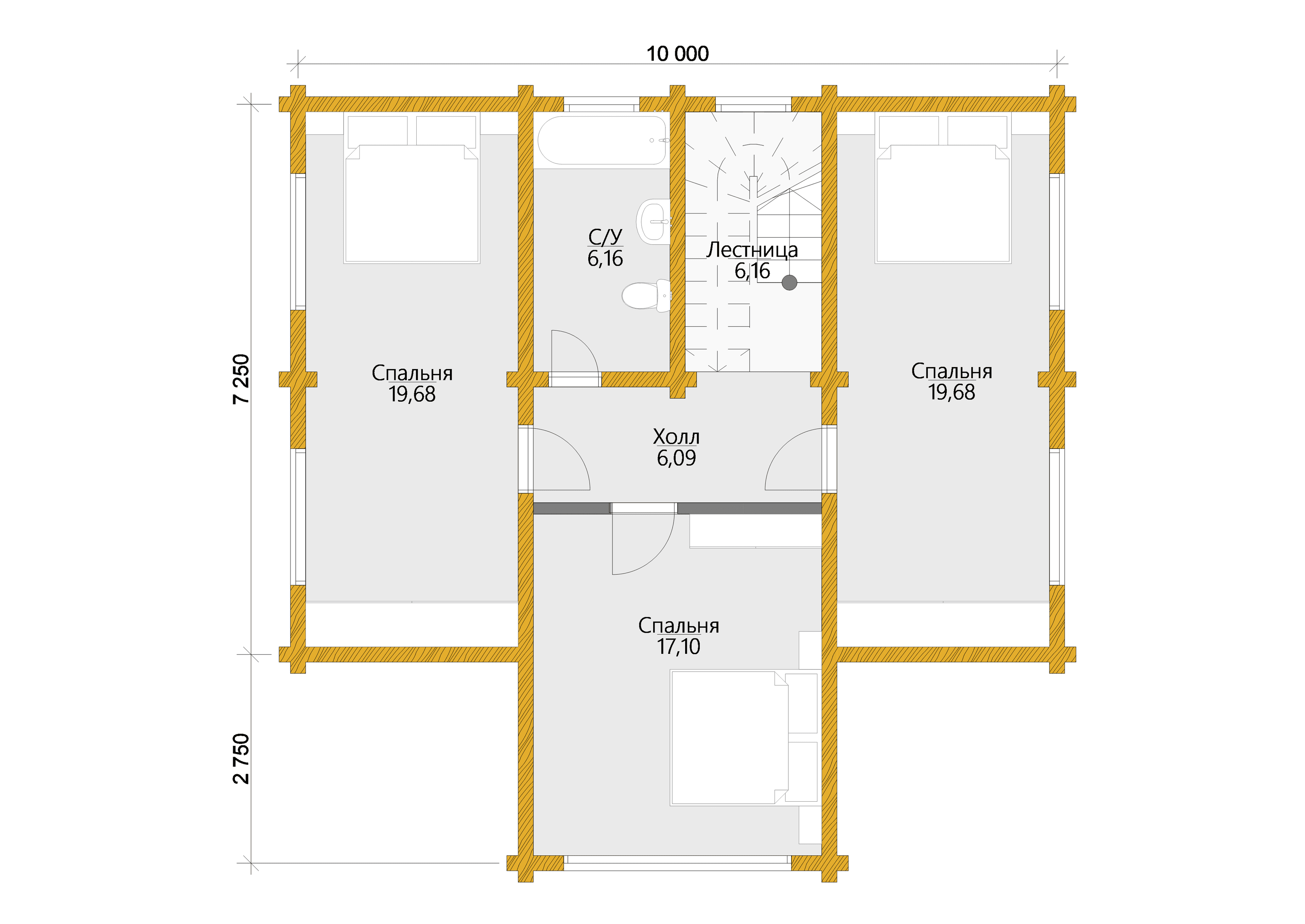
Проект дома «Вена» | ЭкоТех
Проект дома «Вена» | ЭкоТех
Застройщик: Эко-Тех
178.0 м²
1 / 3
🏠
178.0 м²
🛏
3 спален
🚿
2 санузл.
📐
2 этаж
🧱
Клееный брус
Похожие проекты
Похожие по цене
Похожие по площади
Проект одноэтажного каркасного дома "Брэнд"
5 спальн. · 2 этаж
от 12 024 321 ₽
→
Проект дома AS-510
2 этаж
от 12 028 690 ₽
→
Проект К-231 18 на 10, площадью 360 за 12 015 000 руб
6 спальн. · 2 этаж
от 12 015 000 ₽
→
Дом по проекту «ЗС 249-25» - Золотое Сечение
4 спальн. · 3 санузл.
от 22 250 000 ₽
→
Дом по проекту «ЗС 557-22» - Золотое Сечение
3 спальн. · 2 санузл.
от 22 250 000 ₽
→
Проект К-127 9 на 10, площадью 178 за 5 953 500 руб
4 спальн. · 2 этаж
от 5 953 500 ₽
→
На сайт застройщика