Перейти к контенту
Подбор и сравнение проектов домов от застройщиков Московской области
Подборщик домов
Калькулятор сметы
Калькулятор площади
Форум
Блог
Главная
›
Каталог проектов
›
Проект дома «Говорово» | ЭкоТех
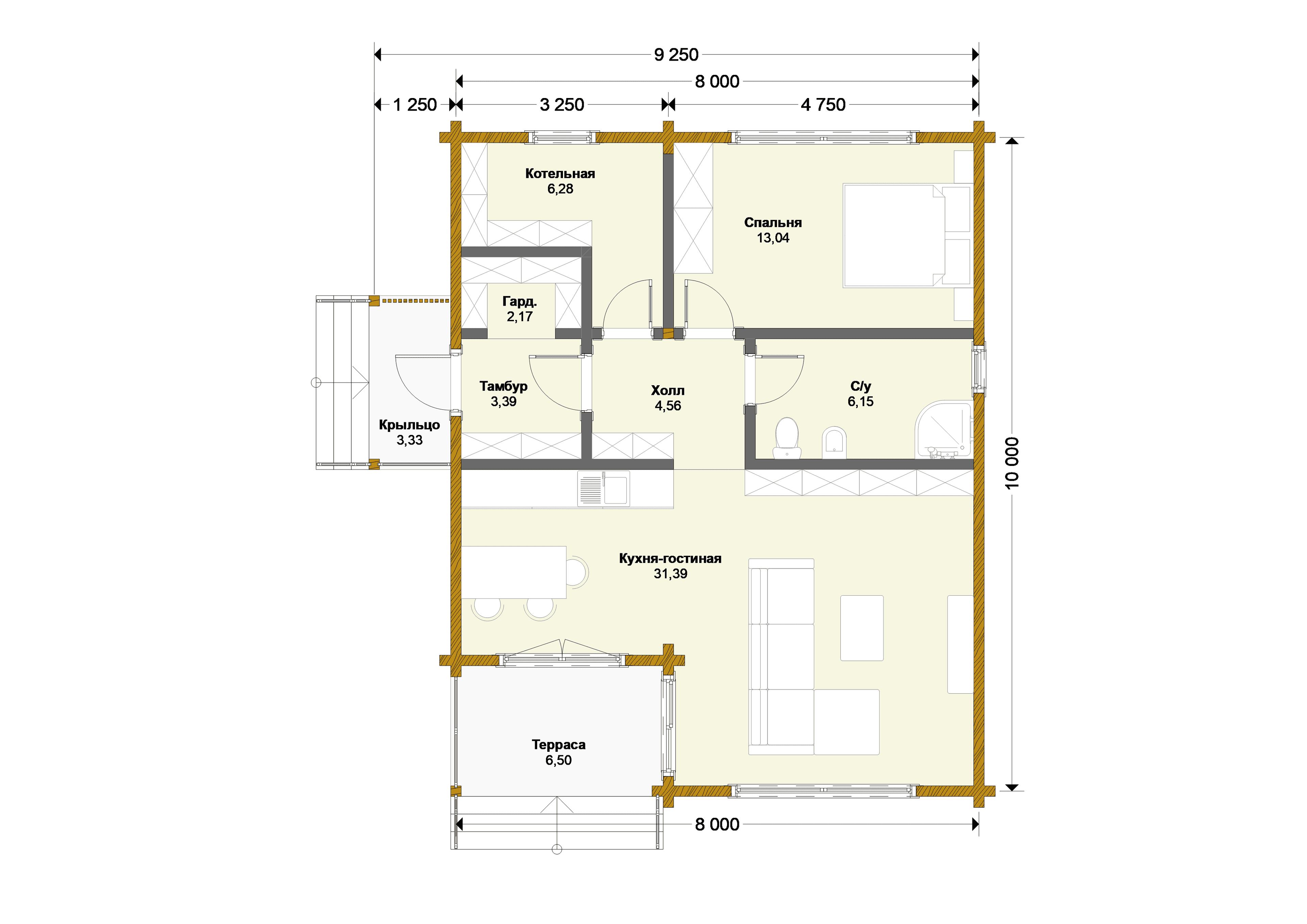
Проект дома «Говорово» | ЭкоТех
Застройщик: Эко-Тех
83.1 м²
1 / 2
🏠
83.1 м²
🛏
1 спален
🚿
1 санузл.
📐
1 этаж
🧱
Клееный брус
Похожие проекты
Похожие по цене
Похожие по площади
Дом из газобетона Проект ГБ-219
3 спальн. · 2 санузл. · 2 этаж
от 5 419 000 ₽
→
Дом из газобетона Проект ГБ-238
3 спальн. · 2 санузл.
от 5 419 000 ₽
→
Проект К-109 8 на 10, площадью 163 за 5 421 000 руб
3 спальн. · 2 этаж
от 5 421 000 ₽
→
Проект каркасного дома КП-868
1 этаж
от 7 200 000 ₽
→
Строительство каркасного дома 8х6 "Теремок-1" под ключ
3 спальн. · 1 санузл. · 2 этаж
от 3 202 000 ₽
→
Строительство каркасного дома 9х6 "Терем-3" под ключ
4 спальн. · 1 санузл. · 2 этаж
от 3 402 000 ₽
→
На сайт застройщика