Перейти к контенту
Подбор и сравнение проектов домов от застройщиков Московской области
Подборщик домов
Калькулятор сметы
Калькулятор площади
Форум
Блог
Главная
›
Каталог проектов
›
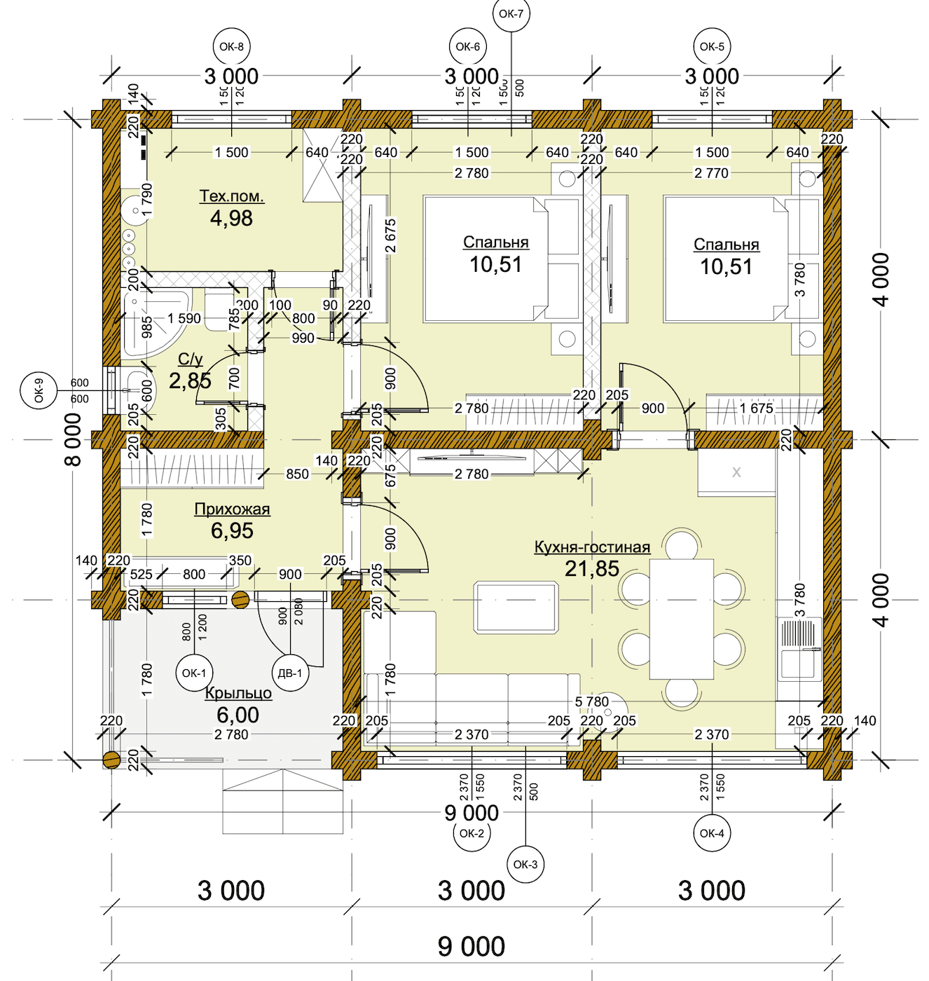
Проект дома «Домик в деревне» | ЭкоТех
Проект дома «Домик в деревне» | ЭкоТех
Застройщик: Эко-Тех
72.0 м²
1 / 2
🏠
72.0 м²
🛏
2 спален
🚿
1 санузл.
📐
1 этаж
🧱
Оцилиндрованное бревно
Похожие проекты
Похожие по цене
Похожие по площади
Проект дома AS-2185
2 этаж
от 2 200 420 ₽
→
Проект дома «Клин» | ЭкоТех
2 спальн. · 1 санузл. · 1 этаж
от 2 200 000 ₽
→
Каркасный дом 8x7 Проект "Тааффеит"
3 спальн. · 1 санузл. · 2 этаж
от 2 205 000 ₽
→
Строительство каркасного дома 10,3х8,15 "Барни" под ключ
3 спальн. · 1 санузл. · 1 этаж
от 3 853 000 ₽
→
Каркасный дом «Лебяжье
от 4 220 000 ₽
→
Каркасный дом 7x6 Проект "Авантюрин"
2 спальн. · 1 санузл. · 2 этаж
от 1 782 000 ₽
→
На сайт застройщика