Перейти к контенту
Подбор и сравнение проектов домов от застройщиков Московской области
Подборщик домов
Калькулятор сметы
Калькулятор площади
Форум
Блог
Главная
›
Каталог проектов
›
Проект дома «Дуб» | ЭкоТех
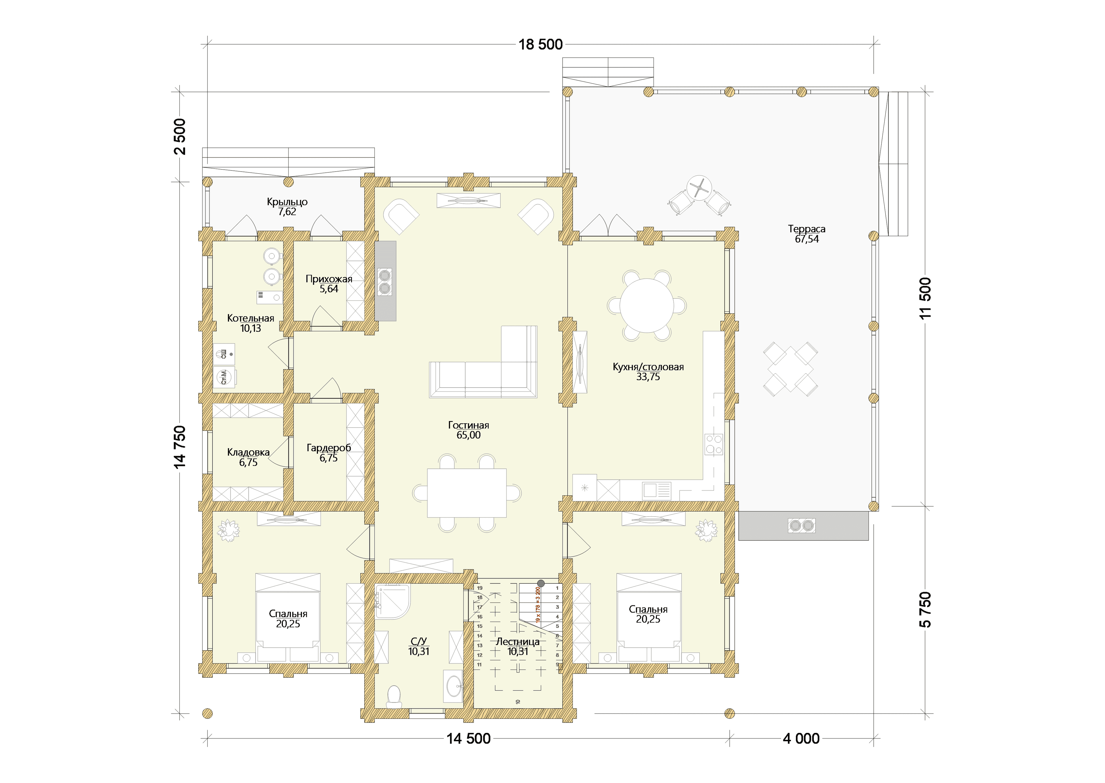
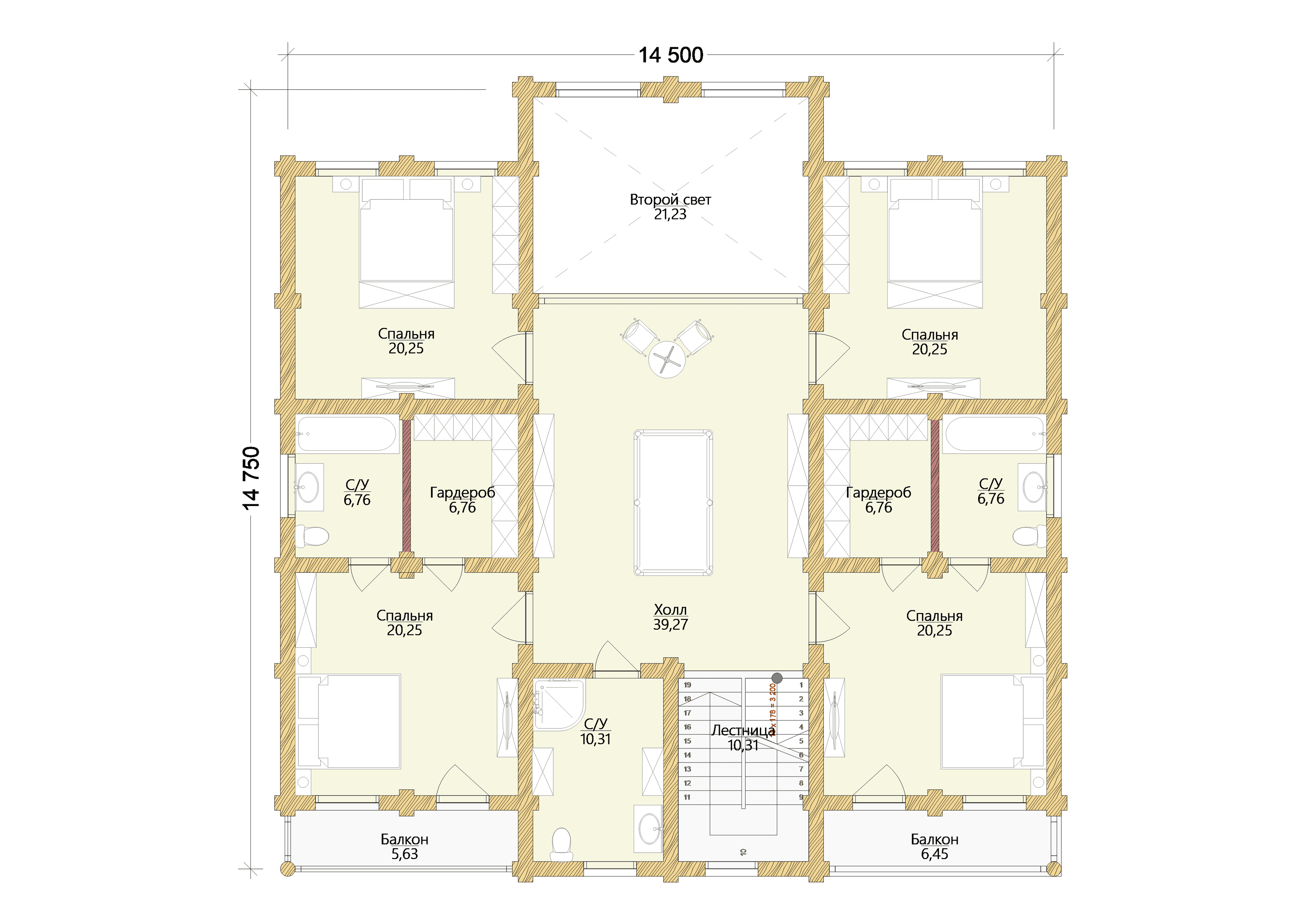
Проект дома «Дуб» | ЭкоТех
Застройщик: Эко-Тех
434.0 м²
1 / 3
🏠
434.0 м²
🛏
5 спален
🚿
3 санузл.
📐
2 этаж
🧱
Оцилиндрованное бревно
Похожие проекты
Похожие по цене
Похожие по площади
Проект L-179-1P
2 этаж
от 12 579 000 ₽
→
Проект одноэтажного дома "Песочный" из бруса
3 спальн. · 2 этаж
от 12 579 617 ₽
→
Проект одноэтажного коттеджа "Ла Каса - 2" из бруса
5 спальн. · 3 этаж
от 12 576 568 ₽
→
Современный дом в стиле Райта «Монпелье»
4 спальн. · 3 санузл. · 2 этаж
от 26 016 000 ₽
→
Проект «Hanford»
5 спальн. · 2 санузл.
от 21 750 000 ₽
→
Проект «Hanford»
5 спальн. · 2 санузл.
от 21 750 000 ₽
→
На сайт застройщика